Barbu Vacarescu 3 camere 79 mp 10 2022

Apartament duplex nou cu 3 camere, amplasat pe doua niveluri.

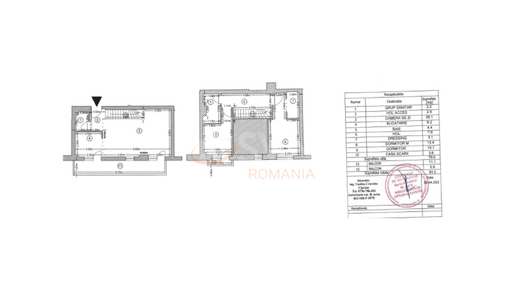
La etajul 10 din 10, acest apartament surprinde prin designul modern si spatiul generos. Cu o suprafata utila interioara de 79 mp si o terasa exterioara de 12 mp, acest duplex iti ofera spatiu si confort intr-un ansamblu rezidential de calitate.

Primul nivel dispune de un living luminos, conectat cu o bucatarie deschisa, o baie cu cabina de dus si o terasa. Al doilea nivel gazduieste doua dormitoare primitoare, un dressing functional si baia principala.

Orientarea spre vest ii confera apartamentului o lumina naturala minunata pe parcursul intregii zile. Cu o priveliste deschisa, vei putea sa te bucuri de fiecare moment petrecut in aceasta locuinta.

Aceasta proprietate reprezinta o investitie atractiva, avand un pret de chirie estimat la 1500 EUR + TVA.

Proprietatea este pozitionata la cateva minute distanta de metroul Pipera, beneficiezi de acces rapid catre toate zonele orasului.

Pentru persoane fizice la pretul afisat se adauga TVA, iar pentru achizitia pe persoana juridica, se aplica taxare inversa.

Certificatul energetic va fi disponibil la data semnarii contractului de vanzare-cumparare.

Contactati-ne acum pentru mai multe detalii si pentru a programa o vizionare!

An constructie 2022

Suprafata construita 105 mp

Suprafata utila 79 mp

Suprafata terasa 12 mp

Regim Inaltime 10 / 10

Etaj 10

Nr. camere 3 camere

Nr. bai 2

Nr. balcoane 0 balcoane

Confort Lux

Compartimentare Decomandat

Tip constructie In bloc

Status constructie Finalizat

Disponibila incepand cu 2025-03-04

Judet Bucuresti

Oras/ Sector Sector 2

Zona Barbu Vacarescu

Gps lat 44.477547

Gps lng 26.113571

Nr. terase 1

Internet prin cablu

Internet prin Dial-Up

Cablu TV

Internet prin fibra optica

Interfon

Curent electric

Internet Wireless

Geamuri termopan

Repartitoare

Parchet

Apometre

Gresie

Faianta

Gaz

Incalzire prin pardoseala

Incalzire proprie

WC serviciu

Mobilat

Aer conditionat

Bucatarie mobilata

Bloc reabiliat termic

Lift

I Apartament 3 camere I Duplex I Belvedere Residence

Proprietate vanduta

Ai o proprietate similara? Vinde-o cu noi.
Vinde apartament

Cod: REA1015992

Proprietati similare

Bucuresti, Aviatiei

Apartament, 3 camere

90 mp 2 2010

274.500 EUR

Detalii

Bucuresti, Floreasca, Barbu Vacarescu

Apartament, 3 camere

72 mp 2 2025

257.310 EUR

Detalii

Bucuresti, Floreasca, Barbu Vacarescu

Apartament, 3 camere

73 mp 9 2019

255.000 EUR

Detalii

Bucuresti, Floreasca, Barbu Vacarescu

Apartament, 3 camere

78 mp P 2025

284.300 EUR

Detalii

Bucuresti, Floreasca, Barbu Vacarescu

Apartament, 3 camere

79.54 mp 1 2025

278.400 EUR

Detalii

Bucuresti, Floreasca

3 camere cu loc parcare subteran inclus

69.4 mp 3 2020

285.000 EUR

Detalii

Bucuresti, Floreasca

Apartament, 3 camere

70 mp 2 2020

280.000 EUR

Detalii

Bucuresti, Floreasca, Barbu Vacarescu

Apartament, 3 camere

93.5 mp 4 2026

285.521 EUR

Detalii
Apartamente 3 camere vandute in Floreasca, Bucuresti Apartamente 3 camere de vanzare in Floreasca, Bucuresti

Afla primul de cele mai bune oferte
inainte sa ajunga pe piata

Aboneaza-te la newsletter

Aboneaza-te la notificari