Barbu Vacarescu 3 camere 86 mp 9 2010

SVN Romania va propune spre vanzare un apartament de 3 camere aflat la etajul 9 din 16, intr-un imobil finalizat in anul 2010, din cadrul complexului rezidential UpGround Residence.

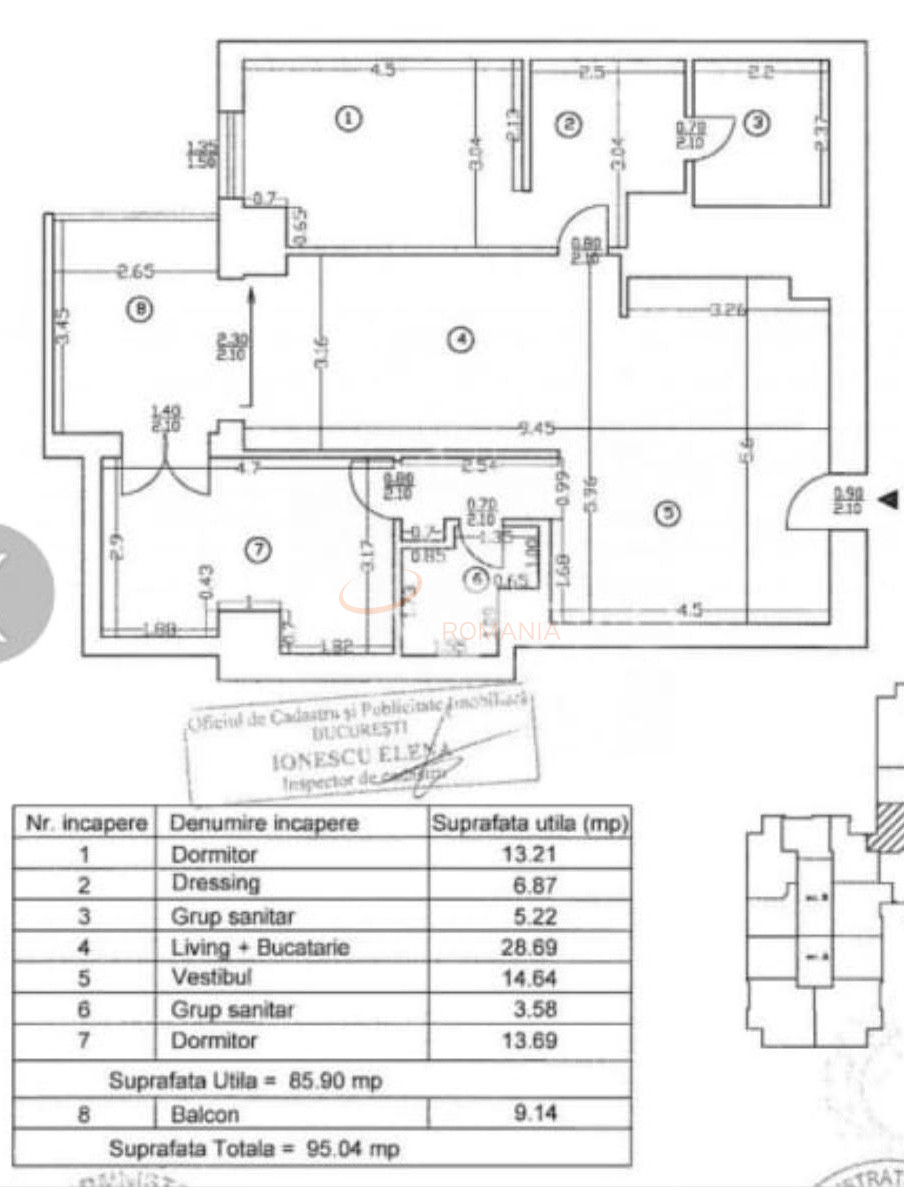
Apartamentul este decomandat, confort lux, si este alcatuit din: living generos cu bucatarie open-space de 29 mp, dormitor matrimonial cu dressing si baie proprie, dormitor secundar, baie pe hol, terasa (9,14mp), toate acestea avand o suprafata totala de 95 mp.

Apartamentul a fost recent renovat si se vinde complet mobilat si utilat. Separat, se poate achizitiona 1 loc de parcare subteran.

Situat in zona de Nord a Bucurestiului, UpGround Residence este un proiect rezidential cu o arhitectura moderna si finisaje de calitate superioara. Special pentru a satisface exigentele clientilor care apreciaza spatiul si intimitatea, exista un numar de maxim 5 apartamente pe nivel, fiecare scara fiind dotata cu cate 2 lifturi marca Schindler. In cadrul complexului se beneficiaza de multiple facilitati precum sala de fitness cu piscina WorldClass, gradinita, restaurante, magazine si cafenele.

Complexul rezidential dispune de paza permanenta iar accesul in ansamblu este restrictionat de bariere si supravegheat in permanenta de personalul de paza.

Situat in proximitatea celor mai cautate spatii verzi si de agrement din Bucuresti (parcurile Herastrau, Floreasca, Lacul Tei), statia de metrou Pipera (la 3 minute de mers pe jos), Promenada Mall, Muzeul National al Aviatiei Romane, Novo Park BusiCenter, Mobexpert Pipera, ansamblul rezidential Upground e aproape de toate lucrurile care conteaza pentru dvs!

Pentru mai multe detalii sau vizionari va stau la dispozitie.

An constructie 2010

Suprafata construita 112 mp

Suprafata utila 86 mp

Suprafata terasa 9 mp

Regim Inaltime 9 / 16

Etaj 9

Nr. camere 3 camere

Nr. bai 2

Nr. balcoane 0 balcoane

Confort 1

Compartimentare Decomandat

Tip constructie In bloc

Status constructie Finalizat

Disponibila incepand cu 2024-09-27

Judet Bucuresti

Oras/ Sector Sector 2

Zona Barbu Vacarescu

Gps lat 44.478234

Gps lng 26.115251

Nr. terase 1

Curent electric

Supraveghere video

Internet Wireless

Sistem de alarma

Supraveghere 24/7

Cablu TV

Interfon

Detector de gaze

Geamuri termopan

Parchet

Gresie

Faianta

Gaz

Incalzire proprie

Calorifere

WC serviciu

Mobilat

Aer conditionat

Bucatarie mobilata

Lift

Apartament 3 camere UpGround Residence

Proprietate vanduta

Ai o proprietate similara? Vinde-o cu noi.
Vinde apartament

Cod: REA1019317

Proprietati similare

Bucuresti, Floreasca, Barbu Vacarescu

3 camere cu loc parcare subteran inclus

107 mp 5 2010

289.000 EUR

Detalii

Bucuresti, Floreasca, Barbu Vacarescu

Apartament, 3 camere

72 mp P 2025

275.200 EUR

Detalii

Bucuresti, Floreasca, Barbu Vacarescu

Apartament, 3 camere

71 mp 1 2018

245.000 EUR

Detalii

Bucuresti, Floreasca, Barbu Vacarescu

Apartament, 3 camere

72 mp 2 2025

257.310 EUR

Detalii

Bucuresti, Floreasca, Barbu Vacarescu

Apartament, 3 camere

79.54 mp 1 2025

278.400 EUR

Detalii

Bucuresti, Floreasca, Barbu Vacarescu

Apartament, 3 camere

78 mp P 2025

284.300 EUR

Detalii

Bucuresti, Floreasca

Apartament, 3 camere

71.04 mp P 2024

275.200 EUR

Detalii

Bucuresti, Pipera

Apartament, 3 camere

75.2 mp 4 2026

243.295 EUR

Detalii
Apartamente 3 camere vandute in Floreasca, Bucuresti Apartamente 3 camere de vanzare in Floreasca, Bucuresti

Afla primul de cele mai bune oferte
inainte sa ajunga pe piata

Aboneaza-te la newsletter

Aboneaza-te la notificari