Colentina 3 camere 90 mp 5 2017

Avem deosebita placere de a va oferi spre vanzare un duplex de 3 camere aflat la etajul 5 din 15, ce are o vedere spectaculoasa asupra lacului Plumbuita, din cadrul complexului rezidential Poseidon Residence.

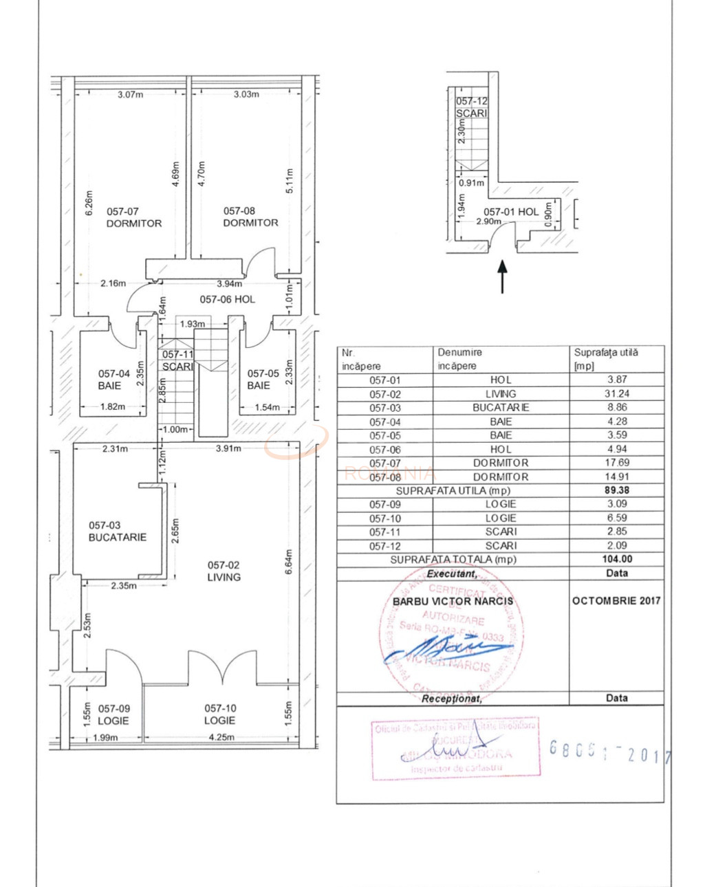
Apartamentul dispune de o suprafata totala de 104 mp, fiind compus din:
-nivelul 1: hol de acces si dressing;
-nivelul 2: un dormitor matrimonial cu baie proprie, un dormitor secundar transformat in dressing si baie pe hol;
-nivelul 3: un living generos ce se intinde pe tot etajul, zona de dining, bucatarie inchisa si balcon.

Apartamentul se ofera spre vanzare complet mobilat si utilat si dispune de un loc de parcare exterior.

Complexul rezidential Poseidon Residence este situat in Nord-Estul Capitalei, in zona Colentina-Parc Tei/Lacul Plumbuita. Poseidon Residence este situat pe malul lacului Plumbuita, beneficiind de Parcul Plumbuita unde te poti bucura de natura.

Pozitionarea lui faciliteaza accesul rapid catre scoli, gradinite, mijloace de transport in comun, centre medicale, banci, supermarket-uri.

Nu detinem informatii despre clasa energetica in care este incadrat imobilul. Certificatul energetic va fi disponibil la vanzare.

Pentru mai multe detalii sau vizionari va stau la dispozitie.

An constructie 2017

Suprafata construita 110 mp

Suprafata utila 90 mp

Regim Inaltime 5 / 15

Etaj 5

Nr. camere 3 camere

Nr. bai 2

Nr. balcoane 0 balcoane

Confort 1

Compartimentare Decomandat

Tip constructie In bloc

Status constructie Finalizat

Disponibila incepand cu 2024-01-16

Judet Bucuresti

Oras/ Sector Sector 2

Zona Colentina

Gps lat 44.468215

Gps lng 26.138542

Cablu TV

Interfon

Supraveghere video

Curent electric

Internet Wireless

Detector de gaze

Geamuri termopan

Repartitoare

Parchet

Apometre

Gresie

Telefon

Faianta

Gaz

Loc parcare exterior

Calorifere

Incalzire proprie

WC serviciu

Mobilat

Aer conditionat

Bucatarie mobilata

Lift

Duplex 3 camere Poseidon Residence

Proprietate vanduta

Ai o proprietate similara? Vinde-o cu noi.
Vinde apartament

Cod: REA1017252

Proprietati similare

Bucuresti, Tei, Lacul Tei

Apartament, 3 camere

83.47 mp 8 2023

255.000 EUR

Detalii

Bucuresti, Tei, Lacul Tei

3 camere cu loc parcare subteran inclus

78 mp 3 2025

225.897 EUR

Detalii

Bucuresti, Colentina

Apartament, 3 camere

75 mp 2 2026

230.000 EUR

Detalii

Bucuresti, Pipera

Apartament, 3 camere

188 mp P 2023

250.000 EUR

Detalii

Bucuresti, Floreasca, Barbu Vacarescu

Apartament, 3 camere

97.8 mp 1 2026

229.400 EUR

Detalii

Bucuresti, Colentina, Doamna Ghica

3 camere cu loc parcare subteran inclus

83 mp 2 2010

235.000 EUR

Detalii

Bucuresti, Floreasca, Barbu Vacarescu

Apartament, 3 camere

71 mp 2 2026

216.350 EUR

Detalii

Bucuresti, Floreasca, Barbu Vacarescu

Apartament, 3 camere

92.2 mp 2 2026

216.966 EUR

Detalii
Apartamente 3 camere vandute in Colentina, Bucuresti Apartamente 3 camere de vanzare in Colentina, Bucuresti

Afla primul de cele mai bune oferte
inainte sa ajunga pe piata

Aboneaza-te la newsletter

Aboneaza-te la notificari