Dacia 3 camere 58.8 mp 3 1940

Acest anunt se adreseaza persoanelor care au un apetit ridicat pentru randamente in imobiliare.

SVN Residentialist va propune spre vanzare un apartament cu 3 camere situat pe strada Vasile Lascar in apropierea metroului Stefan cel Mare.
Apartamentul necesita renovare totala.

Pentru mai multe informatii nu ezitati sa ne contactati.

Cu stima,
SVN Residentialist

An constructie 1940

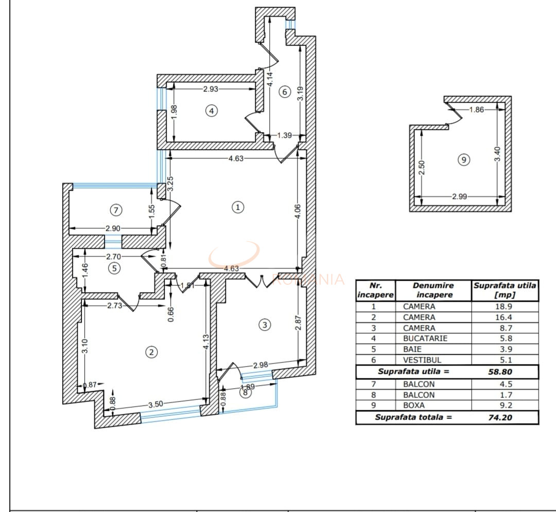
Suprafata construita 74.2 mp

Suprafata utila 58.8 mp

Suprafata terasa 6.2 mp

Regim Inaltime 3 / 5

Etaj 3

Nr. camere 3 camere

Nr. bai 1

Nr. balcoane 2 balcoane

Confort 1

Compartimentare Semidecomandat

Tip constructie In bloc

Status constructie Finalizat

Disponibila incepand cu 2024-02-07

Judet Bucuresti

Oras/ Sector Sector 2

Zona Dacia

Gps lat 44.444324

Gps lng 26.110775

Interfon

Parchet

Apometre

Gresie

Faianta

Fara imbunatatiri

Investitie 3 camere Metrou Stefan Cel Mare

Proprietate vanduta

Ai o proprietate similara? Vinde-o cu noi.
Vinde apartament

Cod: REA1018197
Apartamente 3 camere vandute in Dacia, Bucuresti Apartamente 3 camere de vanzare in Dacia, Bucuresti

Afla primul de cele mai bune oferte
inainte sa ajunga pe piata

Aboneaza-te la newsletter

Aboneaza-te la notificari