Eminescu 3 camere 150 mp 3 1926

SVN Romania va propune un loft de 3 camere, localizat intr-o vila din 1926, in zona Eminescu.

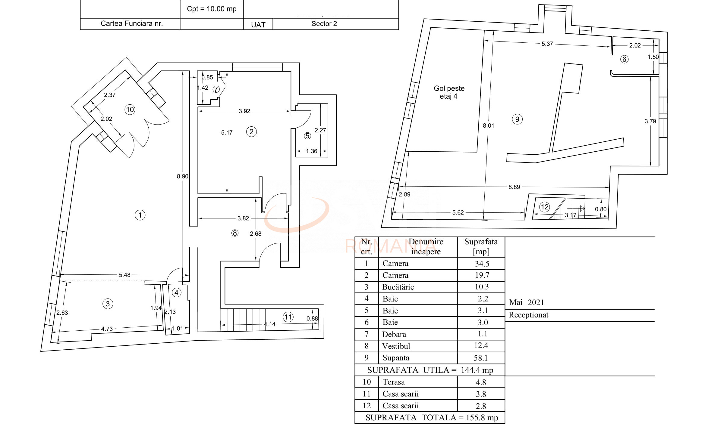
Apartamentul are 2 dormitoare, 3 bai, dintre care una stil open space, cu intrare din dormitorul principal, care este la mansarda, la care ajungem printr-o scara interioara.

Lumina naturala este prezenta in fiecare camera, iar vederea este libera, nefiind obstructionata de alte cladiri.

Apartamentul este renovat, dispune de centrala proprie, bucatarie mobilata si utilata, mobila in ambele dormitoare si multe spatii de depozitare.

Cladirea este incadrata la U2, iar apartamentul este asigurat inclusiv pentru cutremur, pe urmatorii 30 de ani. Se poate obtine credit ipotecar. Pentru mai multe detalii biroul nostru de creditare, SVN Credite, va sta la dispozitie.

Apartamentul este la etajul 3- mansarda, iar vila nu are lift.

Cladirea este pe o straduta retrasa, ferita de zgomotul orasului.

Apartamentul este unic din punct de vedere al structurii, iar toate modificarile sunt cuprinse in cadastru.

Acoperisul a fost schimbat in 2008.

La cerere se poate trimite un video de prezentare.

Apartamentul se vinde nemobilat la acest pret. Pentru pretul cu toata mobila inclusa va rugam sa ne contactati.

Pentru detalii si vizionari, sunati-ne chiar acum!

Certificatul energetic va fi disponibil la momentul vanzarii.

An constructie 1926

Suprafata construita 165 mp

Suprafata utila 150 mp

Suprafata terasa 4.8 mp

Regim Inaltime 3 / 3

Etaj 3

Nr. camere 3 camere

Nr. bai 3

Nr. balcoane 1 balcon

Confort 1

Tip constructie In vila

Status constructie Finalizat

Disponibila incepand cu 2022-04-01

Judet Bucuresti

Oras/ Sector Sector 2

Zona Eminescu

Gps lat 44.446587

Gps lng 26.115950

Acoperis mansardat

Interfon

Curent electric

Detector de gaze

Internet Wireless

Cablu TV

Geamuri termopan

Balcon inchis

Parchet

Apometre

Gresie

Faianta

Gaz

Incalzire proprie

WC serviciu

Mobilat

Aer conditionat

Bucatarie mobilata

LOFT 3 Camere Eminescu Renovat

Proprietate vanduta

Ai o proprietate similara? Vinde-o cu noi.
Vinde apartament

Cod: REA1007817

Proprietati similare

Bucuresti, Stefan Cel Mare

Apartament, 3 camere

93.16 mp 3 2010

209.000 EUR

Detalii

Bucuresti, Stefan Cel Mare

Apartament, 3 camere

63 mp 2 2025

204.300 EUR

Detalii

Bucuresti, Ferdinand

Apartament, 3 camere

69.3 mp 3 2026

202.000 EUR

Detalii

Bucuresti, Ferdinand

Apartament, 3 camere

73.39 mp 2 2026

210.000 EUR

Detalii

Bucuresti, Ferdinand, Foisorul De Foc

Apartament, 3 camere

68.83 mp 2 1940

200.000 EUR

Detalii

Bucuresti, Ultracentral, Universitate (s1)

Apartament, 3 camere

76 mp 1 1950

199.000 EUR

Detalii
Exclusiv Discount

Bucuresti, Dacia, Armeneasca

Apartament, 3 camere

85 mp 1 1935

185.000 EUR

Detalii

Bucuresti, Ultracentral, Piata Romana

Apartament, 3 camere

63.91 mp 1 1960

215.000 EUR

Detalii
Apartamente 3 camere vandute in Dacia, Bucuresti Apartamente 3 camere de vanzare in Dacia, Bucuresti

Afla primul de cele mai bune oferte
inainte sa ajunga pe piata

Aboneaza-te la newsletter

Aboneaza-te la notificari