Floreasca 2 camere 90 mp 4 2010

Avem deosebita placere de a va oferi spre vanzare un apartament extrem de spatios de 2 camere aflat la etajul 4 din 16, intr-un imobil finalizat in anul 2010, din cadrul complexului rezidential UpGround Residence.

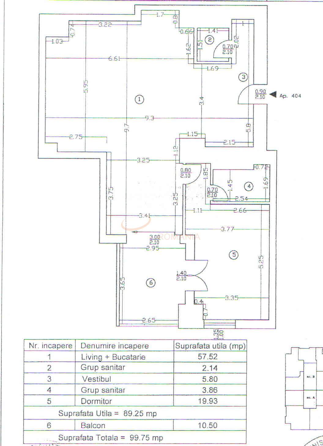
Apartamentul este semidecomandat, confort lux, si este alcatuit din: living extrem de generos cu bucatarie open-space de 57 mp, dormitor matrimonial cu baie proprie, terasa (intrarea pe terasa se face din dormitor si din living), hol si baie de serviciu, toate acestea avand o suprafata totala de 100 mp.

Separat, se poate achizitiona si 1 loc de parcare subteran la pretul de 16000 euro.

Situat in zona de Nord a Bucurestiului, UpGround Residence este un proiect rezidential cu o arhitectura moderna si finisaje de calitate superioara. Special pentru a satisface exigentele clientilor care apreciaza spatiul si intimitatea, exista un numar de maxim 5 apartamente pe nivel, fiecare scara fiind dotata cu cate 2 lifturi marca Schindler. In cadrul complexului se beneficiaza de multiple facilitati precum sala de fitness cu piscina WorldClass,, gradinita, restaurante, magazine si cafenele.

Complexul rezidential dispune de paza permanenta iar accesul in ansamblu este restrictionat de bariere si supravegheat in permanenta de personalul de paza.

Situat in proximitatea celor mai c autate spatii verzi si de agrement din Bucuresti (parcurile Herastrau, Floreasca, Lacul Tei), statia de metrou Pipera (la 3 minute de mers pe jos), Promenada Mall, Muzeul National al Aviatiei Romane, Novo Park BusiCenter, Mobexpert Pipera, ansamblul rezidential Upground e aproape de toate lucrurile care conteaza pentru dvs!

Nu detinem informatii despre clasa energetica in care este incadrat imobilul. Certificatul energetic va fi disponibil la vanzare.

Pentru mai multe detalii sau vizionari va stau la dispozitie.

An constructie 2010

Suprafata construita 103.5 mp

Suprafata utila 90 mp

Suprafata terasa 10 mp

Regim Inaltime 4 / 16

Etaj 4

Nr. camere 2 camere

Nr. bai 2

Nr. balcoane 0 balcoane

Confort 1

Compartimentare Semidecomandat

Tip constructie In bloc

Status constructie Finalizat

Disponibila incepand cu 2024-02-15

Judet Bucuresti

Oras/ Sector Sector 2

Zona Floreasca

Gps lat 44.478283

Gps lng 26.115762

Nr. terase 1

Supraveghere video

Sistem de alarma

Interfon

Internet prin cablu

Cablu TV

Supraveghere 24/7

Detector de gaze

Internet Wireless

Curent electric

Geamuri termopan

Repartitoare

Parchet

Apometre

Gresie

Telefon

Faianta

Gaz

Incalzire proprie

WC serviciu

Aer conditionat

Bucatarie mobilata

Lift

2 camere 100 mp Upground Residence Barbu Vacarescu - Pipera

Proprietate vanduta

Ai o proprietate similara? Vinde-o cu noi.
Vinde apartament

Cod: REA1006780

Proprietati similare

Bucuresti, Floreasca

2 camere cu loc parcare exterior inclus

72.64 mp 5 2024

210.000 EUR

Detalii

Bucuresti, Floreasca, Barbu Vacarescu

Apartament, 2 camere

63 mp 7 2025

195.000 EUR

Detalii

Bucuresti, Floreasca, Barbu Vacarescu

Apartament, 2 camere

53.3 mp 3 2023

204.900 EUR

Detalii

Bucuresti, Floreasca, Barbu Vacarescu

Apartament, 2 camere

49.5 mp 1 2025

205.000 EUR

Detalii

Bucuresti, Aviatiei

Apartament, 2 camere

50 mp 1 2025

204.950 EUR

Detalii

Bucuresti, Floreasca, Barbu Vacarescu

Apartament, 2 camere

58.19 mp 1 2025

218.900 EUR

Detalii

Bucuresti, Floreasca, Barbu Vacarescu

Apartament, 2 camere

61 mp 3 2024

187.000 EUR

Detalii

Bucuresti, Aviatiei

Apartament, 2 camere

50 mp 11 2026

184.164 EUR

Detalii
Apartamente 2 camere vandute in Floreasca, Bucuresti Apartamente 2 camere de vanzare in Floreasca, Bucuresti

Afla primul de cele mai bune oferte
inainte sa ajunga pe piata

Aboneaza-te la newsletter

Aboneaza-te la notificari