Floreasca 2 camere 50 mp 4 2025

One High District, unul dintre cele mai apreciate proiecte din nordul Bucurestiului. Proprietatea este amplasata pe Fabrica de Glucoza, la etajul 4, si beneficiaza de vedere libera catre zona Aviatiei, fara constructii care sa obtureze privelistea.

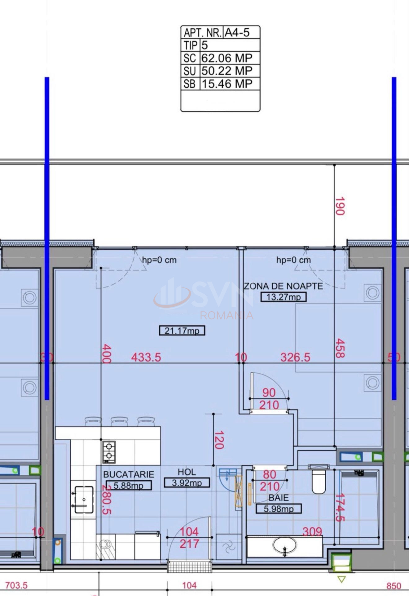
Apartamentul este luminos si bine compartimentat, oferind un echilibru ideal intre functionalitate si confort. Are o suprafata construita de 62 mp, o suprafata utila de 50 mp si un balcon spatios de 15 mp, perfect pentru momente de relaxare sau socializare.

Se preda la cheie si este disponibil incepand cu luna martie. Zona este excelent conectata, cu acces rapid catre centrele de business din Aviatiei si Pipera, centre comerciale, restaurante, sali de fitness si mijloace de transport. Datorita pozitiei sale strategice si a cererii ridicate din zona, apartamentul reprezinta o alegere potrivita atat pentru locuire, cat si pentru investitie.

SVN Residentialist Pipera va asteapta la vizionare!

An constructie 2025

Suprafata construita 72 mp

Suprafata utila 50 mp

Regim Inaltime 4 / 16

Etaj 4

Nr. camere 2 camere

Nr. bai 1

Nr. balcoane 1 balcon

Confort 1

Compartimentare Decomandat

Tip constructie In bloc

Status constructie Finalizat

Disponibila incepand cu 2026-01-15

Judet Bucuresti

Oras/ Sector Sector 2

Zona Floreasca

Gps lat 44.477932

Gps lng 26.124549

Curent electric

Interfon

Detector de gaze

Supraveghere video

Supraveghere 24/7

Lift

Valoare proprietate (€)

Perioada (ani)

Procent avans (33.750 €)


Suma creditata 191.250

Dobanda 4.9%

Rata lunara 4.729 lei

Broker Imobiliar

Cristian Popa , Consultant imobiliar Vezi toate proprietatile

0317100200

One High District I Fabrica de Glucoza I 2 Room

Pret vanzare
225.000 €

Telefon Consultant imobiliar
0317100200

Cod: REA1026928

Proprietati similare

Bucuresti, Aviatiei

Apartament, 2 camere

50 mp 4 2026

225.000 EUR

Detalii

Bucuresti, Floreasca, Barbu Vacarescu

Apartament, 2 camere

55.8 mp P 2025

219.400 EUR

Detalii

Bucuresti, Floreasca, Barbu Vacarescu

Apartament, 2 camere

58.19 mp 1 2025

218.900 EUR

Detalii

Bucuresti, Floreasca

2 camere cu loc parcare exterior inclus

72.64 mp 5 2024

210.000 EUR

Detalii

Bucuresti, Floreasca

Apartament, 2 camere

52 mp 5 2024

224.500 EUR

Detalii

Bucuresti, Floreasca

Apartament, 2 camere

52 mp 4 2024

224.500 EUR

Detalii

Bucuresti, Floreasca, Barbu Vacarescu

2 camere cu loc parcare subteran inclus

53.3 mp 3 2023

219.000 EUR

Detalii

Bucuresti, Floreasca, Barbu Vacarescu

Apartament, 2 camere

49.5 mp 1 2025

210.000 EUR

Detalii
Apartamente 2 camere vandute in Floreasca, Bucuresti Apartamente 2 camere de vanzare in Floreasca, Bucuresti

Afla primul de cele mai bune oferte
inainte sa ajunga pe piata

Aboneaza-te la newsletter

Aboneaza-te la notificari