Floreasca 3 camere 96 mp 12 2018

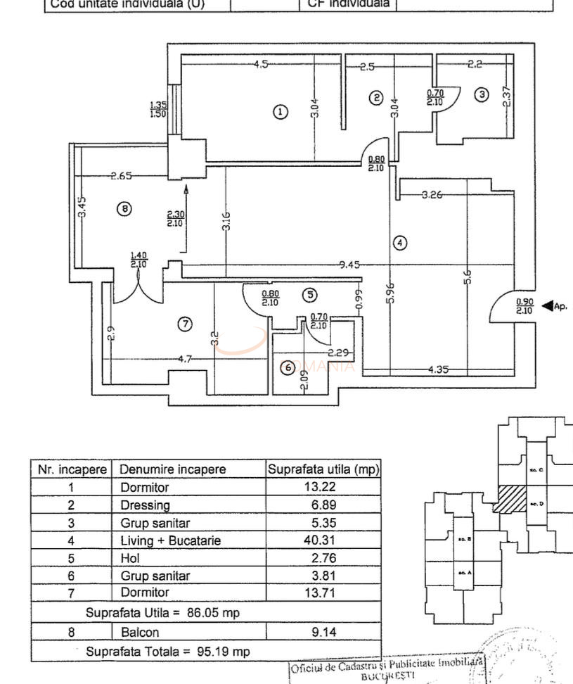
SVN Romania va propune spre achizitie o proprietate premium, un apartament de 3 camere, care dispune de o suprafata utila totala de 96 mp cu o terasa superba de 9,14 mp, intr-o zona rezidentiala reprezentativa in cartierul Floreasca.


Conceptul de design al cladirii este calitate timeless, concept clasic care vine din consistenta, calitate, rafinament, modernism cu accente clasice, materiale naturale sustenabile . In acest context, toate materialele de productie au fost alese cu atentie desavarsita, pentru ca acestea sa se uzeze foarte lent si sa creasca valoarea imobilului in timp. Complexul dispune de toate facilitatile, supermarket la parter, spatii verzi scoli, gradinite si centre medicale in imediata apropiere.

Aprtamentul este amplasat la etajul 12 si se vinde complet mobilat si utilat ca in fotografi.


Nu ezitati sa ne contactati iar pentru mai multe detalii va asteptsm în cadrul birourilor noastre în zona Dorobati Capitale.
Cu deosebita consideratie,
Echipa SVN România

An constructie 2018

Suprafata construita 118 mp

Suprafata utila 96 mp

Suprafata terasa 9.14 mp

Regim Inaltime 12 / 15

Etaj 12

Nr. camere 3 camere

Nr. bai 2

Nr. balcoane 1 balcon

Confort 1

Compartimentare Decomandat

Tip constructie In bloc

Status constructie Finalizat

Disponibila incepand cu 2024-02-23

Judet Bucuresti

Oras/ Sector Sector 2

Zona Floreasca

Gps lat 44.478344

Gps lng 26.116126

Supraveghere video

Curent electric

Sistem de alarma

Geamuri termopan

Repartitoare

Parchet

Apometre

Gresie

Telefon

Faianta

Gaz

Calorifere

Lift

Apartament Upground 3 camere investitie

Proprietate vanduta

Ai o proprietate similara? Vinde-o cu noi.
Vinde apartament

Cod: REA1017324

Proprietati similare

Bucuresti, Floreasca, Barbu Vacarescu

Apartament, 3 camere

107 mp 4 2012

295.000 EUR

Detalii

Bucuresti, Aviatiei

Apartament, 3 camere

90 mp 2 2010

274.500 EUR

Detalii

Bucuresti, Floreasca, Barbu Vacarescu

Apartament, 3 camere

107 mp 4 2010

295.000 EUR

Detalii

Bucuresti, Floreasca, Barbu Vacarescu

3 camere cu loc parcare subteran inclus

107 mp 5 2010

290.000 EUR

Detalii

Bucuresti, Floreasca, Barbu Vacarescu

Apartament, 3 camere

103 mp 10 2018

297.900 EUR

Detalii

Bucuresti, Floreasca, Barbu Vacarescu

Apartament, 3 camere

78 mp P 2025

284.300 EUR

Detalii

Bucuresti, Floreasca, Barbu Vacarescu

Apartament, 3 camere

79.54 mp 1 2025

278.400 EUR

Detalii

Bucuresti, Floreasca, Barbu Vacarescu

Apartament, 3 camere

72 mp 2 2025

257.310 EUR

Detalii
Apartamente 3 camere vandute in Floreasca, Bucuresti Apartamente 3 camere de vanzare in Floreasca, Bucuresti

Afla primul de cele mai bune oferte
inainte sa ajunga pe piata

Aboneaza-te la newsletter

Aboneaza-te la notificari