Iancului 3 camere 61 mp 3 1964

SVN Romania va propune spre vanzare un apartament de 3 camere situat in zona Piata Iancului, la 2 minute distanta pietonala de metrou.

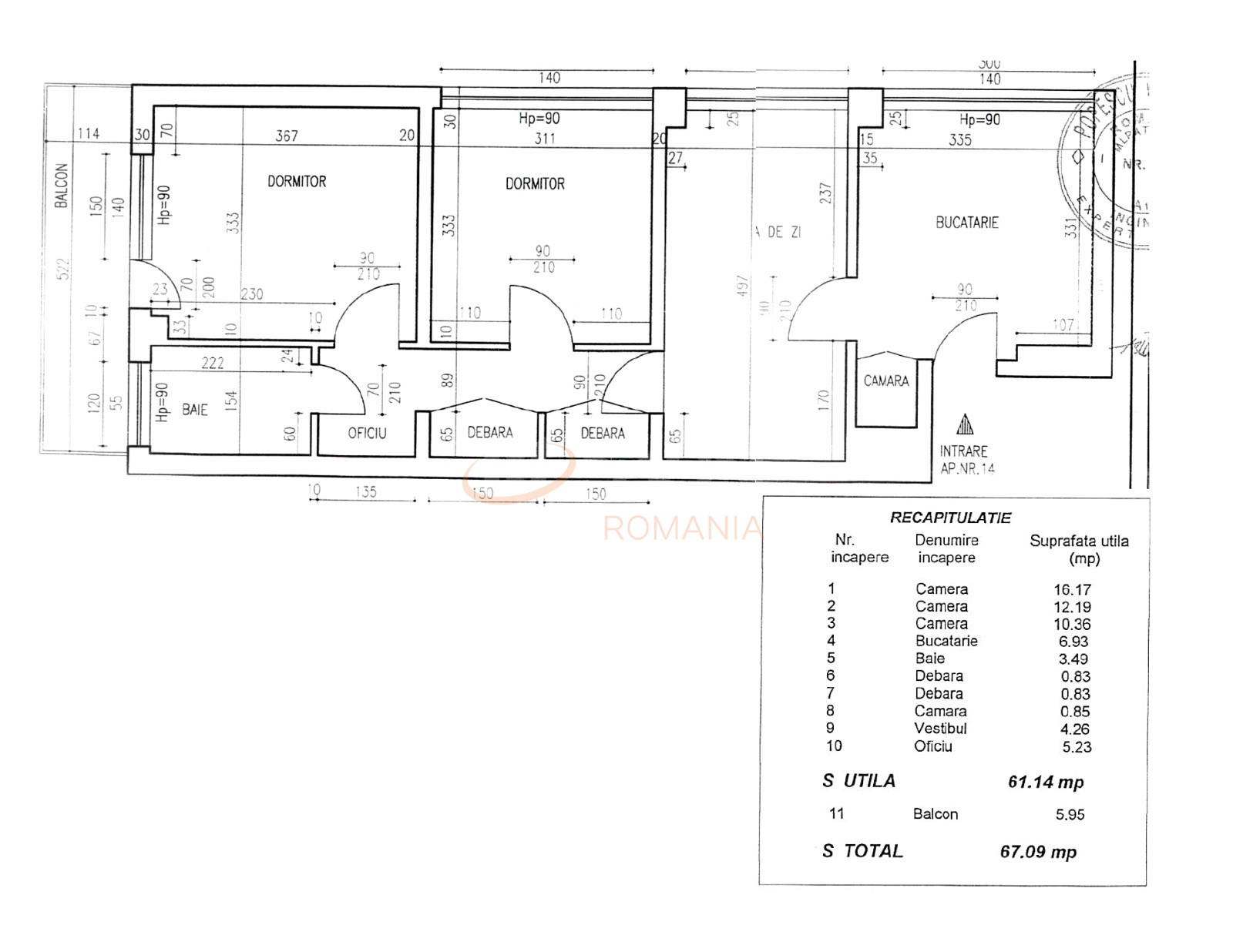
Apartamentul este situat la etajul 3/10, al unui bloc construit in anul 1964, semidecomandat, avand o suprafata utila de 61 mp si un balcon de 6 mp.

Blocul a fost anvelopat in anul 2023 si NU este incadrat in nicio clasa de risc seismic sau urgenta.

Locuinta se vinde complet mobilata si utilata, asa cum este prezentata in imagini.

Acesta beneficiaza de ferestre mari, care confera lumina naturala generoasa si dispune de 2 dormitoare, bucatarie separata, baie cu geam, un dressing mare pe hol, printre altele se regasesc si 3 unitati AC, electrocasnice incluse, masina de spalat vase, masina de spalat rufe, plita pe gaz, cuptor electric.

Apartamentul dispune de incalzire proprie, avand centrala termica de apartament.

Zona ofera acces rapid la metrou (statia Piata Iancului) si numeroase linii de transport in comun, facilitand legatura cu centrul orasului.

In apropiere se gasesc supermarketuri, Piata Obor, Mega Mall si Veranda Mall, precum si restaurante, farmacii si banci. Este o zona bine dezvoltata, potrivita atat pentru locuit, cat si pentru investitie.

Pentru mai multe informatii sau pentru programarea vizionarilor, contactul meu va sta la dispozitie

***Vizionarea acestui imobil se face doar în baza semnarii unui acord de vizionare conform codului civil, art 2.096-2.102.

An constructie 1964

Suprafata construita 67 mp

Suprafata utila 61 mp

Suprafata terasa 6 mp

Regim Inaltime 3 / 10

Etaj 3

Nr. camere 3 camere

Nr. bai 1

Nr. balcoane 1 balcon

Confort 1

Compartimentare Semidecomandat

Tip constructie In bloc

Status constructie Finalizat

Disponibila incepand cu 2026-02-16

Judet Bucuresti

Oras/ Sector Sector 2

Zona Iancului

Gps lat 44.438683

Gps lng 26.133660

Cablu TV

Curent electric

Internet prin cablu

Internet prin fibra optica

Interfon

Geamuri termopan

Parchet

Apometre

Gresie

Faianta

Gaz

Incalzire proprie

Calorifere

Mobilat

Aer conditionat

Bucatarie mobilata

Valoare proprietate (€)

Perioada (ani)

Procent avans (23.850 €)


Suma creditata 135.150

Dobanda 4.9%

Rata lunara 3.342 lei

Broker Imobiliar

Ramona Badea , Consultant imobiliar Vezi toate proprietatile

0317100200

Apartament 3 camere I Metrou Piata Iancului I Centrala Proprie

Pret vanzare
159.000 €

Telefon Consultant imobiliar
0317100200

Cod: REA1027674

Proprietati similare

Bucuresti, Iancului

Apartament, 3 camere

63 mp 3 1963

150.000 EUR

Detalii

Bucuresti, Ferdinand, Pache Protopopescu

Apartament, 3 camere

70 mp 1 1937

159.000 EUR

Detalii

Bucuresti, Ferdinand, Foisorul De Foc

Apartament, 3 camere

80 mp 1 1946

149.900 EUR

Detalii

Bucuresti, Unirii, Alba Iulia

Apartament, 3 camere

74 mp P 1970

144.000 EUR

Detalii

Bucuresti, Colentina, Bucur Obor

Apartament, 3 camere

74 mp P 2026

150.800 EUR

Detalii

Bucuresti, Colentina, Bucur Obor

Apartament, 3 camere

75 mp 7 2025

163.370 EUR

Detalii

Bucuresti, Decebal

Apartament, 3 camere

77 mp P 1958

160.000 EUR

Detalii

Bucuresti, Dristor

Apartament, 3 camere

75 mp P 1982

150.000 EUR

Detalii
Apartamente 3 camere vandute in Iancului, Bucuresti Apartamente 3 camere de vanzare in Iancului, Bucuresti

Afla primul de cele mai bune oferte
inainte sa ajunga pe piata

Aboneaza-te la newsletter

Aboneaza-te la notificari