Iancului 4 camere 90 mp 8 1978

SVN Romania va propune spre vanzare un apartament de 3 camere in zona Iancului.

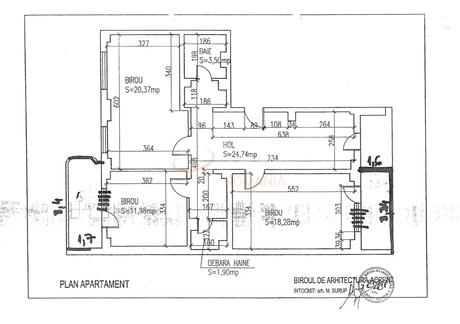
Apartamentul este decomandat si dispune de o suprafata utila de 90 mp si un balcon inchis.

Locuinta era formata din 4 camere mici si 2 balcoane, ulterior s-a recompartimentat incat sa fie 3 camere mari , un balcon inchis si 2 grupuri sanitare.

Apartamentul dispune de 3 camere spatioase, renovat integral, instalatiile electrice si sanitare au fost inlocuite, mobilat partial (bai-baterie cu termostat, mobilier IKEA si bucatarie - plita electrica mixta, vitroceramic&inductie, cuptor electric, masina de spalat vase), potrivit pentru locuinta.

Localizarea fata de mijloace transport (900 m fata de Metro- M1 Piata Iancului), Mega Mall (600m), spital Monza (850m), Stadionul National (1400m), reprezinta un avantaj.

Blocul este reabilitat termic cu 2 lifturi (unul potrivit pentru transport mobila/rezerva in caz ca unul nu functioneaza).

Contactul meu va sta la dispozitie!

An constructie 1978

Suprafata construita 100 mp

Suprafata utila 90 mp

Suprafata terasa 3 mp

Regim Inaltime 8 / 14

Etaj 8

Nr. camere 4 camere

Nr. bai 2

Nr. balcoane 2 balcoane

Confort 1

Compartimentare Decomandat

Tip constructie In bloc

Status constructie Finalizat

Disponibila incepand cu 2024-06-10

Judet Bucuresti

Oras/ Sector Sector 2

Zona Iancului

Gps lat 44.443093

Gps lng 26.145091

Interfon

Supraveghere video

Geamuri termopan

Repartitoare

Balcon inchis

Parchet

Apometre

Gresie

Faianta

Gaz

Calorifere

WC serviciu

Aer conditionat

Bucatarie mobilata

Bloc reabiliat termic

Lift

Apartament 4 camere I Iancului I De vanzare

Proprietate vanduta

Ai o proprietate similara? Vinde-o cu noi.
Vinde apartament

Cod: REA1019274

Proprietati similare

Bucuresti, Ferdinand, Foisorul De Foc

Apartament, 4 camere

82.01 mp P 1940

150.000 EUR

Detalii

Bucuresti, Colentina, Doamna Ghica

Apartament, 4 camere

92.1 mp 8 1990

140.000 EUR

Detalii

Bucuresti, Titan

Apartament, 4 camere

101 mp 1 2025

160.100 EUR

Detalii

Bucuresti, Kiseleff

Apartament, 4 camere

89.76 mp 3 1940

139.000 EUR

Detalii

Bucuresti, Unirii, Piata Unirii (s3)

Apartament, 4 camere

80 mp 1 1946

159.000 EUR

Detalii

Bucuresti, Berceni, Aparatorii Patriei

Apartament, 4 camere

81.57 mp P 1981

140.000 EUR

Detalii

Bucuresti, Baneasa

Apartament, 4 camere

90 mp P 2008

140.000 EUR

Detalii

Bucuresti, Militari

Apartament, 4 camere

118 mp 5 2011

149.999 EUR

Detalii
Apartamente 4 camere vandute in Iancului, Bucuresti Apartamente 4 camere de vanzare in Iancului, Bucuresti

Afla primul de cele mai bune oferte
inainte sa ajunga pe piata

Aboneaza-te la newsletter

Aboneaza-te la notificari