Stefan Cel Mare 3 camere 120 mp 8 2007

SVN Romania va propune spre vanzare un apartament cu 3 camere situat in complexul rezidential Central Park, in imediata apropiere a Parcului Circului.

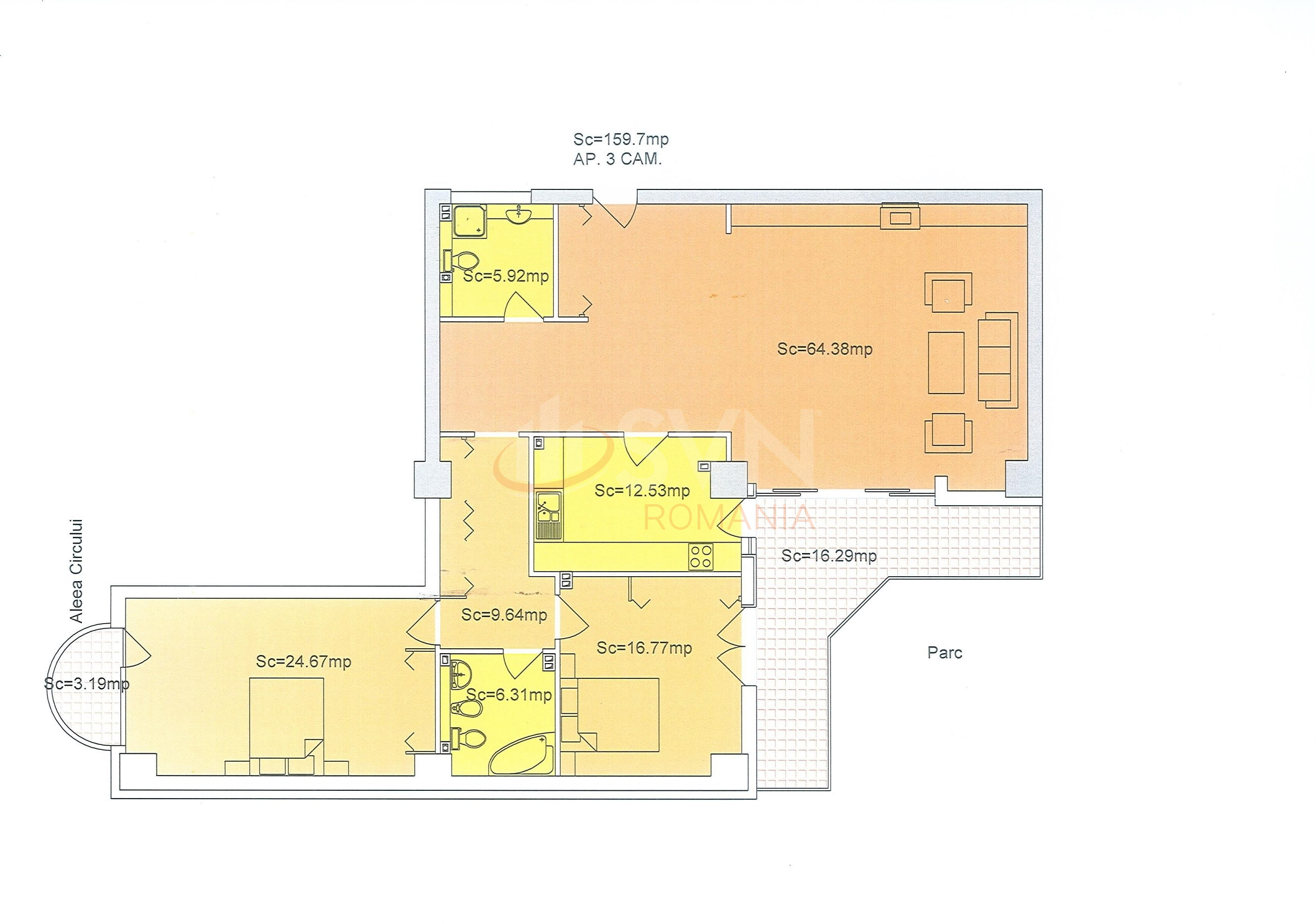
Apartamentul este situat la etajul 8, are vedere integrala spre Parcul Circului si are o suprafata construita de 160 mp, din care 120 mp utili si 16 mp de terasa.

Compartimentare:
- living mare cu iesire pe terasa
- bucatarie inchisa cu acces pe terasa
- 2 dormitoare
- 2 bai
- terasa
- balcon
- spatii de depozitare
- hol

Proprietatea beneficiaza de aer conditionat in fiecare camera si se vinde cu bucataria mobilata si utila complet.

Apartamentul beneficiaza de un loc de parcare situat la sobsolul imobilului.

Proprietatea reprezinta solutia ideala pentru o familie activa, fiind situata in imediata apropiere de statia de metrou Stefan cel Mare, numeroase mijloace de transport in comun, parcuri, institutii bancare, supermarket-uri.

Complexul Central Park beneficiaza de 15.000 mp de spatiu verde, paza 24/7, supraveghere video, asistenta permanenta pentru locatari, loc de joaca pentru copii.

Nu detinem informatii despre clasa energetica a imobilului.

An constructie 2007

Suprafata construita 160 mp

Suprafata utila 120 mp

Suprafata terasa 16 mp

Regim Inaltime 8 / 11

Etaj 8

Nr. camere 3 camere

Nr. bai 2

Nr. balcoane 1 balcon

Confort Lux

Compartimentare Decomandat

Tip constructie In bloc

Status constructie Finalizat

Disponibila incepand cu 2023-08-04

Judet Bucuresti

Oras/ Sector Sector 2

Zona Stefan Cel Mare

Gps lat 44.453910

Gps lng 26.107754

Nr. terase 1

Cablu TV

Internet prin fibra optica

Supraveghere 24/7

Curent electric

Internet Wireless

Detector de gaze

Internet prin cablu

Interfon

Supraveghere video

Geamuri termopan

Repartitoare

Parchet

Apometre

Gresie

Telefon

Loc parcare subteran

Faianta

Gaz

Calorifere

Incalzire proprie

WC serviciu

Mobilat

Aer conditionat

Bucatarie mobilata

Bloc reabiliat termic

Lift

Central Park - Apartament cu 3 camere si loc de parcare subteran

Proprietate vanduta

Ai o proprietate similara? Vinde-o cu noi.
Vinde apartament

Cod: REA0058648

Proprietati similare

Bucuresti, Dacia, Eminescu

Apartament, 3 camere

95.19 mp 1 2025

305.000 EUR

Detalii

Bucuresti, Stefan Cel Mare

Apartament, 3 camere

83 mp 2 2025

292.000 EUR

Detalii

Bucuresti, Stefan Cel Mare

Apartament, 3 camere

80 mp 4 2025

291.600 EUR

Detalii

Bucuresti, Floreasca, Barbu Vacarescu

Apartament, 3 camere

77 mp 2 2025

349.000 EUR

Detalii

Bucuresti, Sector 1, P-ta Dorobanti

Apartament, 3 camere

75 mp 1 1974

320.000 EUR

Detalii

Bucuresti, Dorobanti, Capitale

Apartament, 3 camere

75 mp 2 1943

295.000 EUR

Detalii

Bucuresti, Ultracentral, Calea Victoriei

3 camere cu loc parcare subteran inclus

90 mp 2 1968

300.000 EUR

Detalii

Bucuresti, Tei, Lacul Tei

Apartament, 3 camere

101 mp P 2008

299.000 EUR

Detalii
Apartamente 3 camere vandute in Stefan Cel Mare, Bucuresti Apartamente 3 camere de vanzare in Stefan Cel Mare, Bucuresti

Afla primul de cele mai bune oferte
inainte sa ajunga pe piata

Aboneaza-te la newsletter

Aboneaza-te la notificari