Stefan Cel Mare 3 camere 58 mp 4 1963

Va propunem spre vanzare un apartament de 3 camere, pozitionat la etajul 4 din 7, situat la 3 minute de statia de metrou Stefan cel Mare, aproape de Parcul Circului. In proximitate se afla o multime de restaurante si locatii de interes.

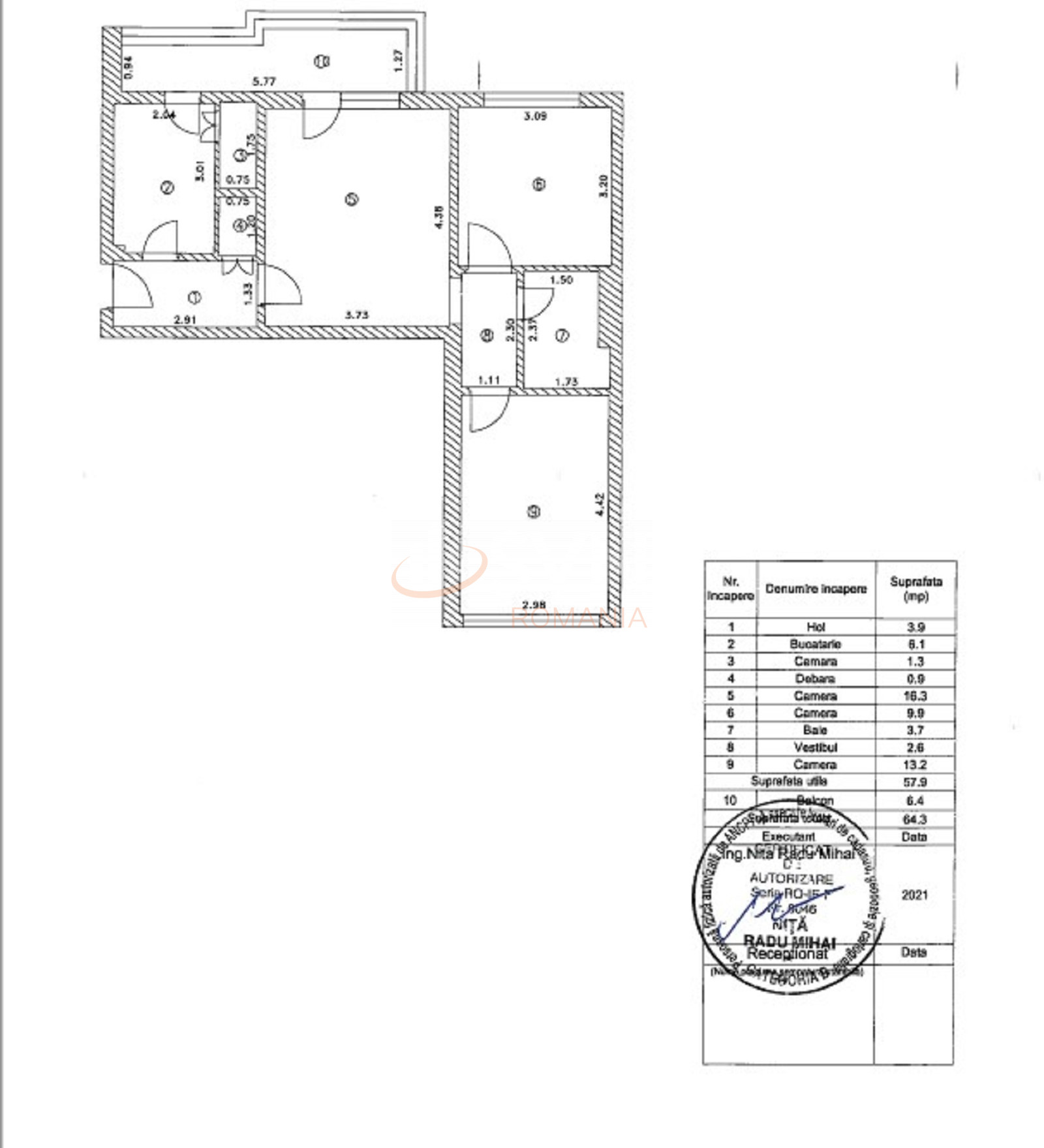
Apartamentul dispune de o suprafata utila de 58 mp cu un balcon generos de 6,4 mp, priveliste mixta, respectiv, o camera cu priveliste spre soseaua Stefan cel Mare, restul cu deschidere in spate, ce ofera o doza de liniste. Proprietatea a fost recent renovata.

La momentul evaluarii, proprietarul nu avea certificatul energetic prezent, acesta se va obtine pana la momentul vanzarii.

Pentru vizionari si mai multe detalii nu ezitati sa ma contactati.

An constructie 1963

Suprafata construita 64 mp

Suprafata utila 58 mp

Regim Inaltime 4 / 7

Etaj 4

Nr. camere 3 camere

Nr. bai 1

Nr. balcoane 1 balcon

Confort 1

Tip constructie In bloc

Status constructie Finalizat

Disponibila incepand cu 2022-01-26

Judet Bucuresti

Oras/ Sector Sector 2

Zona Stefan Cel Mare

Gps lat 44.452978

Gps lng 26.106794

Curent electric

Internet prin cablu

Cablu TV

Geamuri termopan

Repartitoare

Balcon inchis

Parchet

Apometre

Gresie

Faianta

Fara imbunatatiri

Lift

3 CAMERE RECENT RENOVAT METROU STEFAN CEL MARE

Proprietate vanduta

Ai o proprietate similara? Vinde-o cu noi.
Vinde apartament

Cod: REA1006910

Proprietati similare

Bucuresti, Colentina, Doamna Ghica

Apartament, 3 camere

47.66 mp 2 1978

77.000 EUR

Detalii

Bucuresti, Dacia, Armeneasca

Apartament, 3 camere

56 mp 3 1930

89.900 EUR

Detalii
Exclusiv Discount

Bucuresti, Unirii, Unirii (s3)

Apartament, 3 camere

56 mp 3 1930

89.900 EUR

Detalii

Bucuresti, Tei, Lacul Tei

Apartament, 3 camere

64 mp 9 1976

86.000 EUR

Detalii
Exclusiv Discount

Bucuresti, Gara De Nord, Grivita

Apartament, 3 camere

59.14 mp 7 1961

89.900 EUR

Detalii

Bucuresti, Drumul Taberei

Apartament, 3 camere

44 mp 5 1973

89.900 EUR

Detalii
Apartamente 3 camere vandute in Stefan Cel Mare, Bucuresti Apartamente 3 camere de vanzare in Stefan Cel Mare, Bucuresti

Afla primul de cele mai bune oferte
inainte sa ajunga pe piata

Aboneaza-te la newsletter

Aboneaza-te la notificari