Stefan Cel Mare 4 camere 152 mp 4 2008

SVN Romania va propune spre vanzare un apartament cu 4 camere situat in complexul rezidential Central Park.

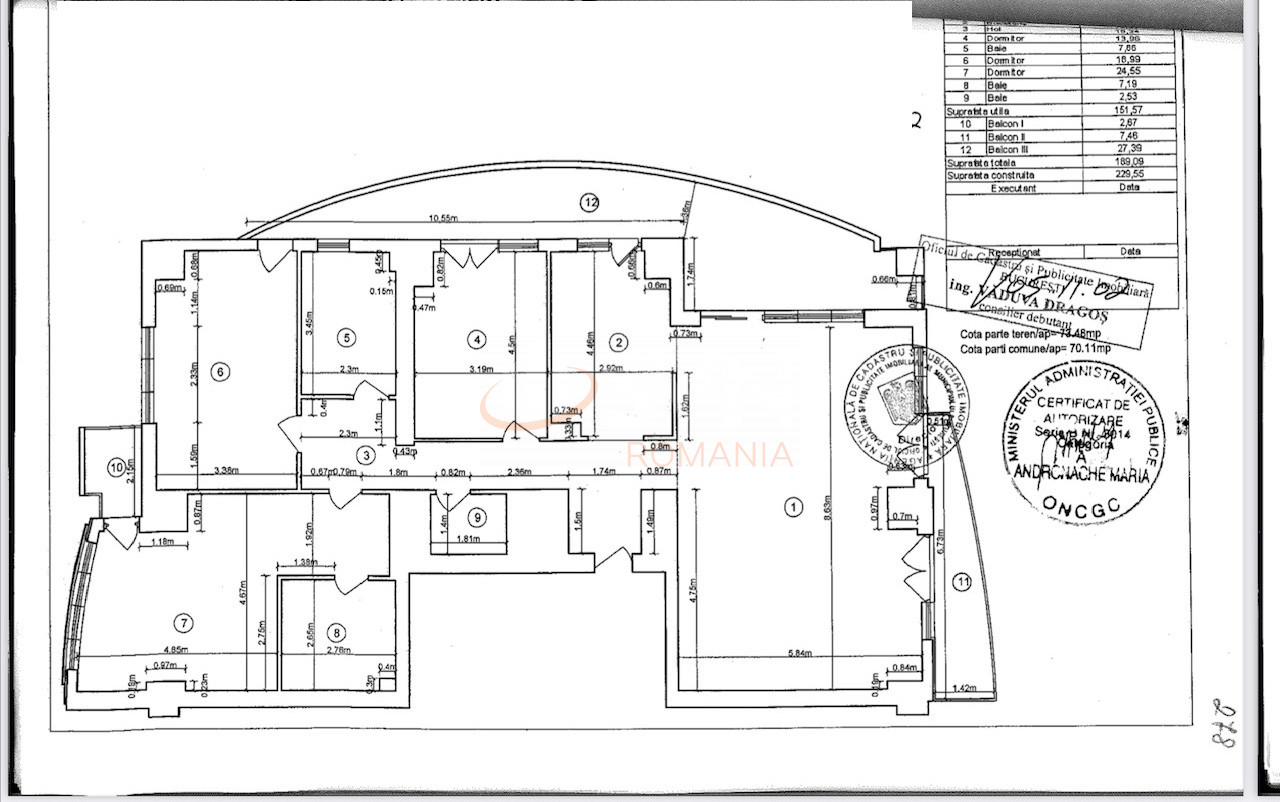
Proprietatea are o suprafata construita de 230mp, din care 152 mp utili, o terasa de 27 mp si 2 balcoane cu o suprafata totala de 10 mp.

Apartamentul este situat la etajul 4, este decomandat si este compus din: living 50 mp, dormitor 25 mp, dormitor 19 mp, dormitor 14 mp, bucatarie 13 mp, 3 bai (8 mp, 7 mp, 3 mp), hol, terasa si 2 balcoane.

Proprietatea se vinde mobilata si cu bucataria complet utilata,

Apartamentul beneficiaza de 2 locuri de parcare situate la subsol -1 (incluse in pretul de vanzare).

Nu detinem informatii despre certificatul energetic.

Proprietatea reprezinta solutia ideala pentru o familie activa, fiind situata in imediata apropiere de statia de metrou Stefan cel Mare, numeroase mijloace de transport in comun, parcuri, institutii bancare, supermarket-uri.

Complexul Central Park beneficiaza de 15.000 mp de spatiu verde, paza 24/7, supraveghere video, asistenta permanenta pentru locatari, loc de joaca pentru copii.

An constructie 2008

Suprafata construita 230 mp

Suprafata utila 152 mp

Suprafata terasa 27

Regim Inaltime 4 / 11

Etaj 4

Nr. camere 4 camere

Nr. bai 3

Nr. balcoane 3 balcoane

Confort Lux

Tip constructie In bloc

Status constructie Finalizat

Disponibila incepand cu 2022-07-29

Judet Bucuresti

Oras/ Sector Sector 2

Zona Stefan Cel Mare

Gps lat 44.453969

Gps lng 26.108002

Supraveghere video

Sistem de alarma

Interfon

Internet prin fibra optica

Curent electric

Supraveghere 24/7

Detector de gaze

Internet Wireless

Internet prin cablu

Cablu TV

Geamuri termopan

Parchet

Apometre

Gresie

Telefon

Loc parcare subteran

Faianta

Gaz

Incalzire proprie

WC serviciu

Mobilat

Aer conditionat

Bucatarie mobilata

Bloc reabiliat termic

Lift

Central Park apartament 4 camere 230mp si 2 locuri de parcare

Proprietate vanduta

Ai o proprietate similara? Vinde-o cu noi.
Vinde apartament

Cod: REA1007176

Proprietati similare

Bucuresti, Stefan Cel Mare

Apartament, 4 camere

150 mp 4 2008

475.000 EUR

Detalii

Bucuresti, Ultracentral, Universitate (s1)

4 camere cu loc parcare subteran inclus

120 mp 6 2020

498.000 EUR

Detalii

Bucuresti, Floreasca

Apartament, 4 camere

114 mp 3 2024

449.000 EUR

Detalii

Bucuresti, Floreasca

Apartament, 4 camere

120 mp 4 2025

499.900 EUR

Detalii

Bucuresti, Dacia, Eminescu

Apartament, 4 camere

167 mp 3 2025

450.900 EUR

Detalii

Bucuresti, Ultracentral, Calea Victoriei

Apartament, 4 camere

110.56 mp 1 1940

490.000 EUR

Detalii

Bucuresti, Ferdinand

Apartament, 4 camere

122 mp 5 2026

428.000 EUR

Detalii

Bucuresti, Mihai Bravu, Mihai Bravu (s2)

Apartament, 4 camere

156.65 mp 3 2026

465.000 EUR

Detalii
Apartamente 4 camere vandute in Stefan Cel Mare, Bucuresti Apartamente 4 camere de vanzare in Stefan Cel Mare, Bucuresti

Afla primul de cele mai bune oferte
inainte sa ajunga pe piata

Aboneaza-te la newsletter

Aboneaza-te la notificari