1 Decembrie 1918 3 camere 67 mp 10 1970

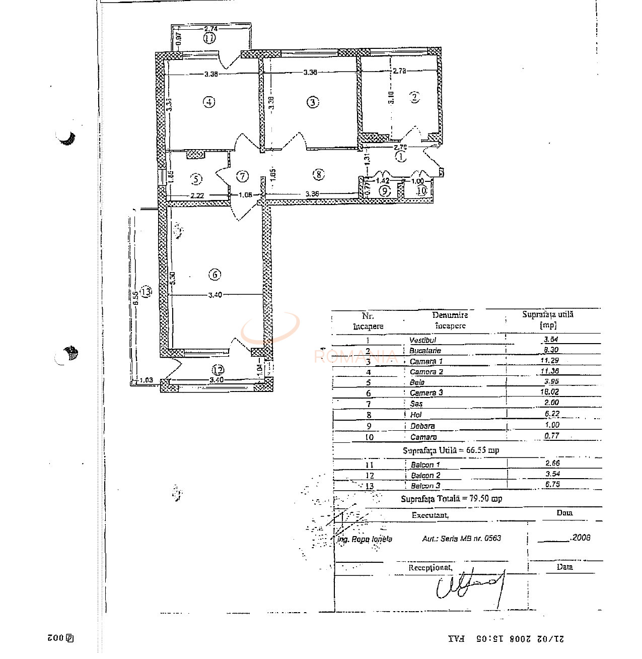
SVN Romania propune spre vanzare un apartament decomandat, compus din 3 camere de locuit, bucatarie, baie cu geam, camara, debara si 3 balcoane.

Apartamentul este situat in zona Trapezului, sector 3, la etajul 10, intr-un bloc reabilitat, in apropriere de piata Trapezului, Gradinita Greierasul, statia de metrou 1 Decembrie 1848, Complexul Sportiv RATB, are o suprafata totala de 80 mp si utila de 67 mp.

In apropriere se regaseste o retea de transport in comun, unitati comerciale, de invatamant, bancare, de cult si de agrement.

Consum total specific de energie din surse regenerabile este 0.

Apartamentul nu este locuit si este disponibil imediat.

Pretul este negociabil.

Pentru mai multe detalii, va rog sa ne contactati.

An constructie 1970

Suprafata construita 80 mp

Suprafata utila 67 mp

Suprafata terasa 11 mp

Regim Inaltime 10 / 10

Etaj 10

Nr. camere 3 camere

Nr. bai 1

Nr. balcoane 3 balcoane

Confort 1

Compartimentare Decomandat

Tip constructie In bloc

Status constructie Finalizat

Disponibila incepand cu 2024-05-09

Judet Bucuresti

Oras/ Sector Sector 3

Zona 1 Decembrie 1918

Gps lat 44.409675

Gps lng 26.172728

Internet prin fibra optica

Internet prin cablu

Curent electric

Cablu TV

Detector de gaze

Interfon

Internet prin Dial-Up

Internet Wireless

Geamuri termopan

Repartitoare

Balcon inchis

Parchet

Apometre

Gresie

Telefon

Faianta

Gaz

Calorifere

Aer conditionat

Bloc reabiliat termic

Lift

Apartment 3 Camere Trapezului Sector 3

Proprietate vanduta

Ai o proprietate similara? Vinde-o cu noi.
Vinde apartament

Cod: REA1019696

Proprietati similare

Bucuresti, Dacia, Armeneasca

Apartament, 3 camere

56 mp 3 1930

89.900 EUR

Detalii
Exclusiv Discount

Bucuresti, Unirii, Unirii (s3)

Apartament, 3 camere

56 mp 3 1930

89.900 EUR

Detalii

Bucuresti, Tei, Lacul Tei

Apartament, 3 camere

64 mp 9 1976

86.000 EUR

Detalii

Bucuresti, Berceni

Apartament, 3 camere

67.29 mp 3 1974

99.000 EUR

Detalii

Bucuresti, Dacia

Apartament, 3 camere

70 mp 2 1960

99.999 EUR

Detalii
Exclusiv Discount

Bucuresti, Giurgiului

Apartament, 3 camere

60.41 mp 8 1976

92.900 EUR

Detalii

Bucuresti, Ultracentral, Cismigiu

Apartament, 3 camere

56.63 mp 4 1932

97.000 EUR

Detalii

Bucuresti, Ultracentral, Piata Victoriei

Apartament, 3 camere

78.31 mp 2 1888

99.000 EUR

Detalii
Apartamente 3 camere vandute in Titan, Bucuresti Apartamente 3 camere de vanzare in Titan, Bucuresti

Afla primul de cele mai bune oferte
inainte sa ajunga pe piata

Aboneaza-te la newsletter

Aboneaza-te la notificari