Decebal 3 camere 69.6 mp 1 1975

Va oferim oportunitatea de a achizitiona un apartament de 3 camere bine amplasat, situat la etajul 1 al unui bloc complet renovat, finalizat in 1975, in apropierea zonei Piata Muncii.

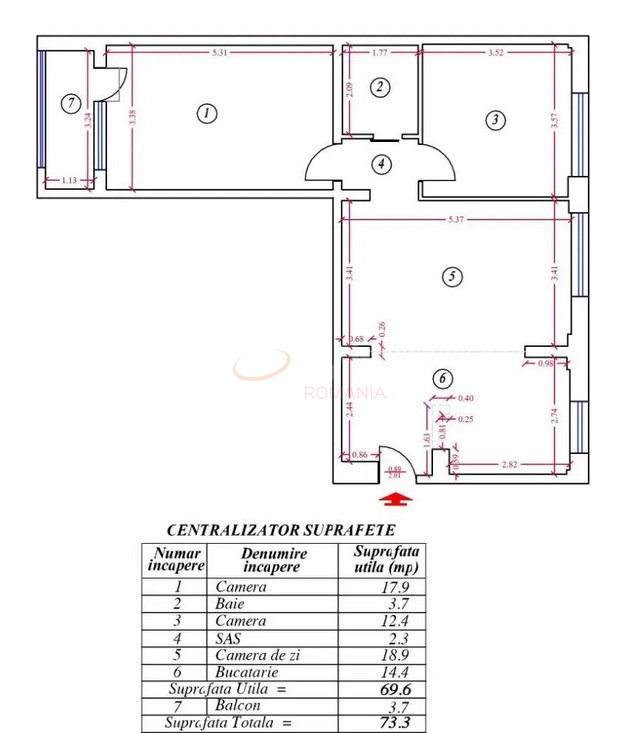
Acest apartament de 73.3 mp se distinge printr-o compartimentare inteligenta si moderna.
Spatiul open-space al livingului si bucatariei, cu o suprafata de 33.3 mp, este ideal pentru viata de zi cu zi si intalniri cu familia si prietenii. Cele doua dormitoare, de 17.9 mp si, respectiv, 12.4 mp, sunt perfecte pentru relaxare si odihna. Baia, cu o suprafata de 3.7 mp, si balconul de aceeasi dimensiune aduc un plus de confort si functionalitate.

Blocul a fost recent anvelopat, asigurand o izolare termica excelenta si un consum energetic redus.

Pentru mai multe informatii si pentru a stabili o vizionare, va invit sa ma contactati.

An constructie 1975

Suprafata construita 73.3 mp

Suprafata utila 69.6 mp

Suprafata terasa 3.7 mp

Regim Inaltime 1 / 10

Etaj 1

Nr. camere 3 camere

Nr. bai 1

Nr. balcoane 1 balcon

Confort 1

Compartimentare Semidecomandat

Tip constructie In bloc

Status constructie Finalizat

Disponibila incepand cu 2024-09-12

Judet Bucuresti

Oras/ Sector Sector 3

Zona Decebal

Gps lat 44.430446

Gps lng 26.138616

Cablu TV

Curent electric

Internet Wireless

Interfon

Geamuri termopan

Repartitoare

Balcon inchis

Parchet

Apometre

Gresie

Telefon

Faianta

Gaz

Calorifere

Mobilat

Bucatarie mobilata

Bloc reabiliat termic

Lift

3 camere l Piata Muncii

Proprietate vanduta

Ai o proprietate similara? Vinde-o cu noi.
Vinde apartament

Cod: REA1021177

Proprietati similare

Bucuresti, Iancului

Apartament, 3 camere

63 mp 7 1963

134.000 EUR

Detalii

Bucuresti, Iancului

Apartament, 3 camere

58.47 mp 9 1969

137.000 EUR

Detalii

Bucuresti, Ferdinand

Apartament, 3 camere

73 mp 8 1969

128.000 EUR

Detalii

Bucuresti, Colentina, Bucur Obor

Apartament, 3 camere

78 mp 10 1977

127.000 EUR

Detalii

Bucuresti, Colentina, Bucur Obor

Apartament, 3 camere

65.54 mp 4 1975

129.999 EUR

Detalii
Exclusiv Discount

Bucuresti, Colentina, Bucur Obor

Apartament, 3 camere

69 mp 10 1975

139.900 EUR

Detalii

Bucuresti, Colentina, Bucur Obor

Apartament, 3 camere

58.34 mp 7 1973

153.000 EUR

Detalii

Bucuresti, Tineretului

Apartament, 3 camere

72.1 mp 10 1976

145.000 EUR

Detalii
Apartamente 3 camere vandute in Decebal, Bucuresti Apartamente 3 camere de vanzare in Decebal, Bucuresti

Afla primul de cele mai bune oferte
inainte sa ajunga pe piata

Aboneaza-te la newsletter

Aboneaza-te la notificari