Decebal 3 camere 73.92 mp 6 1990

SVN RESIDENTIALIST va prezinta un apartament spatios, cu 3 camere si doua bai, situat pe Bulevardul Decebal, la etajul 6 al unui bloc solid, edificat in anul 1990. Decomandat si inteligent compartimentat, acest apartament ofera o locuinta confortabila si functionala pentru o familie sau un cuplu care isi doreste mai mult spatiu.

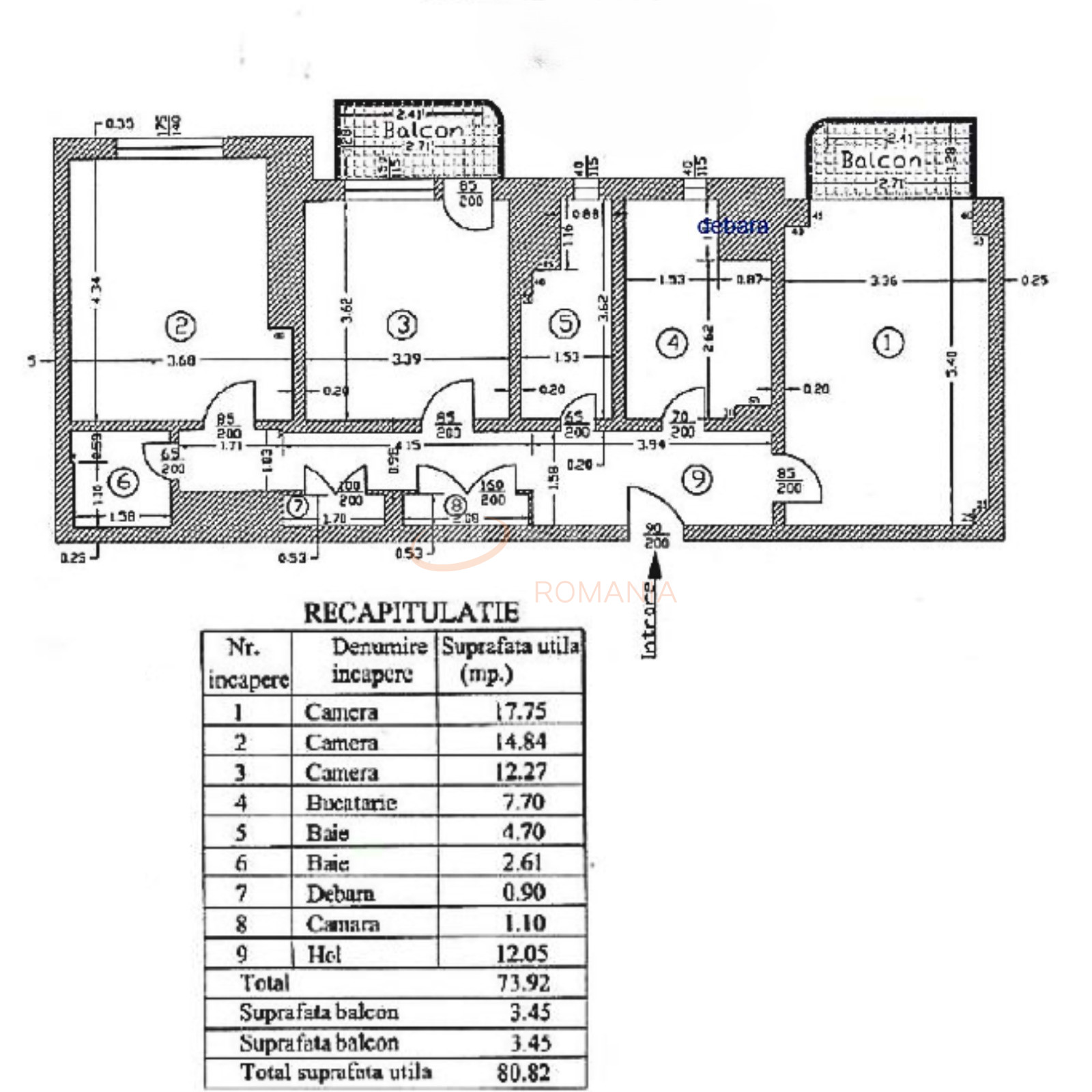
Cu o suprafata generoasa, apartamentul dispune de gresie, faianta si parchet, care ii confera un aer elegant si usor de intretinut. Cele doua bai complete ofera confortul necesar unei familii active, iar cele doua balcoane inchise cu geamuri termopan aduc un plus de spatiu, ideal pentru relaxare sau depozitare suplimentara.

Bucataria inchisa este perfecta pentru cei care apreciaza intimitatea si ordinea in acest spatiu esential al locuintei, iar compartimentarile interioare din zidarie asigura o buna izolare fonica intre camere. Apartamentul dispune de multiple spatii de depozitare, ceea ce contribuie la organizarea eficienta a locuintei si la crearea unui mediu armonios.

In plus, cele doua aparate de aer conditionat asigura confortul termic pe timpul verii, facand din acest apartament un loc in care va puteti bucura de liniste si relaxare, indiferent de anotimp. Blocul se afla intr-o zona excelenta, pe Bulevardul Decebal, la doar cateva minute de mers pe jos de statia de metrou Piata Muncii.

Apartamentul se vinde nemobilat.

Va asteptam la vizionare.

An constructie 1990

Suprafata construita 98 mp

Suprafata utila 73.92 mp

Suprafata terasa 7 mp

Regim Inaltime 6 / 7

Etaj 6

Nr. camere 3 camere

Nr. bai 2

Nr. balcoane 2 balcoane

Confort 1

Compartimentare Decomandat

Tip constructie In bloc

Status constructie Finalizat

Disponibila incepand cu 2024-11-27

Judet Bucuresti

Oras/ Sector Sector 3

Zona Decebal

Gps lat 44.428737

Gps lng 26.133107

Nr. terase 2

Cablu TV

Curent electric

Internet Wireless

Interfon

Geamuri termopan

Balcon inchis

Parchet

Gresie

Faianta

Gaz

Calorifere

WC serviciu

Aer conditionat

Lift

Apartament decomandat 3 camere Decebal

Proprietate vanduta

Ai o proprietate similara? Vinde-o cu noi.
Vinde apartament

Cod: REA1021384

Proprietati similare

Bucuresti, Calea Calarasilor

Apartament, 3 camere

75 mp 7 1995

231.000 EUR

Detalii

Bucuresti, Calea Calarasilor

Apartament, 3 camere

72 mp 3 2013

205.000 EUR

Detalii

Bucuresti, Ferdinand, Foisorul De Foc

Apartament, 3 camere

68.83 mp 2 1940

200.000 EUR

Detalii

Bucuresti, Tineretului, Timpuri Noi

Apartament, 3 camere

66.03 mp 2 2027

234.000 EUR

Detalii

Bucuresti, Tineretului, Timpuri Noi

Apartament, 3 camere

69.59 mp 3 2027

235.000 EUR

Detalii

Bucuresti, Tineretului, Timpuri Noi

Apartament, 3 camere

67.24 mp P 2027

227.000 EUR

Detalii

Bucuresti, Tineretului, Timpuri Noi

Apartament, 3 camere

66.85 mp 5 2027

225.000 EUR

Detalii

Bucuresti, Colentina, Bucur Obor

Apartament, 3 camere

81.5 mp 3 2026

214.400 EUR

Detalii
Apartamente 3 camere vandute in Decebal, Bucuresti Apartamente 3 camere de vanzare in Decebal, Bucuresti

Afla primul de cele mai bune oferte
inainte sa ajunga pe piata

Aboneaza-te la newsletter

Aboneaza-te la notificari