Ozana 3 camere 62 mp 4 1976

SVN România va propune spre achizitie un apartament compus din 3 camere decomandat situat in zona Trapezului din sectorul 3, la doar 200 metri (2 minute de parcurs pietonal) fata de bulevardul Th. Pallady, statia de metrou 1 Decembrie 1918, statia de tramvai si STB.

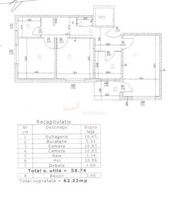
Proprietatea are suprafata utila totala de 62.22 mp, unde este inclus si balconul închis de 3.48 mp. Blocul este construit in anul 1976, are regim de inaltime P+10E, are lift si este reabilitat. Apartamentul este total renovat.

Certificat energetic disponibil - Clasa energetica C

Apartamentul este situat la etajul 4/10 si este compus din:

- Living 16.45 mp
- Bucatarie 5.33 mp
- Dormitor 10.83 mp
- Dormitor 10.83 mp
- Baie 3.34 mp
- Hol 10.96 mp
- Debara 1.00 mp
- Balcon 3.48 mp

Imobilul se afla în apropierea mijloacelor de transport în comun (STB, tramvai, metrou la 200m), este situat într-o zona linistita care acopera toate necesitatile, având în vecinatate parcuri, supermarketuri si hypermarkturi ( Mega Image, Lidl, Kaufland. Profi, Auchan, Jumbo, Ikea 2, Metro, Jysk, Dedeman, Leroy Merlin), scoli si gradinite.

Pentru mai multe detalii sau vizionari, nu ezitati sa ne contactati!

An constructie 1976

Suprafata construita 68 mp

Suprafata utila 62 mp

Regim Inaltime 4 / 10

Etaj 4

Nr. camere 3 camere

Nr. bai 1

Nr. balcoane 1 balcon

Confort 1

Compartimentare Decomandat

Tip constructie In bloc

Status constructie Finalizat

Disponibila incepand cu 2023-04-06

Judet Bucuresti

Oras/ Sector Sector 3

Zona Ozana

Gps lat 44.409785

Gps lng 26.171467

Cablu TV

Curent electric

Interfon

Geamuri termopan

Repartitoare

Balcon inchis

Parchet

Apometre

Gresie

Faianta

Gaz

Calorifere

Mobilat

Bucatarie mobilata

Lift

Apartament 3 camere la 200m de statia de metrou 1 Decembrie 1918

Proprietate vanduta

Ai o proprietate similara? Vinde-o cu noi.
Vinde apartament

Cod: REA1014447

Proprietati similare

Bucuresti, Pantelimon

Apartament, 3 camere

59.68 mp 10 1983

102.500 EUR

Detalii

Bucuresti, Dacia, Armeneasca

Apartament, 3 camere

56 mp 3 1930

89.900 EUR

Detalii
Exclusiv Discount

Bucuresti, Unirii, Unirii (s3)

Apartament, 3 camere

56 mp 3 1930

89.900 EUR

Detalii

Bucuresti, Tei, Lacul Tei

Apartament, 3 camere

64 mp 9 1976

86.000 EUR

Detalii

Bucuresti, Berceni

Apartament, 3 camere

67.29 mp 3 1974

99.000 EUR

Detalii

Bucuresti, Dacia

Apartament, 3 camere

70 mp 2 1960

99.999 EUR

Detalii
Exclusiv Discount

Bucuresti, Giurgiului

Apartament, 3 camere

60.41 mp 8 1976

92.900 EUR

Detalii

Bucuresti, Ultracentral, Cismigiu

Apartament, 3 camere

56.63 mp 4 1932

97.000 EUR

Detalii
Apartamente 3 camere vandute in Titan, Bucuresti Apartamente 3 camere de vanzare in Titan, Bucuresti

Afla primul de cele mai bune oferte
inainte sa ajunga pe piata

Aboneaza-te la newsletter

Aboneaza-te la notificari