Theodor Pallady 3 camere 112.2 mp 7 2020

SVN Romania va propune spre vanzare un apartament deosebit de 3 camere amplasat intr-o zona semicentrala a Bucurestiului, zona Theodor Pallady.
Apartamentul este situat la etajul 7 din 7 al unui imobil finalizat in anul 2021.

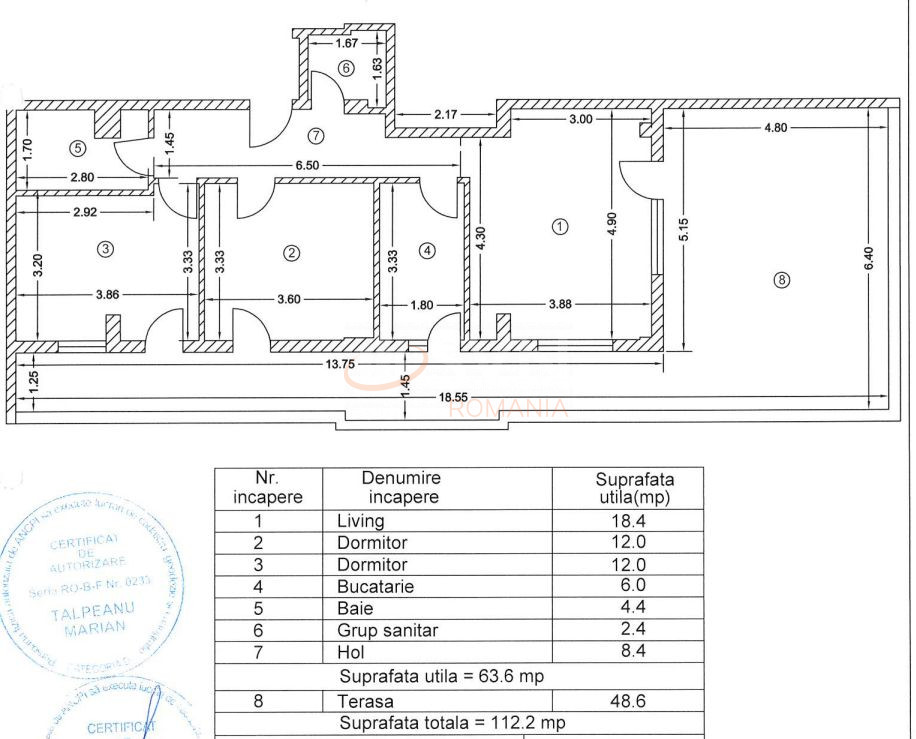
Apartamentul dispune de o compartimentare decomandata, fiind compus din: hol, living, bucatarie, 2 dormitoare, 2 bai, toate acestea avand suprafata totala de 63.6mp + terasa de 48.6 mp.

Apartamentul este finisat, dispune de camere luminoase, parchet, gresie, faianta, usa metalica la intrare, centrala proprie.


In vecinatate regasim la doar 10 minute de mers pe jos statia de metrou Nicolae Teclu si alte mijloace de transport in comun. Puncte de interes in apropiere: magazine, hipermarketuri, restaurante, scoli, parcuri.

Pretul afisat este + TVA

Nu detinem informatii despre clasa energetica a imobilului.

Pentru mai multe detalii si vizionari va stau la dispozitie.

An constructie 2020

Suprafata construita 120 mp

Suprafata utila 112.2 mp

Suprafata terasa 48.6

Regim Inaltime 7 / 7

Etaj 7

Nr. camere 3 camere

Nr. bai 2

Nr. balcoane 0 balcoane

Confort 1

Tip constructie In bloc

Status constructie Finalizat

Judet Bucuresti

Oras/ Sector Sector 3

Zona Theodor Pallady

Gps lat 44.410549

Gps lng 26.189737

Supraveghere video

Internet prin fibra optica

Cablu TV

Detector de gaze

Interfon

Curent electric

Geamuri termopan

Repartitoare

Parchet

Apometre

Gresie

Telefon

Faianta

Gaz

Incalzire proprie

Lift

Apartament 3 camere cu terasa Theodor Pallady

Proprietate vanduta

Ai o proprietate similara? Vinde-o cu noi.
Vinde apartament

Cod: REA1009462

Proprietati similare

Bucuresti, Pantelimon

Apartament, 3 camere

59.68 mp 10 1983

102.500 EUR

Detalii

Bucuresti, Tei, Lacul Tei

Apartament, 3 camere

64 mp 9 1976

86.000 EUR

Detalii

Bucuresti, Dacia, Armeneasca

Apartament, 3 camere

56 mp 3 1930

89.900 EUR

Detalii
Exclusiv Discount

Bucuresti, Unirii, Unirii (s3)

Apartament, 3 camere

56 mp 3 1930

89.900 EUR

Detalii

Bucuresti, Dacia

Apartament, 3 camere

70 mp 2 1960

99.999 EUR

Detalii

Bucuresti, Berceni

Apartament, 3 camere

67.29 mp 3 1974

99.000 EUR

Detalii
Exclusiv Discount

Bucuresti, Giurgiului

Apartament, 3 camere

60.41 mp 8 1976

92.900 EUR

Detalii

Bucuresti, Ultracentral, Cismigiu

Apartament, 3 camere

56.63 mp 4 1932

97.000 EUR

Detalii
Apartamente 3 camere vandute in Titan, Bucuresti Apartamente 3 camere de vanzare in Titan, Bucuresti

Afla primul de cele mai bune oferte
inainte sa ajunga pe piata

Aboneaza-te la newsletter

Aboneaza-te la notificari