Titan 2 camere 74 mp 1 2023

SVN Residentialist Romania va propune spre vanzare un apartament deosebit de 2 camere decomnadat cu terasa amplasat intr-o zona semicentrala a Bucurestiului, zona Titan.
Apartamentul este situat la etajul 1 din 4 al unui imobil finalizat anul acesta .

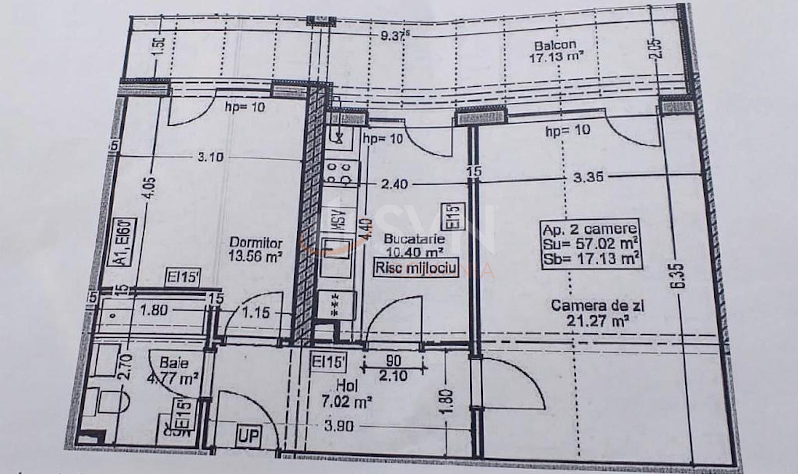
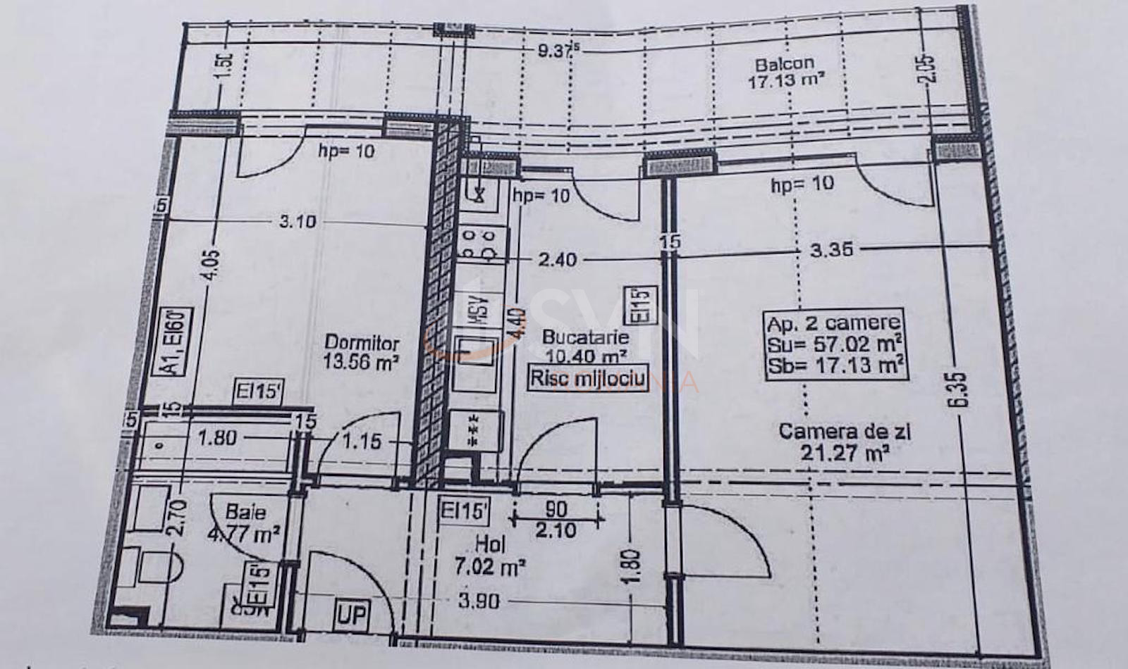
Apartamentul dispune de o compartimentare decomandata, fiind compus din: hol, living generos de 21mp, bucatarie inchisa de 10mp, dormitor de 13,6 mp si o baie de 5mp, toate acestea avand suprafata totala de 57mp + terasa de 17 mp.

Apartamentul are si o boxa generoasa de 12 mp inclusa in pret.

Apartamentul este finisat, dispune de camere luminoase, parchet, gresie, faianta, usa metalica la intrare, centrala proprie si se vinde complet mobilat si utilat asa cum este prezentat in poze.


In vecinatate regasim la doar 10 minute de mers pe jos statia de metrou Nicolae Teclu Auchan Titan la 10 minute si alte mijloace de transport in comun.

Puncte de interes in apropiere: magazine, hipermarketuri, restaurante, scoli, parcuri.

Pentru mai multe detalii si vizionari va rog sa ma contactati.

An constructie 2023

Suprafata construita 90 mp

Suprafata utila 74 mp

Suprafata terasa 17 mp

Regim Inaltime 1 / 4

Etaj 1

Nr. camere 2 camere

Nr. bai 1

Nr. balcoane 1 balcon

Confort 1

Compartimentare Decomandat

Tip constructie In bloc

Status constructie Finalizat

Disponibila incepand cu 2023-10-24

Judet Bucuresti

Oras/ Sector Sector 3

Zona Titan

Gps lat 44.420559

Gps lng 26.189089

Curent electric

Internet prin cablu

Cablu TV

Interfon

Geamuri termopan

Parchet

Boxa

Gresie

Faianta

Gaz

Calorifere

Incalzire proprie

Mobilat

Aer conditionat

Bucatarie mobilata

Lift

2 camere decomandat Titan cu boxa inclusa

Proprietate vanduta

Ai o proprietate similara? Vinde-o cu noi.
Vinde apartament

Cod: REA1016963

Proprietati similare

Bucuresti, Titan

Apartament, 2 camere

64 mp 4 2025

107.200 EUR

Detalii

Bucuresti, Titan, Theodor Pallady

2 camere cu loc parcare subteran inclus

43.29 mp 3 2007

105.000 EUR

Detalii

Bucuresti, Dristor

Apartament, 2 camere

45.06 mp 9 1964

98.000 EUR

Detalii

Bucuresti, Unirii, Splaiul Unirii (s3)

Apartament, 2 camere

63.5 mp 4 2026

110.800 EUR

Detalii

Bucuresti, Iancului

Apartament, 2 camere

54.26 mp 8 1960

105.000 EUR

Detalii
Exclusiv Discount

Bucuresti, Colentina, Bucur Obor

Apartament, 2 camere

46.6 mp 1 2026

114.065 EUR

Detalii

Bucuresti, Colentina, Doamna Ghica

Apartament, 2 camere

43.17 mp 4 2024

96.500 EUR

Detalii

Bucuresti, Unirii, Piata Unirii (s3)

Apartament, 2 camere

59 mp P 1932

105.000 EUR

Detalii
Apartamente 2 camere vandute in Titan, Bucuresti Apartamente 2 camere de vanzare in Titan, Bucuresti

Afla primul de cele mai bune oferte
inainte sa ajunga pe piata

Aboneaza-te la newsletter

Aboneaza-te la notificari