Titan 3 camere 80 mp 3 2019

Va propunem spre vanzare un apartament de 3 camere situat in zona Titan - Nicolae Grigorescu. Imobilul este ingrijit, nou, construit in anul 2019. In acest imobil exista apartamente de 2,3 si 4 camere dispuse fie pe un etaj, fie pe 2 (etajul 3 + 4).
Blocul este situat intr-o zona linistita, aproape de:

LIncontro - 1 minut
Auchan Titan - 8 minute
Supeco - 5 minute
etc.

Acces facil catre mijloacele de transport in comun 101, 102, 311, 335 si la 12 minute de mers pe jos fata de Metrou Nicolae Grigorescu. In imprejurimi exista mai multe centre comerciale, scoli, gradinite etc.


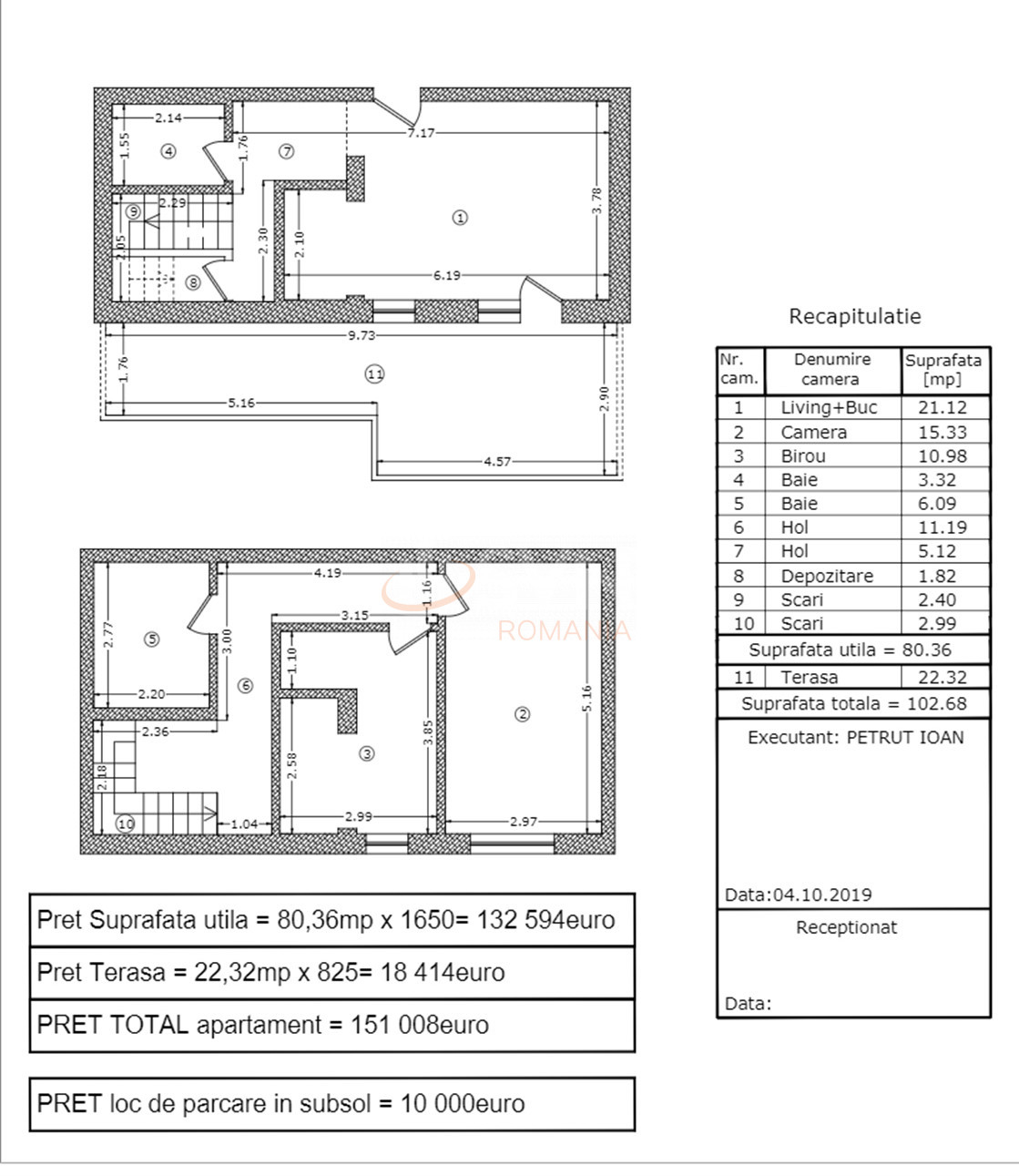
Acesta este format din living, dormitor, birou, bucatarie, 2 bai, terasa, toate insumand suprafata utila de 102 mp. Apartamentul se poate achizitiona la pretul de 1650 euro/mp - vezi schita.


Pentru mai multe detalii va stau la dispozitie!

An constructie 2019

Suprafata construita 114 mp

Suprafata utila 80 mp

Suprafata terasa 22

Regim Inaltime 3 / 4

Etaj 3

Nr. camere 3 camere

Nr. bai 2

Nr. balcoane 0 balcoane

Confort 1

Tip constructie In bloc

Status constructie Finalizat

Disponibila incepand cu 2020-10-20

Judet Bucuresti

Oras/ Sector Sector 3

Zona Titan

Gps lat 44.417262

Gps lng 26.173045

Nr. terase 1

Curent electric

Geamuri termopan

Parchet

Gresie

Loc parcare subteran

Faianta

Gaz

Incalzire proprie

WC serviciu

Apartament 3 camere cu Terasa Titan

Proprietate vanduta

Ai o proprietate similara? Vinde-o cu noi.
Vinde apartament

Cod: REA1004183

Proprietati similare

Bucuresti, Titan, Salajan

Apartament, 3 camere

90.4 mp 1 2025

162.720 EUR

Detalii

Bucuresti, Titan, Nicolae Grigorescu

Apartament, 3 camere

60.39 mp 3 2007

165.000 EUR

Detalii

Bucuresti, Unirii, Splaiul Unirii (s3)

Apartament, 3 camere

91.2 mp 5 2026

159.144 EUR

Detalii

Bucuresti, Dristor

Apartament, 3 camere

75 mp P 1982

150.000 EUR

Detalii
Exclusiv Discount

Bucuresti, Titan, Nicolae Grigorescu

3 camere cu loc parcare subteran inclus

76 mp 2 2025

137.500 EUR

Detalii

Bucuresti, Decebal

Apartament, 3 camere

77 mp P 1958

160.000 EUR

Detalii

Bucuresti, Pantelimon

Apartament, 3 camere

66.09 mp 3 1975

149.500 EUR

Detalii

Bucuresti, Berceni, Vitan-barzesti (s4)

Apartament, 3 camere

65.7 mp 7 2021

162.000 EUR

Detalii
Apartamente 3 camere vandute in Titan, Bucuresti Apartamente 3 camere de vanzare in Titan, Bucuresti

Afla primul de cele mai bune oferte
inainte sa ajunga pe piata

Aboneaza-te la newsletter

Aboneaza-te la notificari