Titan 3 camere 66.5 mp 10 2010

SVN Romania va propune spre vanzare un apartament deosebit de 3 camere amplasat intr-o zona semicentrala a Bucurestiului, zona Titan.

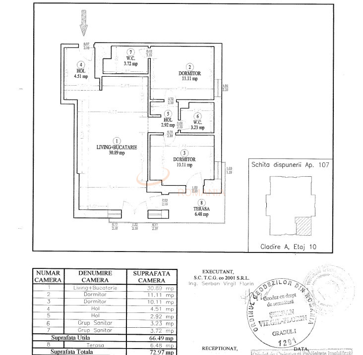
Apartamentul este situat la etajul 10 din 11 al unui imobil finalizat in anul 2010.

Apartamentul dispune de o compartimentare semidecomandata, fiind compus din: hol, living, bucatarie open space, 2 dormitoare, baie, toate acestea avand suprafata totala de 66mp utili + 6mp terasa.

Apartamentul este finisat, dispune de camere luminoase, parchet, gresie, faianta, usa metalica la intrare, centrala proprie, mobilier.


In vecinatate regasim la doar 10 minute de mers pe jos statia de metrou Titan si alte mijloace de transport in comun. Puncte de interes in apropiere: magazine, hipermarketuri, restaurante, scoli, parcuri.

Nu detinem informatii despre clasa energetica a imobilului.

Pentru mai multe detalii si vizionari va stau la dispozitie.

An constructie 2010

Suprafata construita 75 mp

Suprafata utila 66.5 mp

Suprafata terasa 6 mp

Regim Inaltime 10 / 11

Etaj 10

Nr. camere 3 camere

Nr. bai 1

Nr. balcoane 1 balcon

Confort 1

Compartimentare Semidecomandat

Tip constructie In bloc

Status constructie Finalizat

Disponibila incepand cu 2023-04-27

Judet Bucuresti

Oras/ Sector Sector 3

Zona Titan

Gps lat 44.420223

Gps lng 26.171825

Interfon

Detector de gaze

Internet prin fibra optica

Supraveghere video

Cablu TV

Internet Wireless

Sistem de alarma

Supraveghere 24/7

Curent electric

Geamuri termopan

Repartitoare

Balcon inchis

Parchet

Apometre

Gresie

Telefon

Faianta

Gaz

Calorifere

Incalzire proprie

Mobilat

Aer conditionat

Bucatarie mobilata

Lift

Apartament 3 camere Titan Mobilat Utilat

Proprietate vanduta

Ai o proprietate similara? Vinde-o cu noi.
Vinde apartament

Cod: REA1014736

Proprietati similare

Bucuresti, Titan, Theodor Pallady

Apartament, 3 camere

62.23 mp 4 1967

125.000 EUR

Detalii

Bucuresti, Titan, 1 Decembrie 1918

Apartament, 3 camere

65 mp 1 1970

129.900 EUR

Detalii

Bucuresti, Muncii, Piata Muncii

Apartament, 3 camere

67 mp 7 1963

125.000 EUR

Detalii

Bucuresti, Titan, Baba Novac

Apartament, 3 camere

60.06 mp 6 1971

145.000 EUR

Detalii

Bucuresti, Unirii, Splaiul Unirii (s3)

Apartament, 3 camere

75.7 mp 11 2026

132.097 EUR

Detalii

Bucuresti, Vitan

Apartament, 3 camere

71 mp 4 2025

135.000 EUR

Detalii
Exclusiv Discount

Bucuresti, Titan, Nicolae Grigorescu

3 camere cu loc parcare subteran inclus

76 mp 2 2025

137.500 EUR

Detalii

Bucuresti, Colentina, Doamna Ghica

Apartament, 3 camere

76 mp P 1987

130.000 EUR

Detalii
Apartamente 3 camere vandute in Titan, Bucuresti Apartamente 3 camere de vanzare in Titan, Bucuresti

Afla primul de cele mai bune oferte
inainte sa ajunga pe piata

Aboneaza-te la newsletter

Aboneaza-te la notificari