Unirii (s3) 3 camere 78 mp 3 2016

Avem placerea de a va oferi spre vanzare un apartament cu 3 camere situat la etajul 3 al unui bloc finalizat in anul 2016, din zona Unirii-Udriste.
Proiectul este printre putinele ansambluri rezidentiale situate ultracentral oferind in acelasi timp intimitatea unei zone rezidentiale de vile.

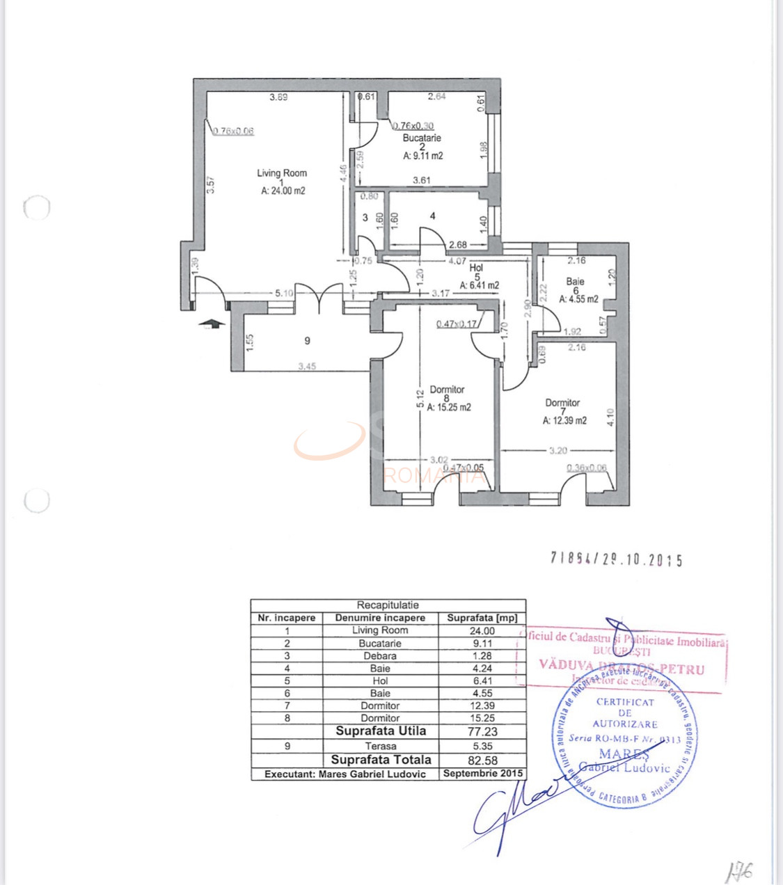
Apartamentul este decomandat si este format din: hol, living, bucatarie inchisa, debara, 2 dormitoare, 2 bai si 1 balcon inchis, toate acestea insumand suprafata totala de 83 mp.

Beneficiaza de finisaje de calitate superioara, precum: parchet triplustratificat, centrala termica proprie Vaillant, usi interioare pline Porta Doors, obiecte sanitare Grohe, rulouri electrice la ferestrele de la dormitoare, 2 aere conditionate si usa exterioara metalica Pinum.

Imobilul are un regim de inaltime P+3E+M, are lift, este construit cu structura pe cadre, stalpi si diafragme din beton armat. Toti peretii sunt din caramida porotherm, peretii dintre apartamente fiind de 25 cm. Tamplaria este tip termopan cu 3 foi de sticla si profil cu 5 camere de izolare marca Salamander, culoare gri antracit.
Apartamentul este foarte calduros iarna si vara mentine racoarea.

Pozitionarea lui ultracentrala faciliteaza accesul rapid catre scoli, statii de metrou si autobuz, banci, supermarket-uri si centre comerciale.
Statia de metrou Unirii este la 10 minute de mers pe jos iar statia de tramvai si autobuz la o distanta de 200 metri.

Nu detinem informatii despre clasa energetica in care este incadrat imobilul. Certificatul energetic va fi disponibil la vanzare.

Pentru mai multe detalii si vizionari va stau la dispozitie.

An constructie 2016

Suprafata construita 117 mp

Suprafata utila 78 mp

Suprafata terasa 5.35 mp

Regim Inaltime 3 / 4

Etaj 3

Nr. camere 3 camere

Nr. bai 2

Nr. balcoane 1 balcon

Confort 1

Compartimentare Decomandat

Tip constructie In bloc

Status constructie Finalizat

Disponibila incepand cu 2022-12-09

Judet Bucuresti

Oras/ Sector Sector 3

Zona Unirii (s3)

Gps lat 44.430696

Gps lng 26.116040

Detector de gaze

Interfon

Internet Wireless

Curent electric

Internet prin Dial-Up

Internet prin cablu

Cablu TV

Geamuri termopan

Repartitoare

Balcon inchis

Parchet

Apometre

Gresie

Telefon

Faianta

Gaz

Incalzire proprie

WC serviciu

Mobilat

Aer conditionat

Bucatarie mobilata

Lift

Apartament 3 camere UNIRII - UDRISTE

Proprietate vanduta

Ai o proprietate similara? Vinde-o cu noi.
Vinde apartament

Cod: REA1010465

Proprietati similare

Bucuresti, Calea Calarasilor

Apartament, 3 camere

72 mp 7 1995

205.000 EUR

Detalii

Bucuresti, Calea Calarasilor

Apartament, 3 camere

107 mp 1 1924

200.000 EUR

Detalii

Bucuresti, Ferdinand, Foisorul De Foc

Apartament, 3 camere

68.83 mp 2 1940

200.000 EUR

Detalii

Bucuresti, Calea Calarasilor, Matei Basarab

3 camere cu loc parcare exterior inclus

80 mp 6 1994

228.500 EUR

Detalii

Bucuresti, Unirii, Unirii (s3)

Apartament, 3 camere

77 mp 8 1993

225.000 EUR

Detalii

Bucuresti, Unirii, Splaiul Unirii (s3)

Apartament, 3 camere

64 mp 4 1980

197.000 EUR

Detalii

Bucuresti, Ultracentral, Universitate (s1)

Apartament, 3 camere

76 mp 1 1950

199.000 EUR

Detalii

Bucuresti, Unirii, Piata Unirii (s3)

Apartament, 3 camere

90.85 mp 2 2008

200.000 EUR

Detalii
Apartamente 3 camere vandute in Unirii, Bucuresti Apartamente 3 camere de vanzare in Unirii, Bucuresti

Afla primul de cele mai bune oferte
inainte sa ajunga pe piata

Aboneaza-te la newsletter

Aboneaza-te la notificari