Parcul Carol 3 camere 79.65 mp 1 2023

SVN Romania va ofera spre vanzare apartament de 3 camere situat in complexul rezidential Theva Olimpului.

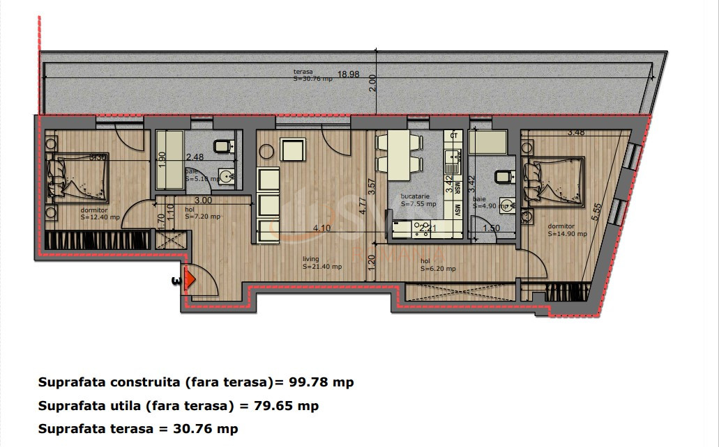
Apartamentul cu 3 camere este format din hol cu zona de dressing, living cu acces pe terasa, bucatarie openspace, baie si 2 dormitoare. Suprafata utila a apartamentului este de 79 mp plus terasa de 31 mp.

Locuinta se preda finisata cu urmatoarele materiale: Usi interior, exterior Pinum, placi ceramice import Spania, tamplarie Salamander Stremline 7 camere, incalzire in pardoseala cu termostat pentru fiecare incapere, parchet triplustratificat dedicat incalzirii in pardoseala.

Fiecare dintre cele 8 apartamente dispune de un design modern si elegant. Toate apartamentele sunt dotate cu sistem de incalzire centralizat si aer conditionat, finisaje premium si ferestre mari ce ofera lumina naturala si privelisti panoramice. Fiecare apartament are in plus terase spatioase, unde va puteti relaxa si admira frumusetea zonei.

Va invitam sa descoperiti si alte variante de compartimentare a apartamentelor din acest complex pe pagina noastra de proiect : https://residentialist.ro/anunt/REP5000280 .

Preturile afisate NU includ TVA.

Certificatul energetic disponibil in momentul vanzarii.

Pentru mai multe detalii va rugam sa ne contactati!

An constructie 2023

Suprafata construita 90.5 mp

Suprafata utila 79.65 mp

Suprafata terasa 31

Regim Inaltime 1 / 3

Etaj 1

Nr. camere 3 camere

Nr. bai 2

Nr. balcoane 0 balcoane

Confort 1

Compartimentare Semidecomandat

Tip constructie In bloc

Status constructie Finalizat

Disponibila incepand cu 2023-09-01

Judet Bucuresti

Oras/ Sector Sector 4

Zona Parcul Carol

Gps lat 44.421595

Gps lng 26.098626

Complex rezidential Theva Olimpului Residence

Nr. terase 1

Internet prin fibra optica

Sistem de alarma

Cablu TV

Internet Wireless

Supraveghere video

Curent electric

Interfon

Supraveghere 24/7

Geamuri termopan

Parchet

Apometre

Gresie

Telefon

Loc parcare subteran

Faianta

Gaz

Incalzire prin pardoseala

Incalzire proprie

WC serviciu

Aer conditionat

Apartament 3 camere Bloc Nou Premium Parcul Carol

Proprietate vanduta

Ai o proprietate similara? Vinde-o cu noi.
Vinde apartament

Cod: REA1015187

Proprietati similare

Bucuresti, Sector 4, Unirii

Apartament, 3 camere

67 mp P 2004

255.000 EUR

Detalii

Bucuresti, Sector 3, P-ta Unirii

Apartament, 3 camere

74 mp 5 1992

260.000 EUR

Detalii

Bucuresti, Rahova, Viilor

3 camere cu loc parcare exterior inclus

87 mp 10 2019

230.000 EUR

Detalii

Bucuresti, Tineretului, Timpuri Noi

Apartament, 3 camere

66.85 mp 5 2027

232.000 EUR

Detalii

Bucuresti, Tineretului, Timpuri Noi

Apartament, 3 camere

67.24 mp P 2027

234.000 EUR

Detalii

Bucuresti, Tineretului, Timpuri Noi

Apartament, 3 camere

83.98 mp 2 2027

277.000 EUR

Detalii

Bucuresti, Tineretului, Timpuri Noi

Apartament, 3 camere

66.03 mp 2 2027

234.000 EUR

Detalii

Bucuresti, Tineretului, Timpuri Noi

Apartament, 3 camere

69.59 mp 3 2027

235.000 EUR

Detalii
Apartamente 3 camere vandute in Parcul Carol, Bucuresti Apartamente 3 camere de vanzare in Parcul Carol, Bucuresti

Afla primul de cele mai bune oferte
inainte sa ajunga pe piata

Aboneaza-te la newsletter

Aboneaza-te la notificari