Timpuri Noi 1 camera 36.1 mp 3 1993

SVN Romania va propune spre vanzare o garsoniera situata intr-o zona centrala, cu acces rapid catre Timpuri Noi, Nerva Traian si Bd. Unirii. Locatia ofera multiple avantaje: apropiere de statii de metrou, mijloace de transport in comun, universitati, spatii de birouri, restaurante si supermarketuri. Este o alegere ideala atat pentru locuit, cat si pentru investitie.

Despre cladire:

Bloc de locuinte

Regim de inaltime: S+P+8E

An constructie:1993

Doua lifturi functionale

Interfon

Birou administrativ la parter

Despre apartament:

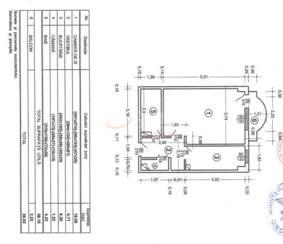
Suprafata utila: 36.1 mp

Volum incalzit: 93.86 m³

Pozitie: apartament de mijloc

Orientare: Nord

Clasa energetica: B

Certificat energetic emis la data de 14.08.2019

Se vinde complet mobilata si utilata – gata de mutare

Dotari:

Sistem de incalzire prin RADET

Repartitoare de caldura instalate

Retea de gaz functionala pentru bucatarie, cu senzor de gaze

Aer conditionat TESLA – 12000 BTU

Mobilier si electrocasnice incluse

Garsoniera este compartimentata eficient, ideala pentru o persoana sau un cuplu, fiind o alegere excelenta pentru cei care cauta un spatiu confortabil si bine localizat in Bucuresti.

Pentru mai multe detalii si pentru a programa o vizionare, nu ezitati sa ma contactati!

An constructie 1993

Suprafata construita 41.52 mp

Suprafata utila 36.1 mp

Suprafata terasa 2.92 mp

Regim Inaltime 3 / 8

Etaj 3

Nr. camere 1 camera

Nr. bai 1

Nr. balcoane 1 balcon

Confort 1

Compartimentare Decomandat

Tip constructie In bloc

Status constructie Finalizat

Disponibila incepand cu 2025-09-11

Judet Bucuresti

Oras/ Sector Sector 4

Zona Timpuri Noi

Gps lat 44.422048

Gps lng 26.119956

Internet prin cablu

Internet Wireless

Interfon

Detector de gaze

Cablu TV

Curent electric

Geamuri termopan

Repartitoare

Balcon inchis

Parchet

Apometre

Gresie

Telefon

Faianta

Gaz

Calorifere

Mobilat

Aer conditionat

Bucatarie mobilata

Bloc reabiliat termic

Lift

Garsoniera l Timpuri Noi l Mobilata si Utilata Complet

Proprietate vanduta

Ai o proprietate similara? Vinde-o cu noi.
Vinde apartament

Cod: REA1023972

Proprietati similare

Bucuresti, Unirii, Nerva Traian

Garsoniera

37 mp 7 2000

105.000 EUR

Detalii

Bucuresti, Decebal

Garsoniera

38.5 mp 4 1986

107.500 EUR

Detalii

Bucuresti, Calea Calarasilor

Garsoniera

42 mp 6 1996

105.000 EUR

Detalii

Bucuresti, Ultracentral, Calea Victoriei

Garsoniera

20 mp P 1950

93.000 EUR

Detalii

Bucuresti, Sector 1, Universitate

Garsoniera

25.5 mp 4 1960

110.000 EUR

Detalii

Bucuresti, Sector 3, P-ta Unirii

Garsoniera

36.62 mp 2 1976

109.500 EUR

Detalii

Bucuresti, Sector 1, P-ta Romana

Garsoniera

21.5 mp 1 1962

95.000 EUR

Detalii

Bucuresti, Mosilor

Garsoniera

26.7 mp 2 2026

97.743 EUR

Detalii
Apartamente 1 camera vandute in Tineretului, Bucuresti Apartamente 1 camera de vanzare in Tineretului, Bucuresti

Afla primul de cele mai bune oferte
inainte sa ajunga pe piata

Aboneaza-te la newsletter

Aboneaza-te la notificari