Tineretului 3 camere 68 mp 1 2021

Avem placerea de a va oferi spre vanzare un apartament cu 3 camere situat la etajul 1 din 3 al unui bloc finalizat in anul 2021, din zona Tineretului - Unirii.

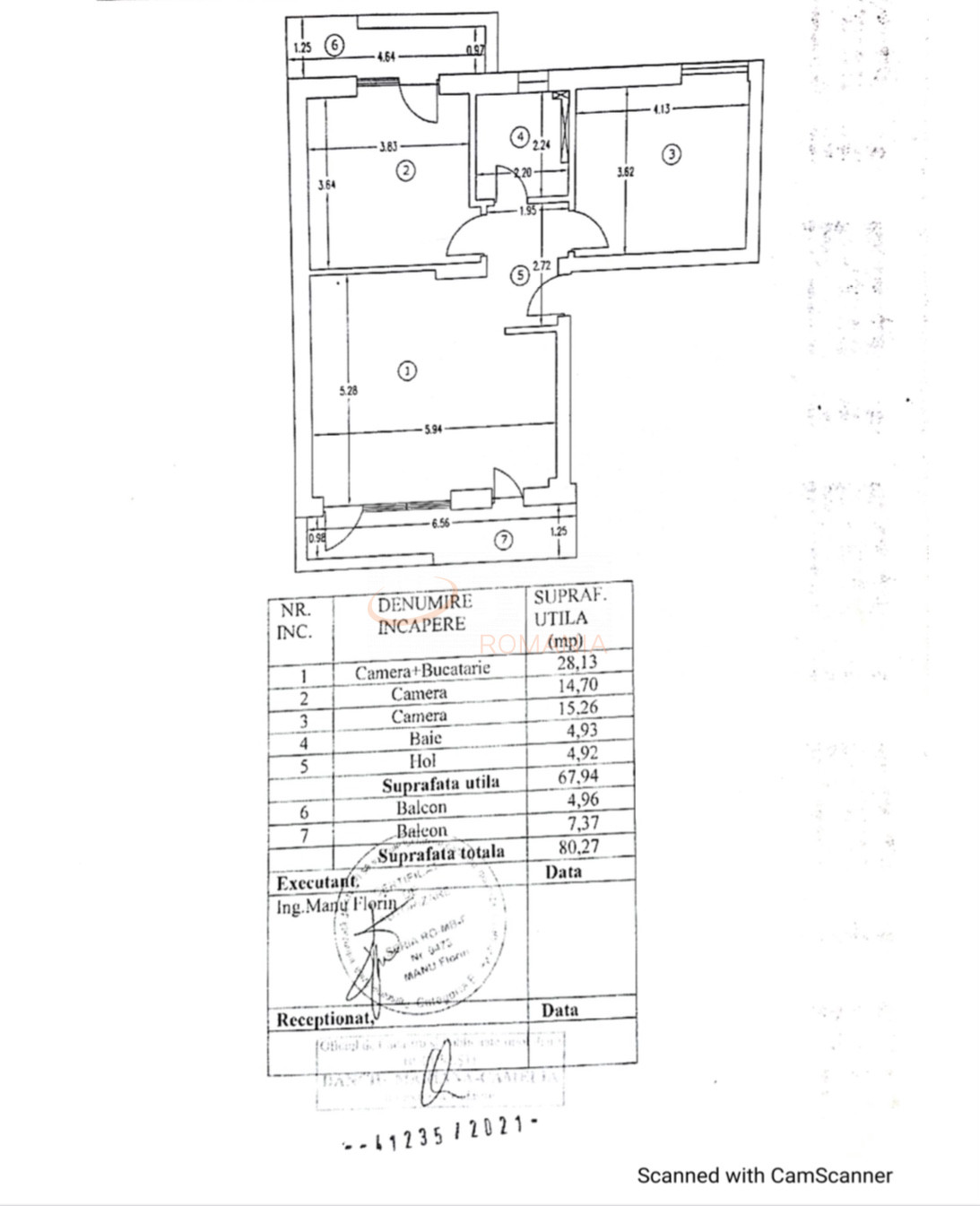
Apartamentul este decomandat si este format din: hol, living cu bucatarie open space (28 mp), 2 dormitoare, baie (cu geam) si 2 balcoane (5 mp si 7 mp), toate acestea insumand suprafata totala de 80 mp.

Beneficiaza de finisaje de calitate superioara, precum: parchet triplustratificat, incalzire in pardoseala pe intreaga suprafata a apartamentului, gresie, faianta, termopane, centrala proprie si aer conditionat.

Accesul in imobil este securizat, avand camere de supraveghere, video interfon si parcare in curtea interioara.

In pretul apartamentului este inclus un loc de parcare in curtea interioara a imobilului.

Pozitionarea lui ultracentrala faciliteaza accesul rapid catre scoli, statii de metrou si autobuz, banci, supermarket-uri.
Statia de metrou Tineretului este la 300 m iar la 10 minute de mers pe jos avem Piata Unirii.

Nu detinem informatii despre clasa energetica in care este incadrat imobilul. Certificatul energetic va fi disponibil la vanzare.

Pentru mai multe detalii si vizionari va stau la dispozitie.

An constructie 2021

Suprafata construita 80 mp

Suprafata utila 68 mp

Regim Inaltime 1 / 3

Etaj 1

Nr. camere 3 camere

Nr. bai 1

Nr. balcoane 2 balcoane

Confort 1

Compartimentare Decomandat

Tip constructie In bloc

Status constructie Finalizat

Disponibila incepand cu 2023-02-09

Judet Bucuresti

Oras/ Sector Sector 4

Zona Tineretului

Gps lat 44.418928

Gps lng 26.105710

Supraveghere video

Internet Wireless

Curent electric

Detector de gaze

Interfon

Internet prin cablu

Cablu TV

Geamuri termopan

Repartitoare

Parchet

Apometre

Gresie

Telefon

Faianta

Gaz

Loc parcare exterior

Incalzire proprie

Aer conditionat

Lift

3 camere bloc nou Tineretului - Unirii

Proprietate vanduta

Ai o proprietate similara? Vinde-o cu noi.
Vinde apartament

Cod: REA1012958

Proprietati similare

Bucuresti, Unirii, Piata Unirii (s3)

Apartament, 3 camere

90.85 mp 2 2008

200.000 EUR

Detalii

Bucuresti, Tineretului

3 camere cu loc parcare exterior inclus

40 mp 5 1986

185.000 EUR

Detalii

Bucuresti, Unirii, Splaiul Unirii (s3)

Apartament, 3 camere

64 mp 4 1980

197.000 EUR

Detalii

Bucuresti, Tineretului, Timpuri Noi

Apartament, 3 camere

66.85 mp 2 2027

219.000 EUR

Detalii
Exclusiv Discount

Bucuresti, Unirii, Unirii (s3)

Apartament, 3 camere

85 mp 1 1935

185.000 EUR

Detalii

Bucuresti, Ultracentral, Universitate (s1)

Apartament, 3 camere

86.3 mp 2 1935

199.000 EUR

Detalii

Bucuresti, Ultracentral, Universitate (s1)

Apartament, 3 camere

76 mp 1 1950

199.000 EUR

Detalii

Bucuresti, Berceni, Brancoveanu

3 camere cu loc parcare exterior inclus

64.65 mp 5 1984

199.000 EUR

Detalii
Apartamente 3 camere vandute in Tineretului, Bucuresti Apartamente 3 camere de vanzare in Tineretului, Bucuresti

Afla primul de cele mai bune oferte
inainte sa ajunga pe piata

Aboneaza-te la newsletter

Aboneaza-te la notificari