Apartament, 3 camere, Bucuresti / Tineretului
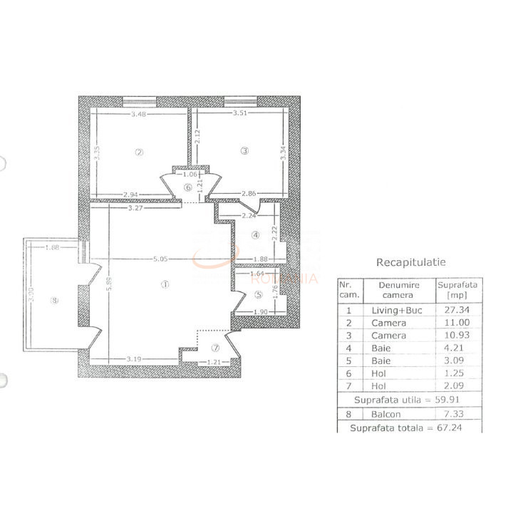
Apartamentul dispune de o impartire semidecomandata, fiind compus din: hol, living, bucatarie, 2 dormitoare, 2 bai si terasa, toate acestea avand suprafata totala de 67 mp.
Apartamentul beneficiaza de un concept unitar de mobilare realizat de catre un arhitect. Mobila a fost realizata pe comanda, creandu-se astfel pe langa aspectul unitar si o eficientizare a spatiului de depozitare.
Complexul The Park are o peisagistica superba, unde plantele au fost alese astfel incat curtea sa arate bine in fiecare sezon. Este o locatie verde, extrem de linistita, intima si potrivita atat pentru tineri cat si pentru familiile cu copii, avand acces monitorizat prin paza.
Ansamblul The Park Apartments se afla la 10 minute de mers pe jos de statia de metrou Constantin Brancoveanu si la doar 16 minute de Piata Sudului. In imediata vecinatate a complexului se afla Parcul Lumea Copiilor la doua minute de mers pe jos.
Nu detinem informatii despre clasa energetica in care este incadrat imobilul. Certificatul energetic va fi disponibil la vanzare.
Pentru mai multe detalii si vizionari va stau la dispozitie.
Atribute
An constructie 2018
Suprafata construita 75 mp
Suprafata utila 60 mp
Suprafata terasa 7 mp
Regim Inaltime 8 / 13
Etaj 8
Nr. camere 3 camere
Nr. bai 2
Nr. balcoane 1 balcon
Confort 1
Tip constructie In bloc
Status constructie Finalizat
Disponibila incepand cu 2023-01-16
Judet Bucuresti
Oras/ Sector Sector 4
Zona Tineretului
Gps lat 44.400446
Gps lng 26.116681
Facilitati
Cablu TV
Internet Wireless
Sistem de alarma
Supraveghere 24/7
Curent electric
Interfon
Detector de gaze
Internet prin cablu
Supraveghere video
Geamuri termopan
Repartitoare
Parchet
Apometre
Gresie
Faianta
Gaz
Incalzire proprie
WC serviciu
Mobilat
Aer conditionat
Bucatarie mobilata
Lift
Apartament 3 camere The Park - Tineretului
Proprietate vanduta
Ai o proprietate similara? Vinde-o cu noi.
  Vinde apartament  
 
  
  
  
  
  
  
  
  
  
  
  
  
  
  
  
   
   
   
   
   
  
  
   
   
   
   
   
  
  
   
   
   
   
   
  
  
   
   
   
   
   
  
  
   
   
   
   
   
  
  
   
   
   
   
   
  
   
   
   
   
   
  
  
   
   
   
   
  