Apartament, 3 camere, Bucuresti / Tineretului
Apartamentul este amenajat cu bun gust intr-un ambient placut si primitor, cu camere luminoase si spatioase, ideal pentru o familie sau o firma. In vederea acestui aspect, au fost primite aprobarile necesare pentru construirea unei iesiri stradale/un balcon.
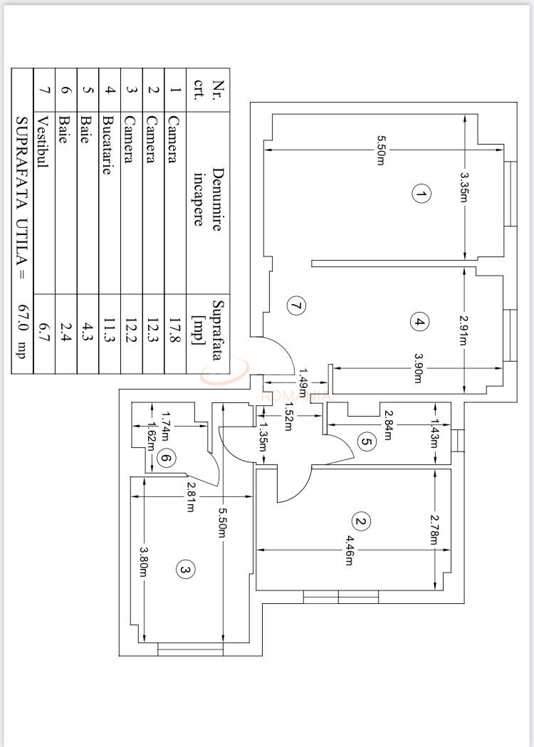
Apartamentul este amplasat la parterul unui bloc cu 7 etaje, finalizat in anul 1987 si dispune de o suprafata utila de 67 mp.
Designul modern, dimensiunile optime si pozitionarea avantajoasa, cu acces facil la numeroase zone de interes, recomanda acest apartament ca fiind proprietatea ideala pentru Dumneavoastra.
Pentru a descoperi si alte beneficii ale acestui apartament va stau cu drag la dispozitie si va astept la vizionare.
Echipa SVN Romania este aici pentru Dumneavoastra pentru a va facilita achizitia apartamentului de vis!
Atribute
An constructie 1987
Suprafata construita 77 mp
Suprafata utila 67 mp
Regim Inaltime P / 7
Etaj P
Nr. camere 3 camere
Nr. bai 2
Nr. balcoane 0 balcoane
Confort 1
Compartimentare Decomandat
Tip constructie In bloc
Status constructie Finalizat
Disponibila incepand cu 2023-09-27
Judet Bucuresti
Oras/ Sector Sector 4
Zona Tineretului
Gps lat 44.407043
Gps lng 26.120266
Facilitati
Internet Wireless
Cablu TV
Interfon
Curent electric
Geamuri termopan
Repartitoare
Parchet
Apometre
Gresie
Faianta
Calorifere
Aer conditionat
Bloc reabiliat termic
Lift
Apartament 3 Camere Tineretului Calea Vacaresti Metrou
Proprietate vanduta
Ai o proprietate similara? Vinde-o cu noi.
  Vinde apartament  
 
  
  
  
  
  
  
  
  
  
  
  
   
   
   
   
   
  
  
   
   
   
   
   
  
   
   
   
   
   
  
  
   
   
   
   
   
  
   
   
   
   
   
  
  
   
   
   
   
   
  
  
   
   
   
   
   
  
  
   
   
   
   
  