Viilor 3 camere 110.21 mp 12 2022

SVN Romania are placerea de a va prezenta un proiect rezidential care indeplineste toate cerintele unui lifestyle urban de calitate.

Locatia complexului este una excelenta in proximitatea centrelor comerciale (Mall Liberty Center), aproape de parcuri si institutii educationale.

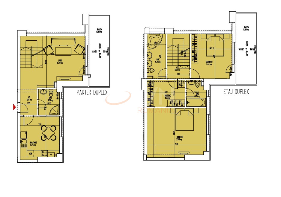
Duplex-ul de 3 camere dispune de o compartimentare decomandata, fiind compus din:
-etaj 11 : hol, living, bucatarie inchis, 1 baie, 1 balcon de 11,43mp ;
-etaj 12 : 1 hol, 2 dormitoare, 2 bai, 1 dressing, 1 balcon de 11,43mp ;
- o terasa de 57,6mp deasupra;
toate acestea avand suprafata totala de 110.21 mp + 2 balcoane de 22,9mp + 1 terasa de 57.6 mp.

Dotari:
- fatada ventilata-termosistem vata minerala bazaltica rockwool
- Tamplaria este PVC cu o suprafata vitrata mare
- Videointerfon, paza si sistem supraveghere video, ce asigura protectia localnicilor ansamblului;
- Centrala termica in condesatie
- Incalzire in pardoseala
- Racorduri individuale la gaze, curent electric, canalizare si apa curenta la retelele publice;
- Gresie si faianta portelanata;
- Parchet si obiecte sanitare la alegere;
- Usi BELLA CASA

Pozele pot avea caracter informativ.

Exista posibilitatea achizitionarii unui loc de parcare subteran contra cost.

Momentan nu detinem informatii in legatura cu certificatul energetic.

PRETURILE SUNT PLUS TVA.

Pentru mai multe informatii si vizionari, contactati-ne.

An constructie 2022

Suprafata construita 165.6 mp

Suprafata utila 110.21 mp

Suprafata terasa 57.6

Regim Inaltime 12 / 12

Etaj 12

Nr. camere 3 camere

Nr. bai 3

Nr. balcoane 2 balcoane

Confort 1

Tip constructie In bloc

Status constructie Nefinalizat

Disponibila incepand cu 2023-02-06

Judet Bucuresti

Oras/ Sector Sector 5

Zona Viilor

Gps lat 44.412897

Gps lng 26.087035

Complex rezidential Metropolitan Viilor

Nr. terase 1

Interfon

Curent electric

Internet prin fibra optica

Cablu TV

Geamuri termopan

Parchet

Apometre

Gresie

Telefon

Faianta

Gaz

Incalzire proprie

Lift

Duplex 3 camere terasa 58mp Parc Carol

Proprietate vanduta

Ai o proprietate similara? Vinde-o cu noi.
Vinde apartament

Cod: REA1009844

Proprietati similare

Bucuresti, Rahova, Viilor

3 camere cu loc parcare exterior inclus

87 mp 10 2019

230.000 EUR

Detalii

Bucuresti, Unirii, Piata Unirii (s3)

Apartament, 3 camere

75 mp 3 1995

250.000 EUR

Detalii

Bucuresti, Tineretului, Timpuri Noi

Apartament, 3 camere

66.03 mp 2 2027

234.000 EUR

Detalii

Bucuresti, Tineretului, Timpuri Noi

Apartament, 3 camere

69.59 mp 3 2027

235.000 EUR

Detalii

Bucuresti, Tineretului, Timpuri Noi

Apartament, 3 camere

66.85 mp 5 2027

225.000 EUR

Detalii

Bucuresti, Tineretului, Timpuri Noi

Apartament, 3 camere

67.24 mp P 2027

227.000 EUR

Detalii

Bucuresti, Ultracentral, Calea Victoriei

Apartament, 3 camere

79 mp 3 1928

249.000 EUR

Detalii

Bucuresti, Ultracentral, Universitate (s1)

Apartament, 3 camere

76 mp 1 1950

220.000 EUR

Detalii
Apartamente 3 camere vandute in Rahova, Bucuresti Apartamente 3 camere de vanzare in Rahova, Bucuresti

Afla primul de cele mai bune oferte
inainte sa ajunga pe piata

Aboneaza-te la newsletter

Aboneaza-te la notificari