Viilor 3 camere 98.56 mp 11 2022

SVN Romania are placerea de a va prezenta proiectul rezidential care indeplineste toate cerintele unui lifestyle urban de calitate.

Locatia complexului este una excelenta in proximitatea centrelor comerciale (Mall Liberty Center), aproape de parcuri, institutii educationale.

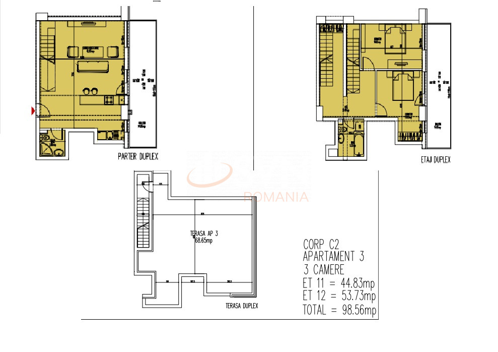
Apartamentul prezentat dispune de o compartimentare semidecomandata, fiind compus din: hol, living, bucatarie open space , 2 dormitoare, 2 bai, toate acestea avand suprafata totala de 98.56 mp + 1 terasa si 2 balcoane de 89.35 mp.

Dotari:

- fatada ventilata-termosistem vata minerala bazaltica rockwool
- Tamplaria este PVC cu o suprafata vitrata mare
- Videointerfon, paza si sistem supraveghere video, ce asigura protectia localnicilor ansamblului;
- Centrala termica in condesatie
- Incalzire in pardoseala
- Racorduri individuale la gaze, curent electric, canalizare si apa curenta la retelele publice;
- Gresie si faianta portelanata;
- Parchet si obiecte sanitare la alegere;
- Usi BELLA CASA

Pozele pot avea caracter informativ.

Exista posibilitatea achizitionarii unui loc de parcare subteran contra cost.

Momentan nu detinem informatii in legatura cu certificatul energetic.

PRETURILE SUNT PLUS TVA.

Pentru mai multe informatii si vizionari, contactati-ne.

An constructie 2022

Suprafata construita 105 mp

Suprafata utila 98.56 mp

Suprafata terasa 89.35

Regim Inaltime 11 / 12

Etaj 11

Nr. camere 3 camere

Nr. bai 2

Nr. balcoane 0 balcoane

Confort 1

Tip constructie In bloc

Status constructie Nefinalizat

Disponibila incepand cu 2022-09-01

Judet Bucuresti

Oras/ Sector Sector 5

Zona Viilor

Gps lat 44.413619

Gps lng 26.086418

Complex rezidential Complex Rezidential Viilor

Nr. terase 1

Interfon

Internet prin cablu

Cablu TV

Internet prin fibra optica

Curent electric

Geamuri termopan

Parchet

Gresie

Faianta

Gaz

Incalzire proprie

Lift

Apartament 3 camere Duplex Parc Carol Viilor

Proprietate vanduta

Ai o proprietate similara? Vinde-o cu noi.
Vinde apartament

Cod: REA1009852

Proprietati similare

Bucuresti, Rahova, Viilor

3 camere cu loc parcare exterior inclus

87 mp 10 2019

230.000 EUR

Detalii

Bucuresti, Cotroceni

Apartament, 3 camere

55.21 mp P 1940

205.000 EUR

Detalii

Bucuresti, Tineretului, Timpuri Noi

Apartament, 3 camere

66.03 mp 2 2027

234.000 EUR

Detalii

Bucuresti, Tineretului, Timpuri Noi

Apartament, 3 camere

69.59 mp 3 2027

235.000 EUR

Detalii

Bucuresti, Tineretului, Timpuri Noi

Apartament, 3 camere

67.24 mp P 2027

227.000 EUR

Detalii

Bucuresti, Tineretului, Timpuri Noi

Apartament, 3 camere

66.85 mp 5 2027

225.000 EUR

Detalii

Bucuresti, Ultracentral, Cismigiu

Apartament, 3 camere

102 mp 1 1947

205.000 EUR

Detalii

Bucuresti, Ultracentral, Universitate (s1)

Apartament, 3 camere

76 mp 1 1950

220.000 EUR

Detalii
Apartamente 3 camere vandute in Rahova, Bucuresti Apartamente 3 camere de vanzare in Rahova, Bucuresti

Afla primul de cele mai bune oferte
inainte sa ajunga pe piata

Aboneaza-te la newsletter

Aboneaza-te la notificari