Apusului 3 camere 66.2 mp 4 1983

SVN Romania va prezinta spre vanzare un apartament de 3 camere in zona Apusului/Pacii, amplasat la etajul 4 din 8 intr-un bloc modern, recent anvelopat termic si extrem de rezistent, construit cu grinzi solide, oferind siguranta si confort pe termen lung.

Locuinta este dotata cu aer conditionat de 18.000 BTU, rulouri la geamuri, apometre cu citire radio si centrala proprie.

Balconul generos, in forma de L si cu o suprafata de 9,3 mp, reprezinta un spatiu ideal pentru relaxare sau organizare, fiind echipat cu doua dulapuri noi de la XXX Lutz pentru depozitare suplimentara.

Se vinde complet mobilat, exact cum se vede in fotografii, fiind pregatit pentru mutare imediata. Certificatul energetic clasa A si locul de parcare ADP cu vedere directa din balcon adauga un plus de confort si functionalitate.

Zona este excelenta, cu acces rapid la facilitati precum Mega Image, Lidl, Kaufland, farmacii, magazine si alte servicii.

Statia de metrou Pacii este la doar 5 minute de mers pe jos, asigurand conexiuni rapide in oras.

Contactati-ne pentru mai multe detalii si pentru a programa o vizionare!

Certificatul energetic va fi pus la dispozitie in momentul vanzarii.

Vizionarea acestui imobil se face doar in baza semnarii unui acord de vizionare conform codului civil art 2.096-2.102.

An constructie 1983

Suprafata construita 80 mp

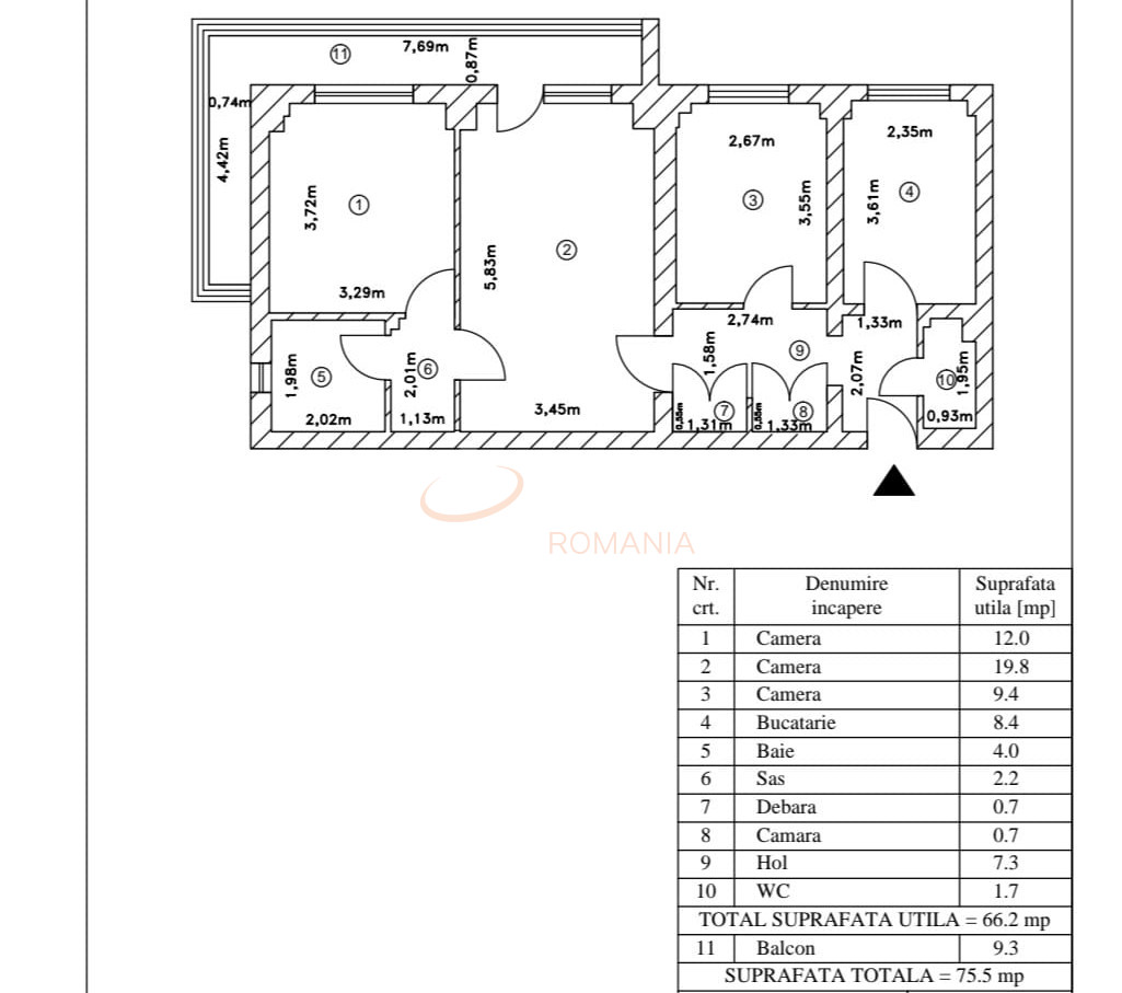
Suprafata utila 66.2 mp

Suprafata terasa 9.3 mp

Regim Inaltime 4 / 8

Etaj 4

Nr. camere 3 camere

Nr. bai 1

Nr. balcoane 0 balcoane

Confort 1

Compartimentare Semidecomandat

Tip constructie In bloc

Status constructie Finalizat

Disponibila incepand cu 2025-05-20

Judet Bucuresti

Oras/ Sector Sector 6

Zona Apusului

Gps lat 44.433666

Gps lng 26.009357

Curent electric

Interfon

Detector de gaze

Cablu TV

Geamuri termopan

Balcon inchis

Parchet

Apometre

Gresie

Faianta

Gaz

Incalzire proprie

Calorifere

WC serviciu

Mobilat

Aer conditionat

Bucatarie mobilata

Bloc reabiliat termic

Lift

Apartament 3 camere de vanzare Iuliu Maniu

Proprietate vanduta

Ai o proprietate similara? Vinde-o cu noi.
Vinde apartament

Cod: REA1023589

Proprietati similare

Bucuresti, Militari, Piata Gorjului

Apartament, 3 camere

65 mp P 1979

135.000 EUR

Detalii

Bucuresti, Militari, Gorjului

Apartament, 3 camere

64.5 mp 4 1984

135.000 EUR

Detalii

Bucuresti, Militari, Uverturii

Apartament, 3 camere

67.55 mp 1 2025

129.870 EUR

Detalii

Bucuresti, Militari, Politehnica

Apartament, 3 camere

64 mp 2 1970

135.000 EUR

Detalii

Bucuresti, Sector 5, Prelungirea Ghencea (s5)

3 camere cu loc parcare exterior inclus

54.89 mp 1 2014

125.000 EUR

Detalii

Bucuresti, 13 Septembrie

Apartament, 3 camere

74.14 mp 8 1989

144.000 EUR

Detalii

Bucuresti, Gara De Nord, Grivita

Apartament, 3 camere

57.8 mp 3 1961

129.000 EUR

Detalii
Exclusiv Discount

Bucuresti, 1 Mai, Titulescu

Apartament, 3 camere

70 mp 8 1976

145.900 EUR

Detalii
Apartamente 3 camere vandute in Militari, Bucuresti Apartamente 3 camere de vanzare in Militari, Bucuresti

Afla primul de cele mai bune oferte
inainte sa ajunga pe piata

Aboneaza-te la newsletter

Aboneaza-te la notificari