Militari 3 camere 70 mp 4 1988

SVN Residentialist va propune spre vanzare un apartament de 3 camere situat in sector 6, in proximitatea Teatrului Masca, Militari – o zona bine conectata si apreciata pentru accesibilitate si facilitati.

Apartamentul a fost renovat complet, cu instalatii electrice si sanitare noi, calorifere noi si finisaje de calitate, atent alese pentru un plus de confort si durabilitate. Se vinde partial mobilat si dispune de 2 aparate de aer conditionat, oferind confort sporit in orice sezon.

Locuinta beneficiaza de loc de parcare si este pregatita pentru mutare imediata – tot ce trebuie sa faci este sa aduci lucrurile personale. In imediata apropiere regasim statii de autobuz, tramvaiul 41 si metrou, asigurand acces rapid catre orice zona a orasului.

O alegere ideala atat pentru locuit, cat si pentru investitie.

Nu ezitati sa ne contactati pentru mai multe detalii si vizionari!

An constructie 1988

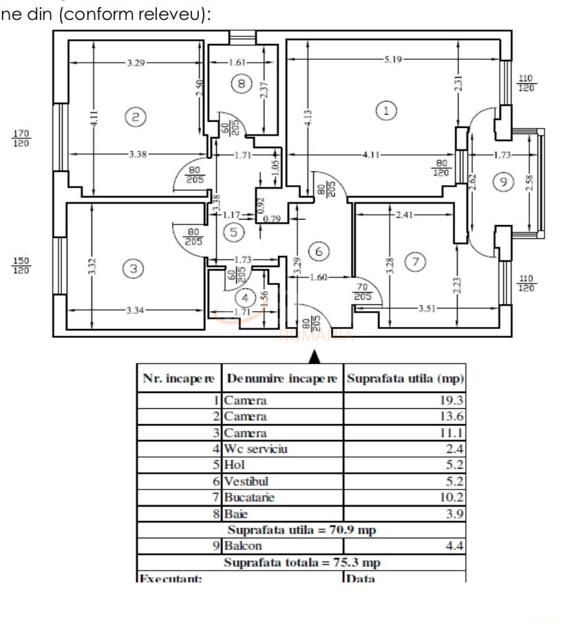
Suprafata construita 75 mp

Suprafata utila 70 mp

Regim Inaltime 4 / 4

Etaj 4

Nr. camere 3 camere

Nr. bai 2

Nr. balcoane 0 balcoane

Confort 1

Compartimentare Decomandat

Tip constructie In bloc

Status constructie Finalizat

Disponibila incepand cu 2026-02-27

Judet Bucuresti

Oras/ Sector Sector 6

Zona Militari

Gps lat 44.439312

Gps lng 26.030275

Internet Wireless

Internet prin cablu

Curent electric

Cablu TV

Interfon

Supraveghere video

Supraveghere 24/7

Geamuri termopan

Balcon inchis

Parchet

Apometre

Gresie

Telefon

Faianta

Gaz

Loc parcare exterior

Calorifere

Incalzire prin pardoseala

WC serviciu

Mobilat

Aer conditionat

Bucatarie mobilata

Bloc reabiliat termic

Valoare proprietate (€)

Perioada (ani)

Procent avans (24.600 €)


Suma creditata 139.400

Dobanda 4.9%

Rata lunara 3.447 lei

Broker Imobiliar

Andrei Dicu , Consultant imobiliar Vezi toate proprietatile

0317100200

Apartament 3 Camere I De Vanzare I Militari I Uverturii

Pret vanzare
164.000 €

Telefon Consultant imobiliar
0317100200

Cod: REA1027993

Proprietati similare

Bucuresti, Militari, Lujerului

Apartament, 3 camere

74 mp D 2020

165.000 EUR

Detalii

Bucuresti, Crangasi

Apartament, 3 camere

74 mp P 1986

180.000 EUR

Detalii

Bucuresti, Crangasi

Apartament, 3 camere

70 mp P 1991

170.000 EUR

Detalii

Bucuresti, Crangasi

Apartament, 3 camere

70 mp 2 1984

155.800 EUR

Detalii

Bucuresti, Militari, Lacul Morii

Apartament, 3 camere

103 mp 11 2024

175.000 EUR

Detalii

Bucuresti, 1 Mai, Titulescu

Apartament, 3 camere

59.25 mp 7 1975

155.000 EUR

Detalii

Bucuresti, Sector 5, Prelungirea Ghencea

Apartament, 3 camere

76 mp 2 1999

170.000 EUR

Detalii

Bucuresti, Sector 1, P-ta Victoriei

Apartament, 3 camere

82.47 mp P 1946

179.000 EUR

Detalii
Apartamente 3 camere vandute in Militari, Bucuresti Apartamente 3 camere de vanzare in Militari, Bucuresti

Afla primul de cele mai bune oferte
inainte sa ajunga pe piata

Aboneaza-te la newsletter

Aboneaza-te la notificari