Bragadiru 2 camere 51.55 mp 3 2008

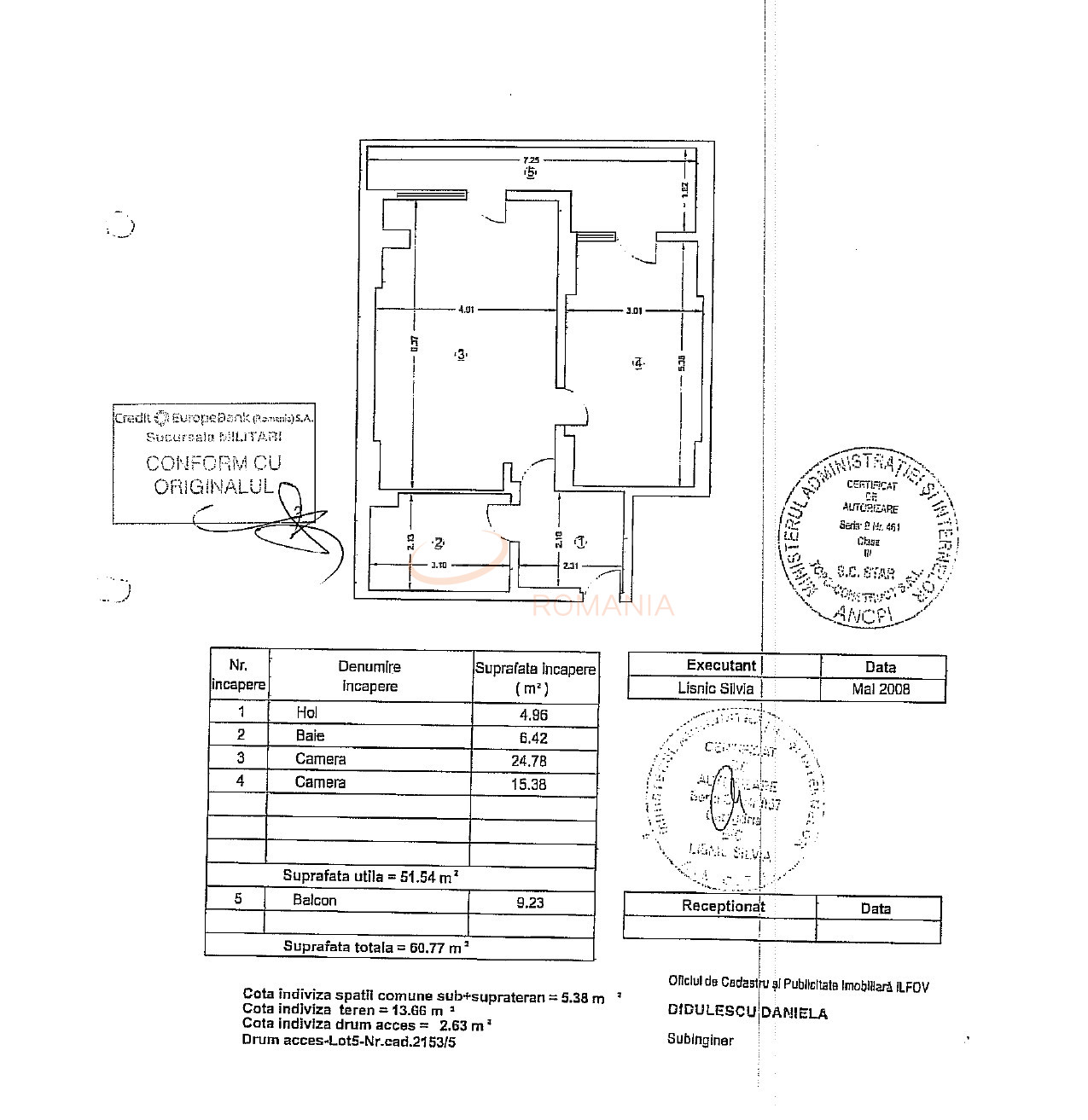
SVN Romania propune spre vanzare un apartament de 2 camere situat la etajul 3, intr-un bloc cu 6 niveluri, compus din 2 camere de locuit si dependinte: baie, balcoane in suprafata totala de 9,23 mp si hol. Suprafata totala a apartamentului este de 60,77 mp, iar cea utila de 51,54 mp.

Apartamentul are finisaje superioare: parchet in camere, faianta si gresie baie/ bucatarie, centrala termica si tamplaria PVC cu geam termopan.

Blocul este localizat in partea de Vest a orasului Bucuresti, in complexul residential Cartierul Latin, intr-o zona cu acces la transportul in comun si la centre comerciale bine aprovizionate.


Apartamentul nu este locuit si este disponibil imediat.

Chiar daca considerati ca pretul nu este conform asteptarilor, dar acest imobil corespunde dorintelor dumneavoastra, nu ezitati sa ne contactati. Vom incerca sa gasim o solutie pentru acest imobil sau sa va prezentam alte variante.

Conform certificatului de performanta energetica nr.GP26 97/28.03.2022, imobilul se incadreaza in Clasa energetica A, Consumul total specific de energie primara este de 90.76, Indicele de emisii echivalent CO2 este 12.28 iar Consum total specific de energie din surse regenerabile este 0.

Cu stima, echipa SVN Romania.

An constructie 2008

Suprafata construita 60.77 mp

Suprafata utila 51.55 mp

Suprafata terasa 9 mp

Regim Inaltime 3 / 6

Etaj 3

Nr. camere 2 camere

Nr. bai 1

Nr. balcoane 1 balcon

Confort 1

Compartimentare Decomandat

Tip constructie In bloc

Status constructie Finalizat

Disponibila incepand cu 2024-11-11

Judet Ilfov

Oras/ Sector Sud

Zona Bragadiru

Gps lat 44.405142

Gps lng 25.992449

Internet prin cablu

Interfon

Acoperis mansardat

Cablu TV

Internet prin fibra optica

Curent electric

Internet prin Dial-Up

Detector de gaze

Geamuri termopan

Balcon inchis

Parchet

Apometre

Gresie

Telefon

Faianta

Gaz

Incalzire proprie

Calorifere

Lift

Apartament 2 Camere de Vanzare Cartierul Latin Prelungirea Ghencea

Proprietate vanduta

Ai o proprietate similara? Vinde-o cu noi.
Vinde apartament

Cod: REA1018631

Proprietati similare

Ilfov, Nord, Buftea

Apartament, 2 camere

37 mp 3 1974

52.500 EUR

Detalii

Ilfov, Nord, Buftea

Apartament, 2 camere

37 mp 3 1974

52.500 EUR

Detalii
Apartamente 2 camere vandute in Sud, Ilfov Apartamente 2 camere de vanzare in Sud, Ilfov

Afla primul de cele mai bune oferte
inainte sa ajunga pe piata

Aboneaza-te la newsletter

Aboneaza-te la notificari