Bragadiru 2 camere 51 mp 3 2008

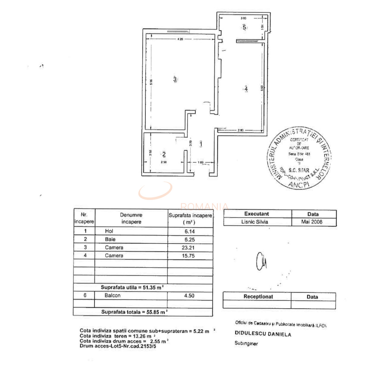
SVN Romania propune spre vanzare un apartament decomandat, cu 2 camere, in suprafata utila de 51 mp si totala de 56 mp, la etajul 3, intr-un bloc cu 6 niveluri.
Apartamentul este compus din 2 camere de locuit, bucatarie deschisa, baie, hol si balcon.
Imobilul este situat in Cartierul Latin, din Bragadiru, Prelungirea Ghencea, iar in apropriere se regaseste o retea de transport in comun, unitati comerciale, de invatamant, bancare, de cult si de agreement
Conform certificatului de performanta energetica nr. 012223/077025 valabil pana la 12.06.2034, imobilul se incadreaza in Clasa energetica B, Consumul total specific de energie primara este de 101.3, Indicele de emisii echivalent CO2 este 19.5, iar consum total specific de energie din surse regenerabile este 0.
Pentru mai multe detalii, va rugam sa ne contactati

An constructie 2008

Suprafata construita 56 mp

Suprafata utila 51 mp

Suprafata terasa 4 mp

Regim Inaltime 3 / 6

Etaj 3

Nr. camere 2 camere

Nr. bai 1

Nr. balcoane 1 balcon

Confort 1

Compartimentare Decomandat

Tip constructie In bloc

Status constructie Finalizat

Disponibila incepand cu 2025-02-03

Judet Ilfov

Oras/ Sector Sud

Zona Bragadiru

Gps lat 44.405141

Gps lng 25.992439

Internet prin cablu

Curent electric

Acoperis mansardat

Cablu TV

Detector de gaze

Interfon

Internet prin Dial-Up

Internet Wireless

Internet prin fibra optica

Geamuri termopan

Repartitoare

Parchet

Apometre

Gresie

Telefon

Faianta

Gaz

Loc parcare exterior

Calorifere

Incalzire proprie

Bloc reabiliat termic

Lift

Apartament 2 Camere Cartierul Latin Prelungirea Ghencea Bragadiru

Proprietate vanduta

Ai o proprietate similara? Vinde-o cu noi.
Vinde apartament

Cod: REA1022563

Proprietati similare

Ilfov, Vest, Chiajna

Apartament, 2 camere

38 mp 3 2017

58.000 EUR

Detalii
Apartamente 2 camere vandute in Sud, Ilfov Apartamente 2 camere de vanzare in Sud, Ilfov

Afla primul de cele mai bune oferte
inainte sa ajunga pe piata

Aboneaza-te la newsletter

Aboneaza-te la notificari