Beller 8 camere 340 mp D + P + 2 260 mp

Va supunem atentiei o proprietate situata in Dorobanti, in curs de renovare completa, in imediata apropiere de Piata Floreasca oferita spre inchiriere, aceasta fiind compusa din teren+ imobil, proprietate desfasurata astfel:

- Vila compusa din P+1+M, constructie receptionata in anul in 2005, avand o suprafata totala a terenului de 400 mp, suprafata totala a casei fiind de 340 mp

Proprietatea a fost construita in regie proprie, finisaje frumoase si de buna calitate, suprafete luminoase, deschise si ospitaliere gandite pentru o familie generoasa.

Aceasta este compartimentata astfel :


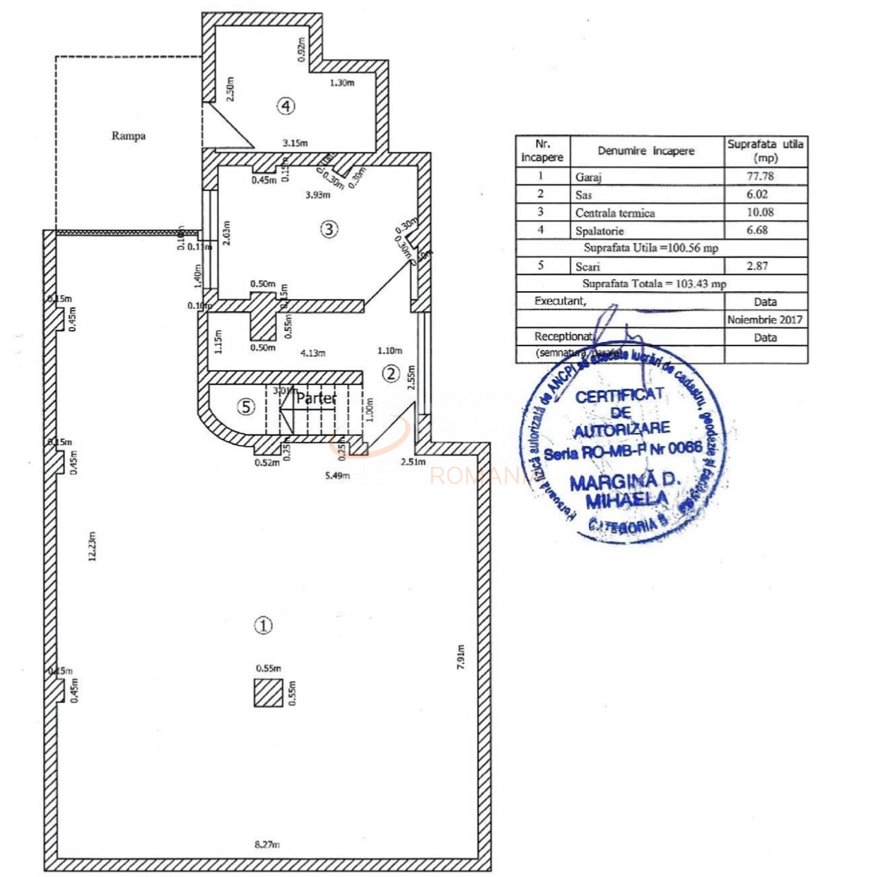
- la parter regasim sufragerie, bucataria inchisa, zona de luat masa, camera tehnica, garaj, terasa catre curtea exterioara si piscina, foisor cu acces din bucatarie.

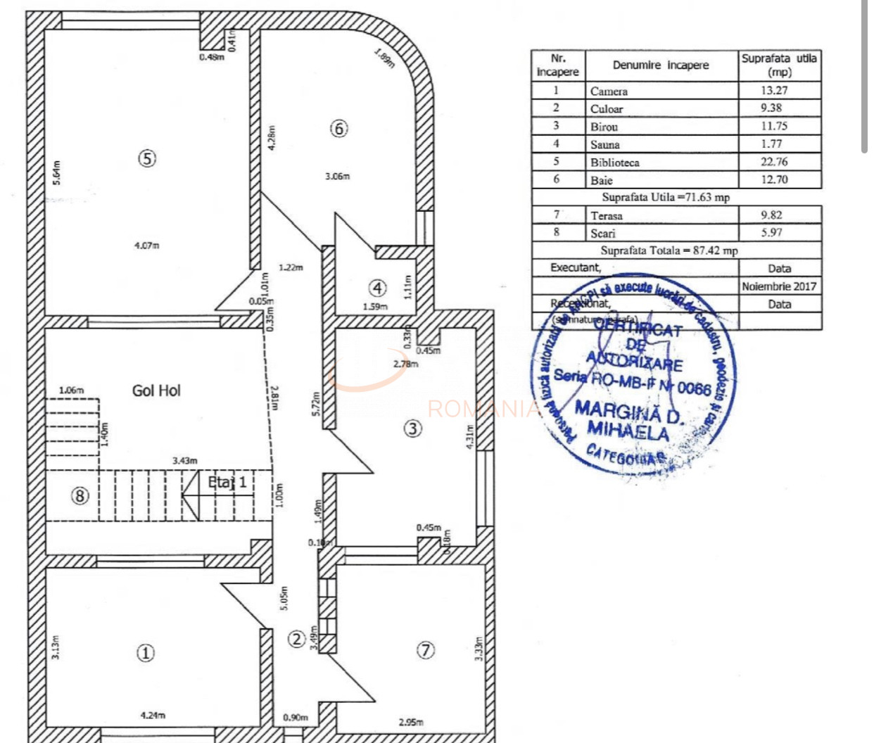
- la etaj regasim 3 dormitoare (un dormitor matrimonial), 2 dormitoare pentru copii cat si baia ce le deservesc), balcon

- mansarda este compusa din zona de zi cu acces catre terasa, baie cu cabina cu dus in completare cu o sauna, dormitor in acest moment functioneaza ca un dressing

Pretabil pentru locuinta sau birouri.

Disponibil imediat!

Pentru mai multi informatii, contactul meu va sta la dispozitie!

An constructie 2005

Suprafata construita 400 mp

Suprafata utila 340 mp

Regim Inaltime D + P + 2

Etaj D + P + 2

Nr. camere 8 camere

Nr. bai 4

Nr. balcoane 2 balcoane

Tip constructie Vila

Status constructie Finalizat

Amprenta la sol 120

Teren suprafata 260 mp

Curte Individuala Da

Disponibila incepand cu 2022-10-13

Judet Bucuresti

Oras/ Sector Sector 1

Zona Beller

Gps lat 44.458978

Gps lng 26.099561

Geamuri termopan

Parchet

Apa

Gresie

Gaz

Faianta

Canalizare

Plansee beton

Parcare in curte

Incalzire centrala termica

Aer conditionat

WC serviciu

Termoizolatie

Interfon

Gradina

VILA INCHIRIERE PIATA FLOREASCA

Proprietate inchiriata

Ai o proprietate similara? Vinde-o cu noi.
Vinde apartament

Cod: REV2000746

Proprietati similare

Bucuresti, Floreasca

Casa, 8 camere

286 mp D + P + 1 + M 2000

4.800 EUR/luna

Detalii

Bucuresti, Aviatiei

Casa, 8 camere

374 mp S + P + 1 + M 2008

4.300 EUR/luna

Detalii
Case 8 camere inchiriate in Dorobanti, Bucuresti Case 8 camere de inchiriere in Dorobanti, Bucuresti

Afla primul de cele mai bune oferte
inainte sa ajunga pe piata

Aboneaza-te la newsletter

Aboneaza-te la notificari