Iancu Nicolae 6 camere 280 mp P + 1 + M 1200 mp

SVN Romania are deosebita placere de a va propune spre inchiriere o vila pozitionata excelent, in zona rezidentiala din Nordul Bucurestiului, Erou Iancu Nicolae.

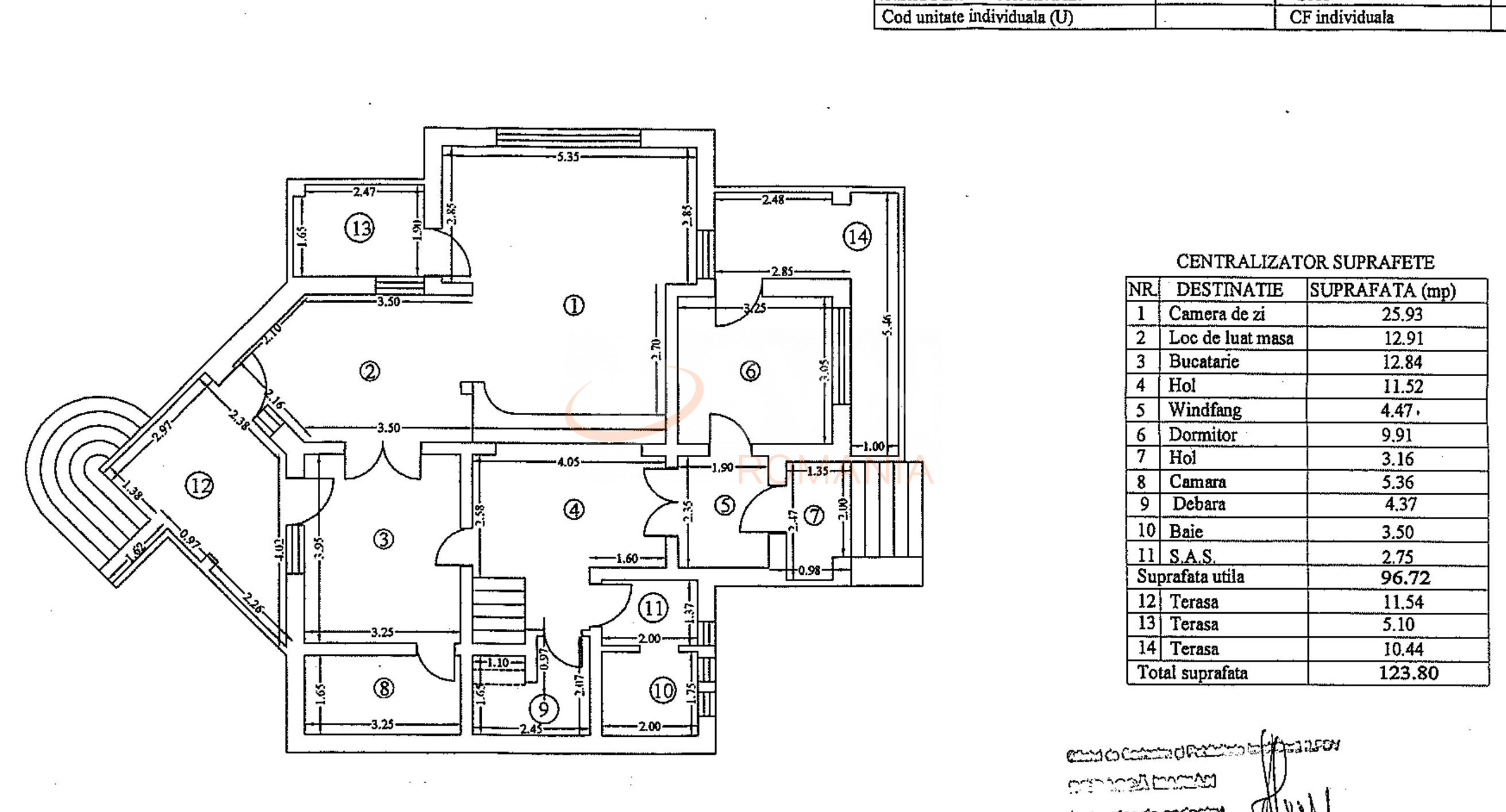
Vila are o structura de P+1E+M cu suprafata utila de 250 mp si o curte generoasa de 1200 mp.

Parterul este compus din zona de living cu dining, bucatarie, spatiu tehnic, birou si grup sanitar.
La etajul 1 se regasesc 3 dormitoare - dormitor matrimonial cu baie si dressing propriu precum si celelalte 2 dormitoare care impart o baie comuna.
Mansarda este compusa din spatiu deschis, doua camere pentru depozitare si o baie.

La exterior se regasesc terasa, piscina privata, gradina extrem de generoasa, precum si cele 3 locuri de parcarem dintre care 2 locuri semiacoperite.

Gradina are instalatie de irigare alimentata cu apa din put propriu. Suplimentar, exista un generator functional si panouri solare.

Va invitam la vizionare!

An constructie 2012

Suprafata construita 357 mp

Suprafata utila 280 mp

Regim Inaltime P + 1 + M

Etaj P + 1 + M

Nr. camere 6 camere

Nr. bai 4

Nr. balcoane 5 balcoane

Tip constructie Vila

Status constructie Finalizat

Teren suprafata 1200 mp

Deschidere stradala 20

Curte Individuala Da

Disponibila incepand cu 2022-12-20

Judet Bucuresti

Oras/ Sector Sector 1

Zona Iancu Nicolae

Gps lat 44.515328

Gps lng 26.119644

Nr. terase 5

Acoperis mansardat

Spatiu de joaca

Geamuri termopan

Acoperis tigla

Parchet

Apa

Gresie

Gaz

Faianta

Canalizare

Plansee beton

Parcare in curte

Incalzire centrala termica

Aer conditionat

WC serviciu

Sistem de alarma

Detector de gaze

Spatiu de depozitare

Sistem irigatie

Termoizolatie

Internet Wireless

Internet prin cablu

Curent electric

Cablu TV

Gradina

Piscina exterioara

Vila Iancu Nicolae pretabil after school ambasada resedinta

Proprietate inchiriata

Ai o proprietate similara? Vinde-o cu noi.
Vinde apartament

Cod: REV2002168

Proprietati similare

Bucuresti, Pipera

Casa, 6 camere

350 mp P + 1 2005

2.500 EUR/luna

Detalii

Bucuresti, Cotroceni

Casa, 6 camere

200 mp P + 1 + M 1965

2.500 EUR/luna

Detalii

Bucuresti, Parcul Carol

Casa, 6 camere

200 mp P + 1 + M 2008

2.500 EUR/luna

Detalii
Case 6 camere inchiriate in Pipera, Bucuresti Case 6 camere de inchiriere in Pipera, Bucuresti

Afla primul de cele mai bune oferte
inainte sa ajunga pe piata

Aboneaza-te la newsletter

Aboneaza-te la notificari