Jiului 14 camere 580.56 mp S + P + 2 840.86 mp

SVN va propune spre inchiriere o vila situata in zona Bucurestii Noi.

Locatie excelenta, ideala pentru business.

Va oferim spre inchiriere o proprietate spatioasa, situata in zona Bicurestii Noi, perfecta pentru activitati comerciale, birouri sau depozitare. Imobilul este bine compartimentat si dispune de facilitati moderne pentru desfasurarea optima a activitatilor.

Caracteristici principale:
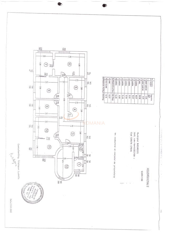
Suprafata utila totala: 580 mp
Suprafata teren: 840 mp

Compartimentare:
Subsol: 64 mp
Parter: Receptie + hala/depozit – 188 mp
Etaj 1: Birouri – 169 mp
Etaj 2: Birouri – 160 mp

Facilitati:
3 grupuri sanitare
Centrala termica Vaillant
Curent trifazic
Platou parcare pentru 15-20 de autoturisme

Imobilul ofera un spatiu generos si versatil, fiind ideal pentru birouri, showroom, firma de distributie sau alte activitati comerciale.

Pentru detalii suplimentare si programarea unei vizionari, va rugam sa ne contactati!

An constructie 2001

Suprafata construita 620 mp

Suprafata utila 580.56 mp

Regim Inaltime S + P + 2

Etaj S + P + 2

Nr. camere 14 camere

Nr. bai 5

Nr. balcoane 1 balcon

Tip constructie Vila

Status constructie Finalizat

Amprenta la sol 254.07

Teren suprafata 840.86 mp

Deschidere stradala 19.95 m

Curte Individuala Da

Disponibila incepand cu 2025-02-19

Judet Bucuresti

Oras/ Sector Sector 1

Zona Jiului

Gps lat 44.484853

Gps lng 26.048461

Geamuri termopan

Telefon

Acoperis tigla

Parchet

Apa

Gresie

Gaz

Faianta

Canalizare

Parcare in curte

Incalzire centrala termica

Consolidata

Aer conditionat

WC serviciu

Vila de inchiriat Bucurestii Noi

Proprietate inchiriata

Ai o proprietate similara? Vinde-o cu noi.
Vinde apartament

Cod: REV0004493
Case 14 camere inchiriate in Bucurestii Noi, Bucuresti Case 14 camere de inchiriere in Bucurestii Noi, Bucuresti

Afla primul de cele mai bune oferte
inainte sa ajunga pe piata

Aboneaza-te la newsletter

Aboneaza-te la notificari