Pipera 5 camere 162 mp P + 1 + M 143 mp

SVN Residentialist va propune spre inchiriere o vila in cadrul complexului Mobexpert Homes Pipera in imediata apropiere de Scoala Americana.

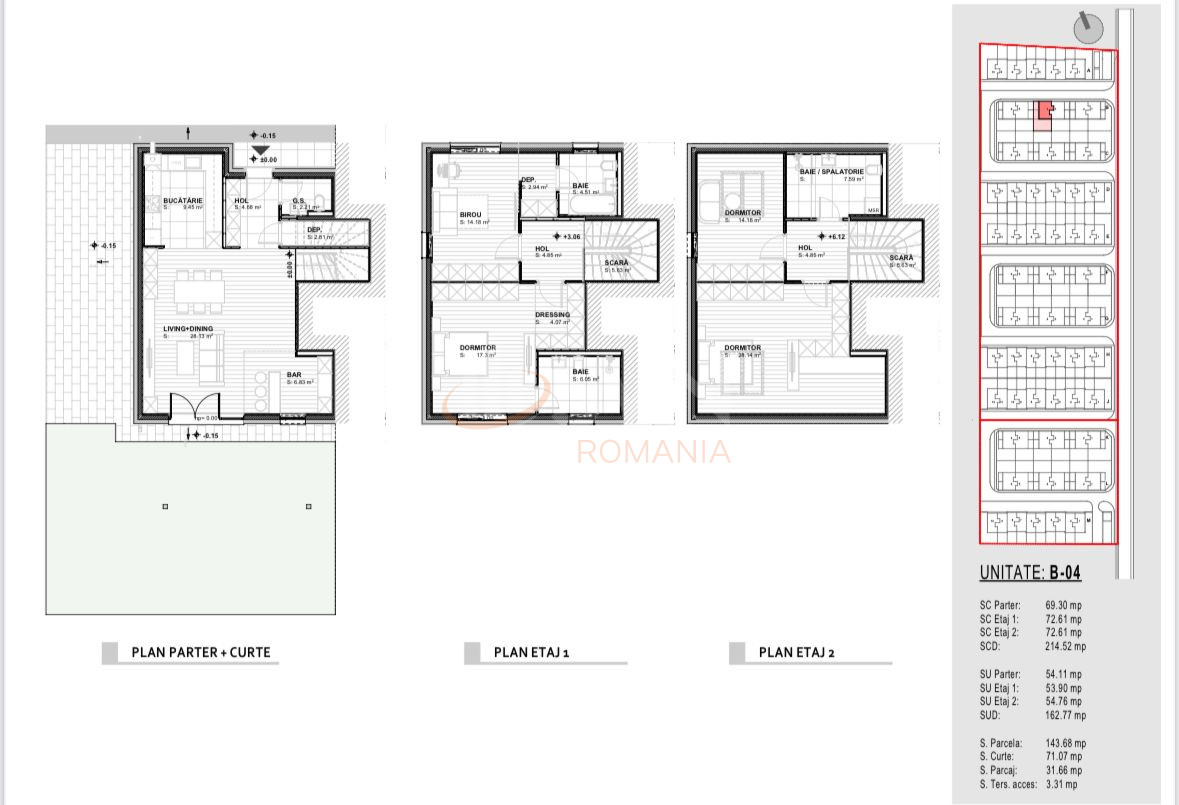
Casa este construita in regim de inaltime P+1E+2M si beneficiaza de 2 locuri de parcare incluse, terasa dotata cu pergola si gradina proprie destinata relaxarii in aer liber.

Compartimentata eficient, unitatea are 5 camere ce au fost concepute pentru a oferi confort. Cu o suprafata de 162 mp utili, sunt dispuse astfel: parterul este compus din zona de vestibul, grup sanitar, spatiu special destinat pentru depozitare, bucataria open space si living spatios si luminos cu acces direct catre zona de terasa si gradina.
La etajul 1 compartimentarea este menita sa ofere intimitate si utilitate, fiecare dintre cele doua dormitoare beneficiind de baie proprie. Dormitorul matrimonial si dormitorul secundar.
Mansarda dispune de o zona de hol, precum si de 2 camere prevazute cu velux dublu: un dormitor cu baie proprie de, loc loc de joaca pentru copii, zona de dressing sau zona pentru birou.

Casa se vinde asa cum este prezentata in poze partial mobilata.

Proiectul Mobexpert Homes Pipera intruneste calitatile unui loc numit acasa, unde confortul devine un stil de viata. Ansamblul este pazit si supravegheat 24/24h prin intermediul camerelor video fixe.

Amplasat în Pipera, zona de nord a capitalei (strada Vasile Alecsandri, nr 3), beneficiaza de proximitatea celor mai bune scoli si gradinite, atat private cat si publice: Scoala Americana , British School, Olga Gudynn ; Shopping centers si supermarkets: Jolie Ville, Baneasa Shopping City, Pipera Plaza; LIDL; Spatii de recreere si fitness: Atlantis Club, World Class, Gradina Zoologica; Restaurante si cafenele: Strip Mall – Iancu Nicolae dar si centre medicale.

Retras fata de agitatia si traficul arterelor principale, ansamblul ofera acces usor si rapid la iesirea din Bucuresti prin DN1 catre Aeroportul Henri Coanda si principalul pol de birouri aflat în zona Bulevardului Dimitrie Pompeiu si Calea Floreasca, dar si acces catre A3 Bucuresti-Brasov, centura Bucuresti.

Zona de terasa este dotata cu pergola metalica pentru a putea petrece mai mult timp in aer liber alaturi de cei dragi.

Finisajele folosite sunt de calitate premium: centrala proprie + termostat, incalzire in pardoseala pentru un confort termic optim, tamplarie Schuco dotata cu geam tripan, obiecte sanitare Waser, ceramica portelanata, unitati de aer conditionat prevazute in fiecare camera; ferestre duble tip velux in fiecare dintre cele doua zone de locuit din mansarda; pregatire pentru statie incarcare masini electrice.

Pentru mai multe detalii si vizionari va rog sa ma contactati.

An constructie 2023

Suprafata construita 214 mp

Suprafata utila 162 mp

Regim Inaltime P + 1 + M

Etaj P + 1 + M

Nr. camere 5 camere

Nr. bai 4

Nr. balcoane 0 balcoane

Tip constructie Vila

Status constructie Finalizat

Amprenta la sol 73

Teren suprafata 143 mp

Curte Individuala Da

Disponibila incepand cu 2025-04-11

Judet Bucuresti

Oras/ Sector Sector 1

Zona Pipera

Gps lat 44.514619

Gps lng 26.153126

Complex rezidential MOBEXPERT HOMES PIPERA

Nr. terase 1

Spatiu de joaca

Geamuri termopan

Parchet

Apa

Gresie

Gaz

Canalizare

Incalzire prin pardoseala

Plansee beton

Incalzire centrala termica

Aer conditionat

WC serviciu

Spatiu de depozitare

Termoizolatie

Curent electric

Detector de incendiu

Gradina

Casa 5 camere Pipera Mobilata

Proprietate inchiriata

Ai o proprietate similara? Vinde-o cu noi.
Vinde apartament

Cod: REV2004722

Proprietati similare

Bucuresti, Pipera

Casa, 5 camere

138 mp P + 1 + M 2022

2.200 EUR/luna

Detalii

Bucuresti, Pipera

Casa, 5 camere

109.75 mp P + 1 + M 2017

1.850 EUR/luna

Detalii

Bucuresti, Pipera

Casa, 5 camere

216 mp P + 1 2010

2.200 EUR/luna

Detalii

Bucuresti, Pipera

Casa, 5 camere

191 mp P + 1 2009

1.800 EUR/luna

Detalii

Bucuresti, Pipera

Casa, 5 camere

140 mp P + 2 2005

1.800 EUR/luna

Detalii

Bucuresti, 1 Mai, Banu Manta

Casa, 5 camere

125.76 mp D + P + 1 + M 2015

2.200 EUR/luna

Detalii
Case 5 camere inchiriate in Pipera, Bucuresti Case 5 camere de inchiriere in Pipera, Bucuresti

Afla primul de cele mai bune oferte
inainte sa ajunga pe piata

Aboneaza-te la newsletter

Aboneaza-te la notificari