Floreasca 3 camere 77 mp P + 1 150 mp

SVN Romania va propune spre inchiriere un imobil amplasat in Cartierul Floreasca.

Acest imobil reprezinta o oportunitate unica de investitie intr-unul din cele mai exclusiviste cartiere din Bucuresti.

Potential pentru inchiriere sau conversie intr-un spatiu comercial, cum ar fi birouri, spatii de intruniri, clinica medicala, cabinet notarial, cafeanea, etc.

Proprietatea a fost recent eliiberata, predare imediata.

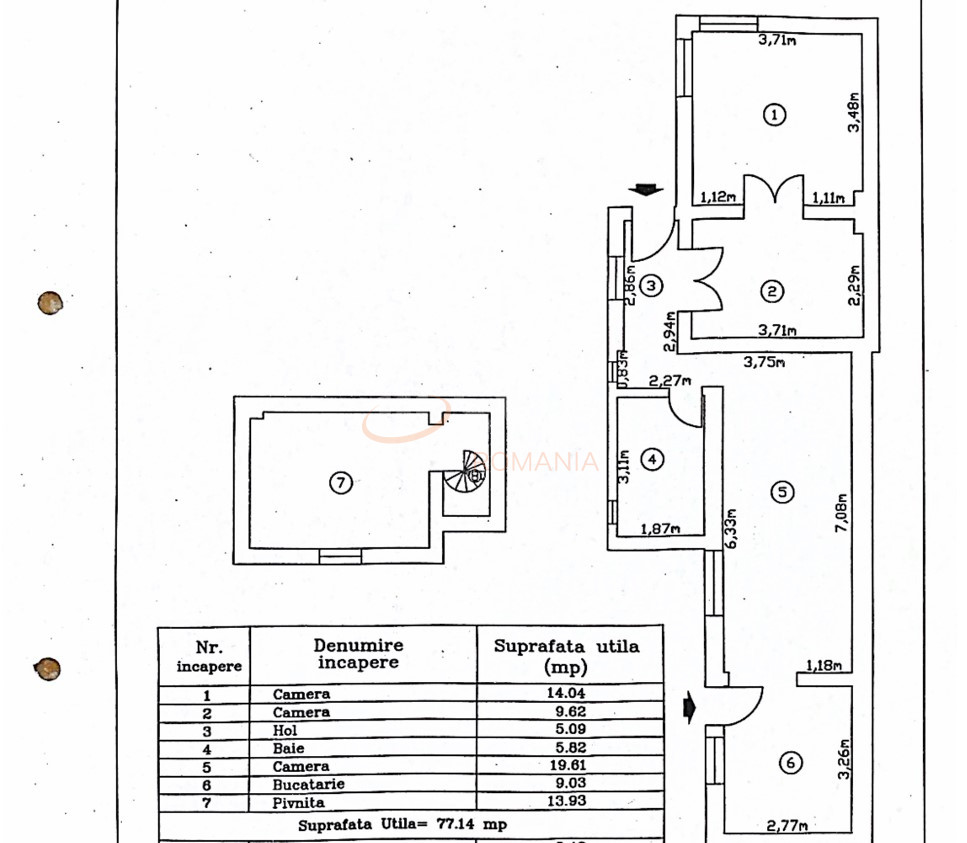
Imobilul are o suprafata uila de 77mp.

Dotari: Aer Conditionat, Gaz, Curent, Centrala, Sistem de Alarma, Interfon.

Pret chirie 1600 EURO.

Pentru mai multe detalii si vizionari va rog sa ne contactati!

An constructie 1980

Suprafata construita 100 mp

Suprafata utila 77 mp

Regim Inaltime P + 1

Etaj P + 1

Nr. camere 3 camere

Nr. bai 2

Nr. balcoane 0 balcoane

Tip constructie Vila

Status constructie Finalizat

Amprenta la sol 100

Teren suprafata 150 mp

Deschidere stradala 10 m

Curte Individuala Da

Disponibila incepand cu 2025-10-13

Judet Bucuresti

Oras/ Sector Sector 2

Zona Floreasca

Gps lat 44.465309

Gps lng 26.100600

Nr. terase 2

Geamuri termopan

Telefon

Parchet

Apa

Acoperis tabla

Gresie

Gaz

Faianta

Canalizare

Calorifere

Consolidata

Aer conditionat

WC serviciu

Sistem de alarma

Detector de gaze

Termoizolatie

Internet Wireless

Internet prin cablu

Curent electric

Cablu TV

Supraveghere video

Gradina

Pod

Broker Imobiliar

Adrian Mantu , Consultant imobiliar Vezi toate proprietatile

0317100200

Imobil de inchiriat Floreasca

Pret inchiriere
1.400 € /luna

Telefon Consultant imobiliar
0317100200

Cod: REV2005167

Proprietati similare

Bucuresti, Ultracentral, Basarab

Casa, 3 camere

106.07 mp P + M 1930

1.450 EUR/luna

Detalii
Case 3 camere inchiriate in Floreasca, Bucuresti Case 3 camere de inchiriere in Floreasca, Bucuresti

Afla primul de cele mai bune oferte
inainte sa ajunga pe piata

Aboneaza-te la newsletter

Aboneaza-te la notificari