Horea 3 camere 196.9 mp P + M 128 mp

Vila propusa spre achizitionare a fost preluata si fotografiata, de catre un broker al SVN Romania| Cluj, una dintre cele mai mari companii de consultanta imobiliara, ce face parte din grupul SVN, brand recunoscut, la nivel mondial, pentru calitatea serviciilor imobiliare oferite.

SVN Romania | Cluj va propune spre achizitionare o casa individuala, nou construita, in zona strazii Horea, partea mai dinspre gara. Casa este realizata in structura parter si mansarda.

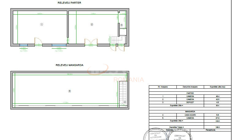
La parter sunt prevazute 2 camere mari, bucatarie, 2 bai, un depozit, iar la mansarda e un open space generos, de 98 mp.

In momentul de fata casa este finisata pe exterior, la interior este semifinisata , urmand a se realiza compartimentarile.

Casa este din caramida, acoperisul este din tigla. Suprafata utila rezultata este de 196,9 metri patrati, la parter 93,4 mp, iar la mansarda 103,5, suprafata in care este inclusa si casa scarii.

Casa are toate utilitatile necesare, se vinde cu finisaje si compartimentari la cererea clientului, pentru suma de 390.000 de euro, in pret intra si 2 locuri de parcare in curtea interioara a imobilului.

OBSERVATII:
SVN Romania | Cluj, in calitate de companie imobiliara, care promoveaza acest imobil, incearca sa ofere detalii tehnice, in raport cu situatia reala a proprietatii prezentate, cu amendamentul ca acestea nu constituie sau nu fac parte dintr-o oferta aferenta unui contract.

Datele enumerate in aceasta specificatie, au fost preluate verbal, ca ghid informativ, pentru potentialii cumparatori, in momentul preluarii spre promovare, a imobilului mai sus prezentat, de la apartinatorul de drept, acestea nefiind verificate in amanunt, de noi, pentru a va oferi o garantie. Astfel, toata documentatia va fi verificata, integral, in momentul in care se solicita actele proprietatii, ca si pas premergator contractului de vanzare - cumparare, in cazul in care exista un interes pentru acest imobil.

Daca aveti nevoie de clarificari sau informatii suplimentare, broker-ul care administreaza aceasta oferta, va poate oferi detalii complete.

Nota: Structura acestei prezentari si informatiile mai sus detaliate, nu pot fi preluate, fara acordul scris al SVN Romania | Cluj.

An constructie 2022

Suprafata construita 200 mp

Suprafata utila 196.9 mp

Regim Inaltime P + M

Etaj P + M

Nr. camere 3 camere

Nr. bai 1

Nr. balcoane 0 balcoane

Tip constructie Vila

Status constructie Nefinalizat

Amprenta la sol 100

Teren suprafata 128 mp

Deschidere stradala 10 m

Disponibila incepand cu 2023-05-26

Judet Cluj

Oras/ Sector Cluj-Napoca

Zona Horea

Gps lat 46.781566

Gps lng 23.589225

Clasa energetica 2

Acoperis mansardat

Spatiu de joaca

Geamuri termopan

Acoperis tigla

Detector de gaze

Curent electric

Gradina

Casa finisata la cerere

Proprietate inchiriata

Ai o proprietate similara? Vinde-o cu noi.
Vinde apartament

Cod: REV2002056
Case 3 camere inchiriate in Cluj-Napoca, Cluj Case 3 camere de inchiriere in Cluj-Napoca, Cluj

Afla primul de cele mai bune oferte
inainte sa ajunga pe piata

Aboneaza-te la newsletter

Aboneaza-te la notificari