Domenii 6 camere 220 mp D + P + 1 + M 227 mp

SVN Romania va propune spre vanzare o vila situata in zona Domenii, in complexul de vile din strada Parcului.

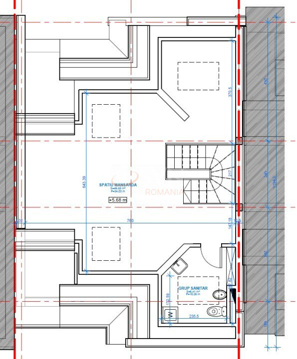
Vila este compusa din D+P+E+M si are urmatoarea comparimentare:
Demisol: camera, spalatorie, spatiu depozitare
Parter: living, dinning, bucatarie, baie, hol, spatiu depozitare, hol
Etaj: master bedroom cu dressing si baie, 2 dormitoare, baie, hol
Mansarda: open space, baie

Proprietatea a fost renovata integral in anul 2018: au fost inlocuite instalatiile electrice si sanitare, sistemul de incalzire, a fost recompartimentat spatiu interior. Lucrarile au fost facute de o firma de top din domeniul, fiind folosite materiale premium dupa un design conceput de o firma de arhitectura.

Vila are o suprafata totala de aprox 250 mp, din care 220 mp utili si beneficiaza de un lot de teren cu sup de 227 mp. Atat partea din fata a curtii, cat si partea din spate, sunt amenajete. Partea din spate este dotata cu mobilier si cu loc de gratar.

Nu detinem informatii despre clasa energetica a imobilului.

An constructie 2008

Suprafata construita 250 mp

Suprafata utila 220 mp

Regim Inaltime D + P + 1 + M

Etaj D + P + 1 + M

Nr. camere 6 camere

Nr. bai 4

Nr. balcoane 0 balcoane

Tip constructie Vila

Status constructie Finalizat

Teren suprafata 227 mp

Deschidere stradala 8 m

Curte Individuala Da

Disponibila incepand cu 2022-04-16

Judet Bucuresti

Oras/ Sector Sector 1

Zona Domenii

Gps lat 44.477068

Gps lng 26.056848

Acoperis mansardat

Geamuri termopan

Telefon

Parchet

Apa

Acoperis tabla

Gresie

Gaz

Faianta

Canalizare

Plansee beton

Incalzire centrala termica

Aer conditionat

Renovat recent

WC serviciu

Sistem de alarma

Detector de gaze

Spatiu de depozitare

Termoizolatie

Internet Wireless

Internet prin fibra optica

Internet prin cablu

Curent electric

Cablu TV

Detector de incendiu

Supraveghere video

Gradina

Domenii - vila D P E M 220 mp utili

Proprietate vanduta

Ai o proprietate similara? Vinde-o cu noi.
Vinde apartament

Cod: REV2001402

Proprietati similare

Bucuresti, Bucurestii Noi, Jiului

Casa, 6 camere

220 mp P + 1 + M 2009

509.000 EUR

Detalii

Bucuresti, 1 Mai, Domenii

Casa, 6 camere

175.81 mp S + P + M 1997

449.999 EUR

Detalii

Bucuresti, 1 Mai, Domenii

Casa, 6 camere

208 mp D + P + 1 + M 1997

450.000 EUR

Detalii

Bucuresti, Gara De Nord, Grivita

Casa, 6 camere

181 mp S + P + M 2004

490.000 EUR

Detalii
Exclusiv Discount

Bucuresti, Pipera

Casa, 6 camere

161 mp P + 3 2023

450.000 EUR

Detalii

Bucuresti, Pipera, Iancu Nicolae

Casa, 6 camere

250 mp P + 2 2023

539.000 EUR

Detalii

Bucuresti, Colentina, Doamna Ghica

Casa, 6 camere

245 mp D + P + 2 2011

495.000 EUR

Detalii

Bucuresti, Parcul Carol

Casa, 6 camere

230 mp S + P + 1 1980

500.000 EUR

Detalii
Case 6 camere vandute in 1 Mai, Bucuresti Case 6 camere de vanzare in 1 Mai, Bucuresti

Afla primul de cele mai bune oferte
inainte sa ajunga pe piata

Aboneaza-te la newsletter

Aboneaza-te la notificari