Casa, 5 camere, Bucuresti / Pipera
Complexul cuprinde 9 vile individuale, construite pe loturi de teren cu suprafata de 450 mp.
Vila este construita in stil mediteranean, materialele folosite avand un standard inalt de calitate.
Structura casei este din beton, fara grinzi si stalpi la vedere, toate compartimentarile fiind realizate din caramida.
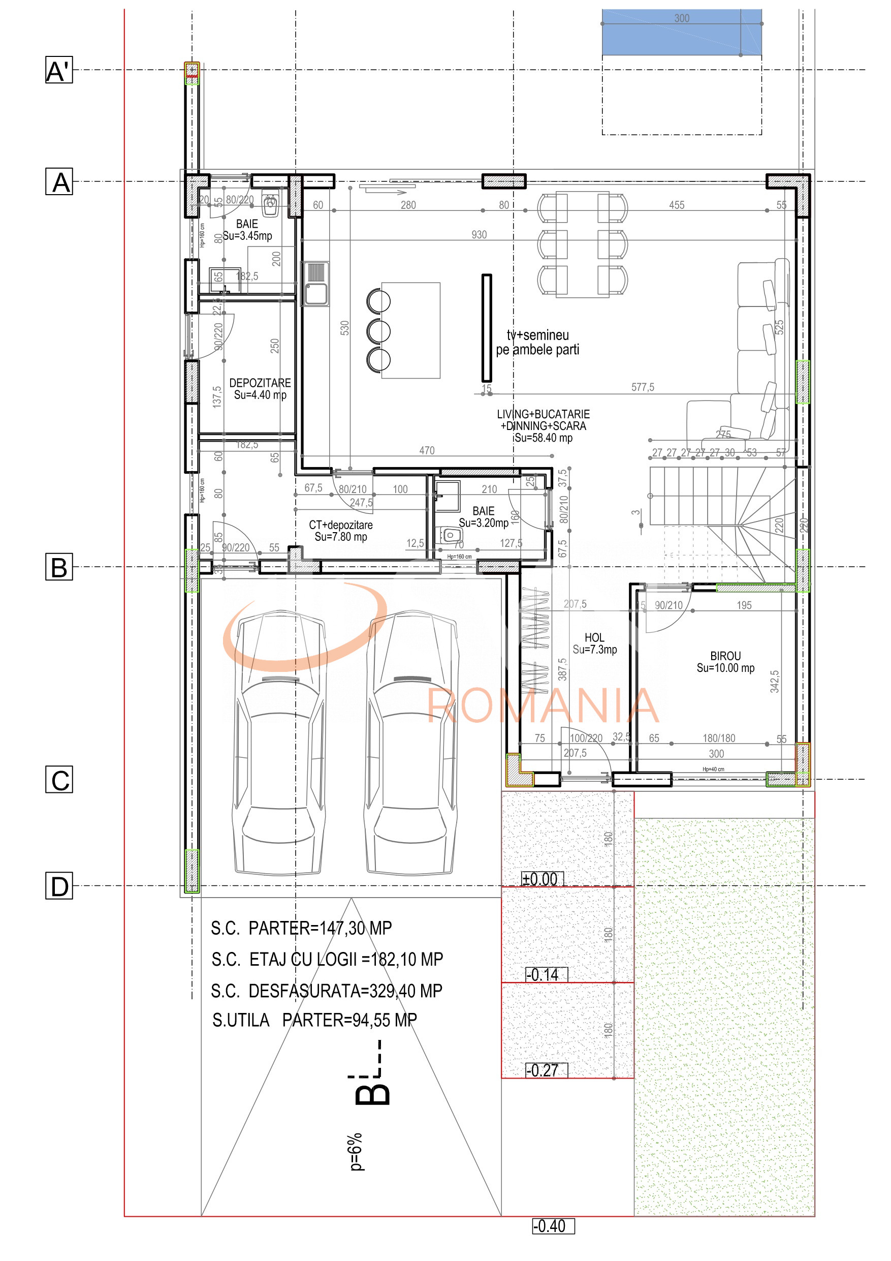
Vila are urmatoarea compartimentare:
- Parter: living,bucatarie, dinning(58,4mp), birou(10 mp), hol(7,3mp), baie(3,45 mp), spatiu depozitare(4,4 mp) zona tehnica(7,6 mp), baie(3,2mp), garaj dublu.
- Etaj: dormitor 1(15,45mp), dormitor 2(15,45 mp), baie(6,15 mp), dormitor matrimonial(25,75 mp), dressing(11,10mp), baie(8,7 mp), 2 terase( 16,5 mp fiecare).
Finisaj exterior:
- Pereti exteriori caramida
- Izolatie exterioara cu polistiren expandat si tencuiala decorativa
- Placare ceramica si riflaj lemn pin
- Usa intrare RAYNERS
- Tamplarie din aluminiu RAYNERS cu geam tripan
- Hidroizolatie plansee si terase cu spuma poliuretanica celula inchisa si poliuree
- Balustrada exterioara din sticla
- Piscina exterioara de 6m x 3 m x H1,5 m
- Curte amenajata
- Inchidere perimetrala garduri
Finisaj interior:
- Tavane placate cu gips carton
- Pereti interiori vopsiti cu vinarom alb
- Sape turnate
- Instalatie electrica sistem KNX si prize montate
- Instalatie de incalzire in pardoseala cu pompa de caldura reversibila
- Instalatie de racire in tavane
- Sistem automat de control al casei de la distanta
- Scara interioara din sticla cu trepte din lemn.
In acest moment vila dispune de certificat energetic, clasa A.
Atribute
An constructie 2022
Suprafata construita 330 mp
Suprafata utila 180 mp
Regim Inaltime P + 1
Etaj P + 1
Nr. camere 5 camere
Nr. bai 3
Nr. balcoane 0 balcoane
Tip constructie Vila
Status constructie Nefinalizat
Amprenta la sol 147
Teren suprafata 450 mp
Curte Individuala Da
Disponibila incepand cu 2023-05-24
Judet Bucuresti
Oras/ Sector Sector 1
Zona Pipera
Gps lat 44.500902
Gps lng 26.164273
Facilitati
Geamuri termopan
Canalizare
Garaj
Aer conditionat
WC serviciu
Termoizolatie
Curent electric
Gradina
Investitie - vila moderna in complex rezidential - stil mediteranean
Proprietate vanduta
Ai o proprietate similara? Vinde-o cu noi.
  Vinde apartament  
 
  
  
  
  
  
  
  
  
  
  
  
  
  
  
  
  
  
   
   
   
   
   
  
  
   
   
   
   
   
  
  
   
   
   
   
   
  
  
   
   
   
   
   
  
  
   
   
   
   
   
  
  
   
   
   
   
   
  
  
   
   
   
   
   
  
  
   
   
   
  