Pipera 5 camere 350 mp S + P + 1 525 mp

Svn Residentialist, va propune spre vanzare o vila spatioasa si bine compartimenta situata in zona de nord a capitalei pe Bdul Pipera.

Amplasarea acesteia este una foarte buna, prin prisma faptului ca avem acces rapid catre oras, iar in apropiere avem supermarket-uri, restaurante, centre comerciale si de business, scoli, gradinite (Scoala Americana, Cambridge School, Liceul Mark Twain, Scoala Germana, Hermann Oberth, Scoala Privata Turca, Scoala Gimnaziala nr 3, Scoala Primara nr 10, Gradinita nr 10, etc.) si clinici private.

Imobilul este potrivit pentru o famile numeroasa, avand o suprafata utila de 350mp.

Vila este compartimentata astfel:

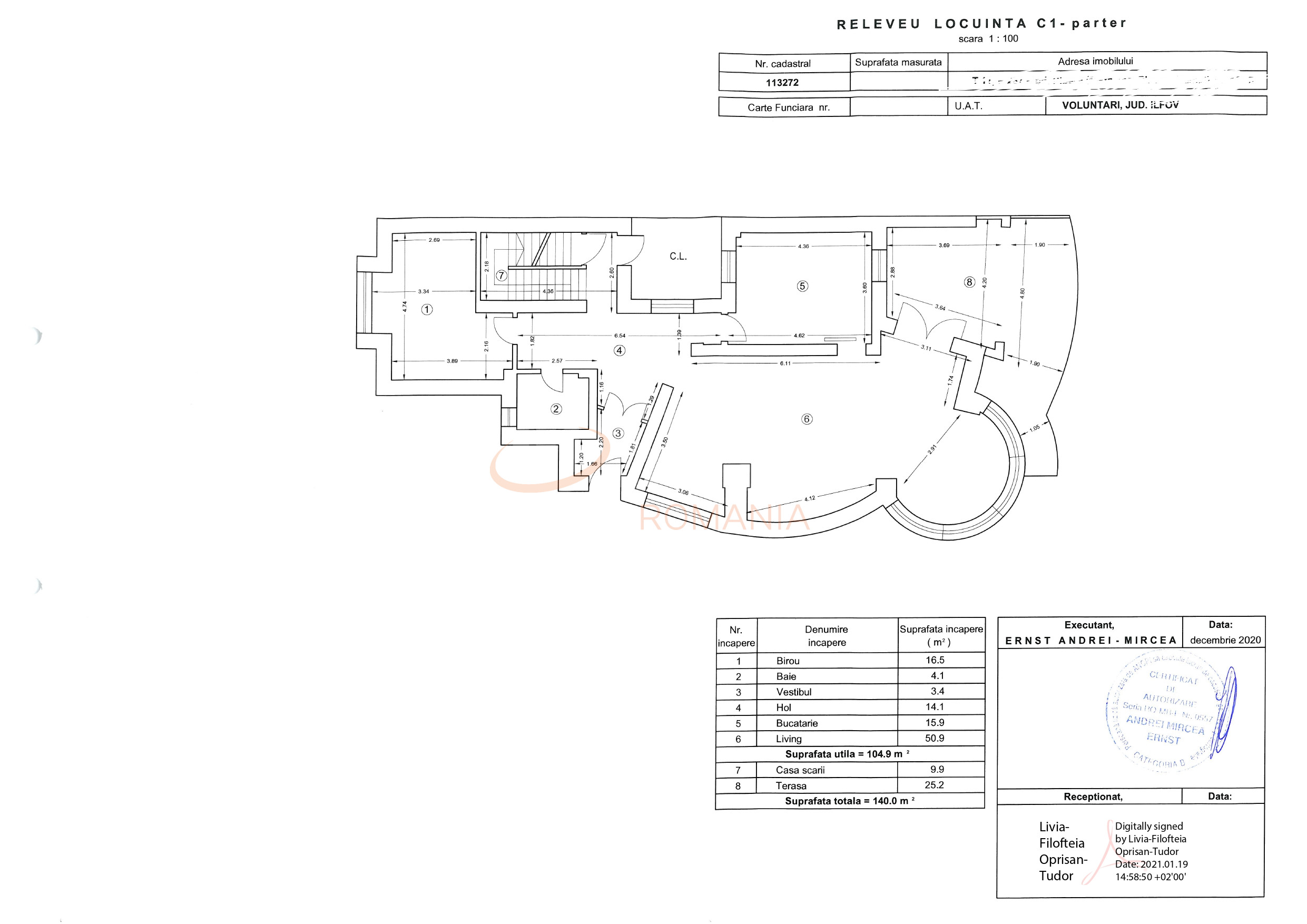
Subsol: cuprinde o spalatorie, camera tehnica si garajul cu o suprafata de 15 mp si ramapa incalzita.

Parter: format dintr-un birou spatios, baie, bucatarie, vestibul si un living de 54mp.
Iesirea la parter catre curte se face pe o terasa spatioasa de 25 mp.

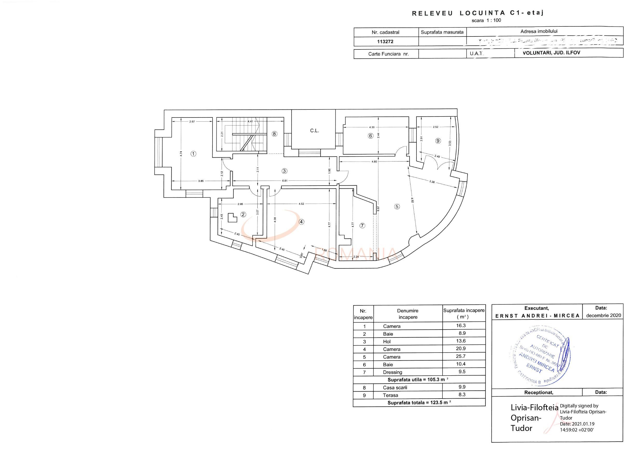
Un etaj extins care cuprinde trei dormitoare spatioase, doua bai , un dresing si o alta teresa de 8.3 mp.

Terenul are o suprata de 500 mp.

Certficatul energetic va fi pus la dispozitie in momentul vanzarii.

Pentru mai multe detalii dar si pentru vizionare asteptam contactul dumneavoastra!

An constructie 2006

Suprafata construita 520 mp

Suprafata utila 350 mp

Regim Inaltime S + P + 1

Etaj S + P + 1

Nr. camere 5 camere

Nr. bai 4

Nr. balcoane 0 balcoane

Tip constructie Vila

Status constructie Finalizat

Amprenta la sol 151

Teren suprafata 525 mp

Curte Individuala Da

Disponibila incepand cu 2024-04-10

Judet Bucuresti

Oras/ Sector Sector 1

Zona Pipera

Gps lat 44.513286

Gps lng 26.140149

Nr. terase 1

Clasa energetica 1

Geamuri termopan

Parchet

Gresie

Canalizare

Garaj

Parcare in curte

Aer conditionat

WC serviciu

Detector de gaze

Internet Wireless

Curent electric

Gradina

Vila 5 Camere Bucuresti Pipera

Proprietate vanduta

Ai o proprietate similara? Vinde-o cu noi.
Vinde apartament

Cod: REV2003272

Proprietati similare

Bucuresti, Pipera

Casa, 5 camere

144 mp P + 2 2023

419.000 EUR

Detalii

Bucuresti, Pipera

Casa, 5 camere

144 mp P + 2 2023

469.000 EUR

Detalii

Bucuresti, Pipera

Casa, 5 camere

144 mp P + 2 2023

449.000 EUR

Detalii

Bucuresti, Pipera

Casa, 5 camere

175 mp P + 2 2010

449.900 EUR

Detalii

Bucuresti, Baneasa

Casa, 5 camere

241.3 mp P + M 2017

485.000 EUR

Detalii

Bucuresti, Pipera

Casa, 5 camere

221 mp P + 1 2025

430.000 EUR

Detalii

Bucuresti, Pipera

Casa, 5 camere

179.47 mp P + 2 2025

415.000 EUR

Detalii

Bucuresti, Floreasca, Barbu Vacarescu

Casa, 5 camere

85.4 mp S + P + M 1960

470.000 EUR

Detalii
Case 5 camere vandute in Pipera, Bucuresti Case 5 camere de vanzare in Pipera, Bucuresti

Afla primul de cele mai bune oferte
inainte sa ajunga pe piata

Aboneaza-te la newsletter

Aboneaza-te la notificari