Pipera 5 camere 140 mp P + 1 + M 150 mp

SVN Romania va prezinta in nordul Bucurestiului, in cartierul exclusivist Pipera, aceasta vila de poveste ce ofera un refugiu perfect pentru cei care cauta un echilibru intre lux si confort.

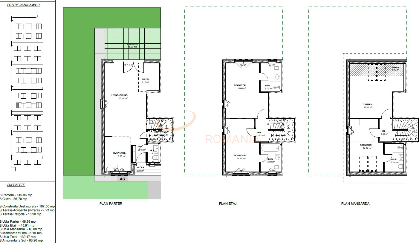
Design Interior si Distributie

Parter: Inima casei este un living spatios si luminos, complet mobilat, ideal pentru momente de relaxare si socializare. Bucataria moderna, tip open space, este complet mobilata si utilata, gata pentru a gazdui cine memorabile si intalniri cu prietenii. Tot la parter se regasesc un grup sanitar si o camera tehnica, asigurand functionalitatea si confortul necesar.

Primul Nivel: Doua dormitoare matrimoniale te asteapta cu propriile bai, oferind intimitate si liniste. Fiecare camera este un sanctuar personal, perfect pentru odihna si relaxare.

Mansarda: Doua dormitoare suplimentare, o baie si un spatiu de depozitare ofera versatilitate si confort. Ferestrele Velux duble asigura ventilatie excelenta si izolare termica optima.

Exterior si Facilitati

Curte Exterioara: Un spatiu generos si placut, perfect pentru activitati in aer liber si momente de relaxare sub pergola eleganta.
Doua Locuri de Parcare: Spatii dedicate, pregatite pentru instalarea statiilor de incarcare pentru masini electrice.

Finisaje Premium
Usa metalica de intrare pentru securitate si design modern.
Tamplarie Schuco din PVC cu 5 camere pentru izolatie termica excelenta.
Usi interioare din Italia, cu balamale ascunse, care combina estetica rafinata cu durabilitatea.
Parchet elegant si incalzire in pardoseala pentru un confort termic superior.
Obiecte sanitare Weser, cum ar fi cada Standalone si dusul Walk-in, pentru o experienta de lux in bai.
Centrala Viessmann cu termostat Wi-Fi pentru gestionarea inteligenta si eficienta a incalzirii.
Ceramica portelanata din Italia care adauga un plus de sofisticare in fiecare colt al casei.

Tehnologie Moderna
Termostat inteligent pentru reglarea automata a temperaturii in functie de nevoile tale.
Aer conditionat Wi-Fi, controlabil de pe smartphone pentru un confort optim.
Suprafete vitrate generoase care permit luminii naturale sa patrunda din abundenta, oferind un ambient cald si primitor.

Facilitati de Proximitate
Acces facil la DN1 si A3, aproape de principalele centre de afaceri si zone de recreere din Bucuresti.
Scoli si gradinite de prestigiu, precum Scoala Americana, British School si Olga Gudynn, la doar cativa pasi distanta.
Centre comerciale si supermarketuri: Mega Image, Jolie Ville, Baneasa Shopping City, Pipera Plaza si LIDL pentru toate nevoile tale de cumparaturi.
Spatii de recreere si fitness: Atlantis Club, World Class si Gradina Zoologica sunt locuri ideale pentru a te mentine activ si a te bucura de timpul liber.
Restaurante si cafenele variate in Strip Mall-ul de pe Iancu Nicolae.

Aceasta vila din Pipera nu este doar o locuinta, ci un refugiu rafinat, gata sa ofere confort si eleganta fiecarui membru al familiei. Predata cu bucataria si livingul complet mobilate si utilate, este pregatita sa devina acasa pentru cei care doresc sa se bucure de o viata de vis in unul dintre cele mai exclusiviste cartiere ale Bucurestiului. Disponibila atat pentru vanzare, cat si pentru inchiriere, vila este o oportunitate unica de a trai in lux si stil. Vino sa descoperi frumusetea si rafinamentul acestei proprietati de exceptie!

An constructie 2023

Suprafata construita 188 mp

Suprafata utila 140 mp

Regim Inaltime P + 1 + M

Etaj P + 1 + M

Nr. camere 5 camere

Nr. bai 4

Nr. balcoane 0 balcoane

Tip constructie Vila

Status constructie Finalizat

Amprenta la sol 63

Teren suprafata 150 mp

Curte Individuala Da

Disponibila incepand cu 2024-12-13

Judet Bucuresti

Oras/ Sector Sector 1

Zona Pipera

Gps lat 44.514877

Gps lng 26.152660

Complex rezidential MOBEXPERT HOMES PIPERA

Nr. terase 1

Acoperis mansardat

Geamuri termopan

Telefon

Parchet

Apa

Gresie

Gaz

Faianta

Plansee beton

Parcare in curte

Incalzire centrala termica

Aer conditionat

Renovat recent

WC serviciu

Detector de gaze

Spatiu de depozitare

Sistem irigatie

Termoizolatie

Internet Wireless

Internet prin fibra optica

Curent electric

Cablu TV

Detector de incendiu

Supraveghere video

Gradina

Incalzire prin pardoseala

Canalizare

Pipera Vila 5 Camere Imobil Nou

Proprietate vanduta

Ai o proprietate similara? Vinde-o cu noi.
Vinde apartament

Cod: REV2003855

Proprietati similare

Bucuresti, Pipera

Casa, 5 camere

183.63 mp P + 2 2027

355.000 EUR

Detalii

Bucuresti, Pipera

Casa, 5 camere

183.63 mp P + 2 2027

355.000 EUR

Detalii

Bucuresti, Pipera

Casa, 5 camere

183.63 mp P + 2 2027

355.000 EUR

Detalii

Bucuresti, Pipera

Casa, 5 camere

183.63 mp P + 2 2027

355.000 EUR

Detalii

Bucuresti, Pipera

Casa, 5 camere

260 mp P + 1 + M 2011

360.000 EUR

Detalii

Bucuresti, Dacia, Armeneasca

Casa, 5 camere

130 mp S + P + M 1935

339.990 EUR

Detalii

Bucuresti, Ultracentral, Piata Universitatii

Casa, 5 camere

200 mp P + 2 + M 1932

320.000 EUR

Detalii

Bucuresti, Bucurestii Noi

Casa, 5 camere

155 mp D + P + 1 1992

299.000 EUR

Detalii
Case 5 camere vandute in Pipera, Bucuresti Case 5 camere de vanzare in Pipera, Bucuresti

Afla primul de cele mai bune oferte
inainte sa ajunga pe piata

Aboneaza-te la newsletter

Aboneaza-te la notificari