Pipera 8 camere 500 mp P + 1 + M 650 mp

SVN Romania va propune spre achizitie un imobil structurat pe parter, etaj si mansarda , edificat in anul 2004 pe Iancu Nicolae in imediata apropiere scolii britanice. Imobilul dispune de o compartimentare decomandata , garaj ce acomodeaza doua masini precum si finsajele specifice anilor 2000.
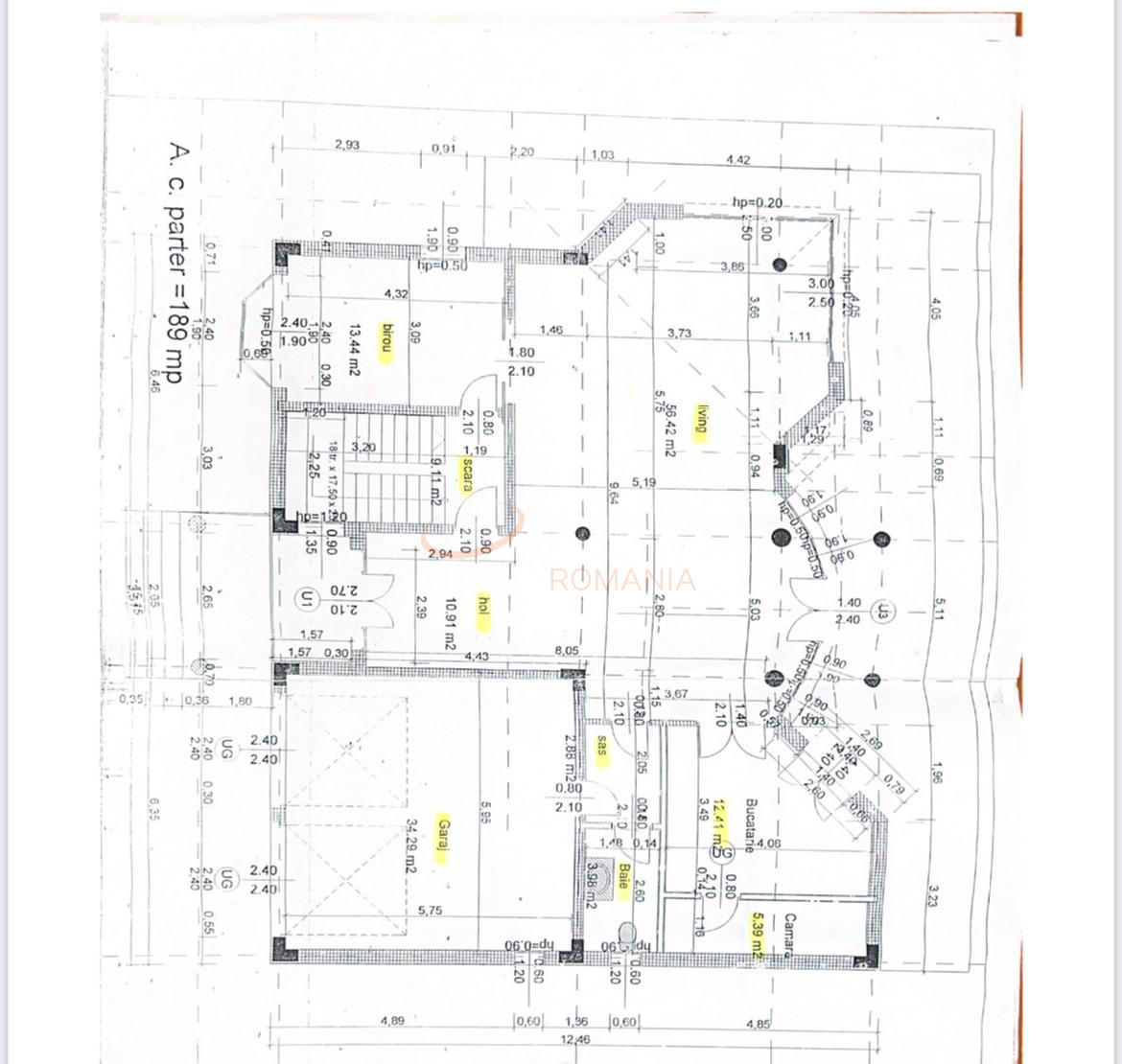
Proprietatea este amplasata pe un teren de 650 mp si are o amprenta la sol de 191 mp.
Se poate vinde mobilata cum reiese din fotografii.
Pentru orice informatii suplimentare , va stam la dispozitie.

An constructie 2004

Suprafata construita 527 mp

Suprafata utila 500 mp

Regim Inaltime P + 1 + M

Etaj P + 1 + M

Nr. camere 8 camere

Nr. bai 6

Nr. balcoane 2 balcoane

Tip constructie Vila

Status constructie Finalizat

Amprenta la sol 191

Teren suprafata 650 mp

Curte Individuala Da

Disponibila incepand cu 2025-09-23

Judet Bucuresti

Oras/ Sector Sector 1

Zona Pipera

Gps lat 44.514380

Gps lng 26.135607

Geamuri termopan

Parchet

Apa

Acoperis tabla

Gresie

Gaz

Faianta

Canalizare

Garaj

Plansee beton

Aer conditionat

Curent electric

Gradina

Incalzire centrala termica

Valoare proprietate (€)

Perioada (ani)

Procent avans (141.000 €)


Suma creditata 799.000

Dobanda 4.9%

Rata lunara 19.754 lei

Broker Imobiliar

Madalina Lungu , Consultant imobiliar Vezi toate proprietatile

0317100200

Vila Iancu Nicolae British School

Pret vanzare
940.000 €

Telefon Consultant imobiliar
0317100200

Cod: REV2004481

Proprietati similare

Bucuresti, Pipera, Iancu Nicolae

Casa, 8 camere

310 mp P + 1 + M 2015

980.000 EUR

Detalii

Bucuresti, Sector 3, P-ta Unirii

Casa, 8 camere

297.82 mp S + P + 2 2008

850.000 EUR

Detalii
Case 8 camere vandute in Pipera, Bucuresti Case 8 camere de vanzare in Pipera, Bucuresti

Afla primul de cele mai bune oferte
inainte sa ajunga pe piata

Aboneaza-te la newsletter

Aboneaza-te la notificari