Eminescu 5 camere 500 mp P + 1 771 mp

Va propunem spre vanzare un imobil de lux situat intr-o foarte frumoasa zona a capitalei, ferita de vanturi puternice si inundatii: Eminescu - Petrom, foarte aproape de Centrul capitalei - Romana, Dorobanti.

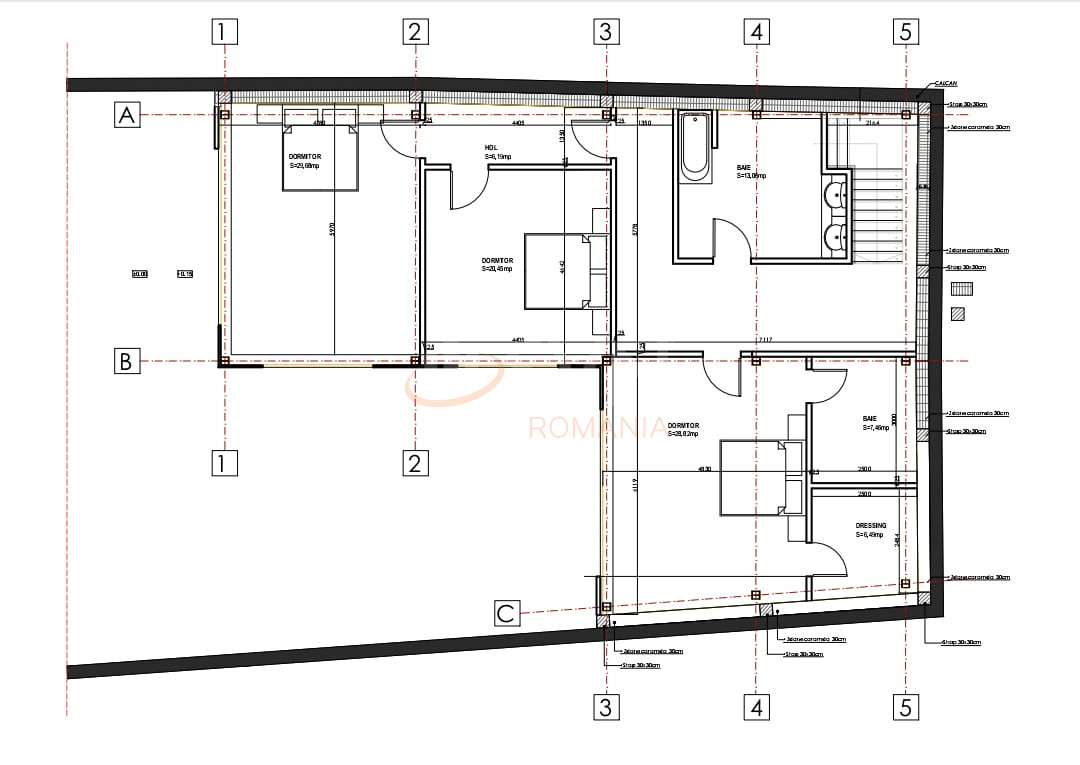
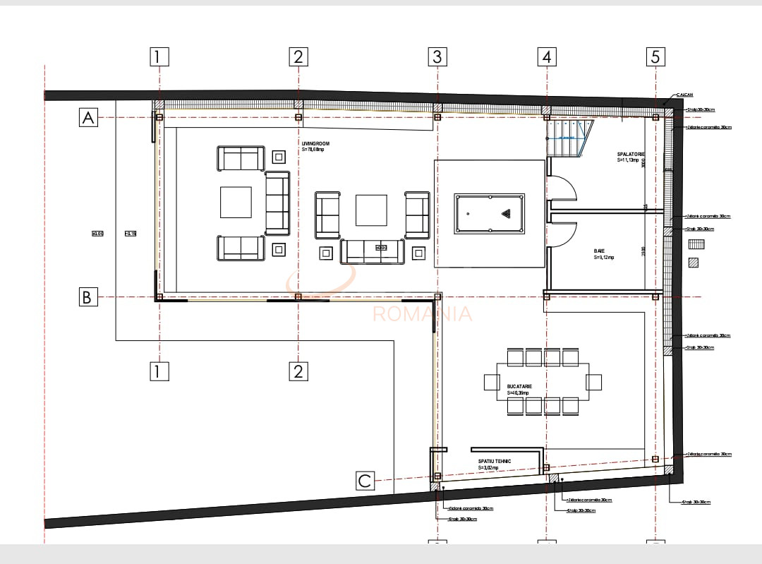
Suprafata corp 1 p+1 este de 300 mp utili cu amprenta de 170 mp iar corpul 2 s+p+m are 200 mp utili cu amprenta de 70 mp. Terenul are o suprafata totala de 771 mp.

Pretul este de 625.000 euro in stadiul in care se afla proiectul acum (nefinalizat).

In total proiectul are 500 mp utili in 2 corpuri si 75 mp pt 4 garaje.

Toata infrastructura este trasa deja, exista contracte cu furnizorii de utilitati.

Pentru mai multe detalii, va rog, nu ezitati sa ma contactati!

An constructie 2019

Suprafata construita 575 mp

Suprafata utila 500 mp

Regim Inaltime P + 1

Etaj P + 1

Nr. camere 5 camere

Nr. bai 4

Nr. balcoane 0 balcoane

Tip constructie Vila

Status constructie Nefinalizat

Amprenta la sol 240

Teren suprafata 771 mp

Deschidere stradala 6 m

Curte Individuala Da

Disponibila incepand cu 2023-02-03

Judet Bucuresti

Oras/ Sector Sector 2

Zona Eminescu

Gps lat 44.448499

Gps lng 26.107363

Spatiu de joaca

Apa

Gaz

Canalizare

Garaj

Plansee beton

Incalzire centrala termica

Consolidata

Curent electric

Gradina

Proiect NOU cu autorizatie - EMINESCU

Proprietate vanduta

Ai o proprietate similara? Vinde-o cu noi.
Vinde apartament

Cod: REV2000374

Proprietati similare

Bucuresti, Floreasca, Barbu Vacarescu

Casa, 5 camere

85.4 mp S + P + M 1937

600.000 EUR

Detalii

Bucuresti, Ultracentral, Calea Victoriei

Casa, 5 camere

205.57 mp S + P + 1 1945

590.000 EUR

Detalii

Bucuresti, Ultracentral, Calea Victoriei

Casa, 5 camere

156.14 mp S + P + 1 1903

600.000 EUR

Detalii

Bucuresti, Vatra Luminoasa

Casa, 5 camere

257 mp S + P + 1 + M 2018

680.000 EUR

Detalii

Bucuresti, Ultracentral, Piata Victoriei

Casa, 5 camere

335 mp D + P + 1 + M 2005

670.000 EUR

Detalii

Bucuresti, 1 Mai

Casa, 5 camere

290 mp S + P + 2 2005

670.000 EUR

Detalii

Bucuresti, Unirii, Piata Unirii (s3)

Casa, 5 camere

312.66 mp D + P + 1 + M 1940

670.000 EUR

Detalii

Bucuresti, Herastrau

Casa, 5 camere

138.55 mp P + 1 + M 2003

680.000 EUR

Detalii
Case 5 camere vandute in Dacia, Bucuresti Case 5 camere de vanzare in Dacia, Bucuresti

Afla primul de cele mai bune oferte
inainte sa ajunga pe piata

Aboneaza-te la newsletter

Aboneaza-te la notificari