Piata Unirii (s3) 8 camere 297.82 mp S + P + 2 200 mp

SVN ROMANIA va prezinta spre achizitionare aceasta vila interbelica in stil baroc ce impresioneaza prin eleganta si rafinamentul sau situata in zona Budapesta, .

Cu o structura de tip D+P+2E, vila este amplasata pe un teren de 200 mp cu o amprenta la sol de 110mp si ofera o suprafata utila de aproximativ 300 mp. Reconsolidata in anul 2008, proprietatea imbina farmecul istoric cu modernitatea, avand finisaje de lux care ii accentueaza unicitatea.

La parter, un restaurant de lux, complet echipat si functional, primeste clientii intr-un cadru deosebit, beneficiind de o terasa spatioasa si toate autorizatiile de functionare necesare.


Intrarile separate pentru fiecare nivel, impreuna cu centralele termice si contoarele electrice individuale, ofera flexibilitate in utilizare, facand vila potrivita atat pentru activitati comerciale, cat si pentru locuinte private.

Cu deschiderea de 15 metri la strada, aceasta vila nu doar ca se remarca prin arhitectura sa impunatoare, dar ofera si posibilitati diverse pentru viitorul proprietar, fie ca este vorba de o investitie profitabila, fie de un spatiu de locuit deosebit.


Pentru mai multe detalii si vizionari nu ezitati sa ne contactati.

An constructie 2008

Suprafata construita 450 mp

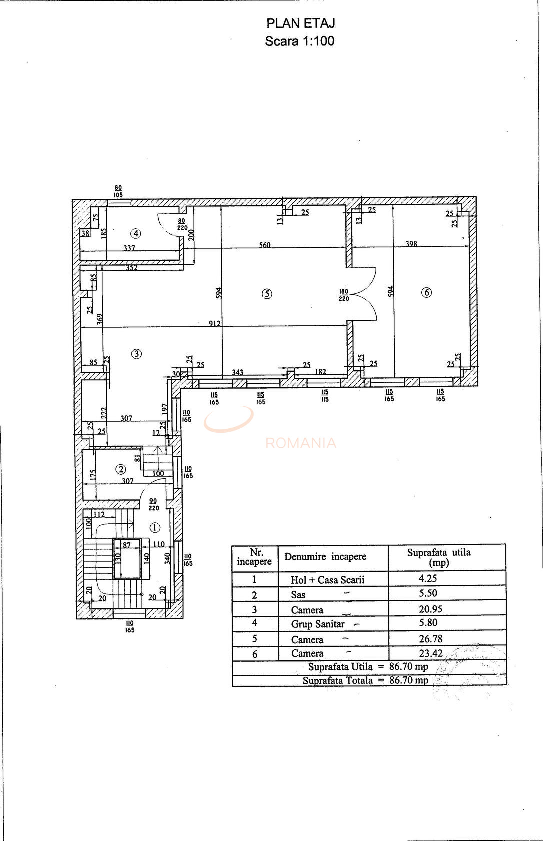
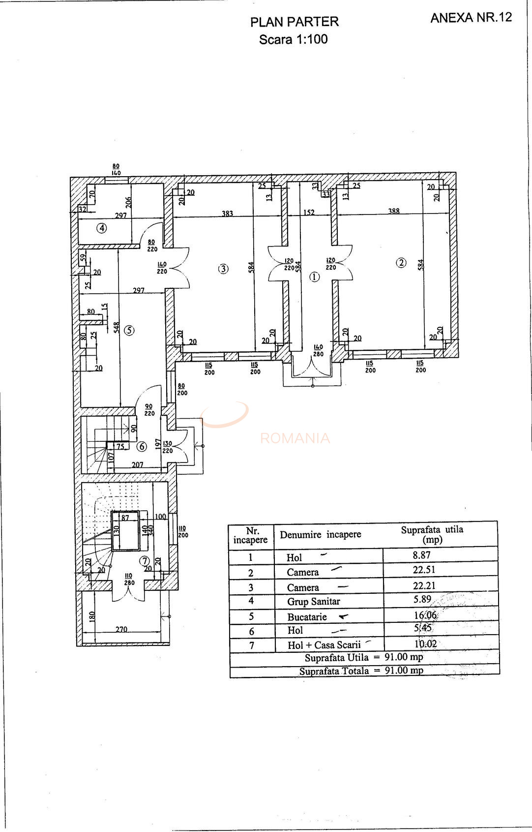
Suprafata utila 297.82 mp

Regim Inaltime S + P + 2

Etaj S + P + 2

Nr. camere 8 camere

Nr. bai 4

Nr. balcoane 0 balcoane

Tip constructie Vila

Status constructie Finalizat

Amprenta la sol 110 mp

Teren suprafata 200 mp

Deschidere stradala 15 m

Curte Individuala Da

Disponibila incepand cu 2025-10-20

Judet Bucuresti

Oras/ Sector Sector 3

Zona Piata Unirii (s3)

Gps lat 44.420928

Gps lng 26.104290

Nr. terase 1

Geamuri termopan

Telefon

Acoperis tigla

Parchet

Apa

Gaz

Pivnita

Faianta

Canalizare

Garaj

Plansee beton

Parcare in curte

Incalzire centrala termica

Aer conditionat

Renovat recent

WC serviciu

Calorifere

Consolidata

Sistem de alarma

Spatiu de depozitare

Termoizolatie

Internet Wireless

Internet prin fibra optica

Curent electric

Cablu TV

Beci

Valoare proprietate (€)

Perioada (ani)

Procent avans (97.500 €)


Suma creditata 552.500

Dobanda 4.9%

Rata lunara 13.660 lei

Broker Imobiliar

Alina Rezmerita , Consultant imobiliar Vezi toate proprietatile

0317100200

Vila interbelica l consolidata l Unirii

Pret vanzare
650.000 €

Telefon Consultant imobiliar
0317100200

Cod: REV0010770

Proprietati similare

Bucuresti, Vitan

Casa, 8 camere

208 mp P + 1 + M 2000

675.000 EUR

Detalii

Bucuresti, Ferdinand, Pache Protopopescu

Casa, 8 camere

340 mp D + 1 + M 1935

650.000 EUR

Detalii
Exclusiv Discount

Bucuresti, Berceni, Aparatorii Patriei

Casa, 8 camere

386.59 mp S + P + 1 + M 2015

595.000 EUR

Detalii
Exclusiv Discount

Bucuresti, Berceni, Aparatorii Patriei

Casa, 8 camere

386.59 mp S + P + 1 + M 2015

595.000 EUR

Detalii
Case 8 camere vandute in Unirii, Bucuresti Case 8 camere de vanzare in Unirii, Bucuresti

Afla primul de cele mai bune oferte
inainte sa ajunga pe piata

Aboneaza-te la newsletter

Aboneaza-te la notificari