Unirii (s3) 7 camere 262 mp S + P + 1 273 mp

SVN Residentialist va propune spre vanzare o proprietate cu identitate si potential, situata in inima Bucurestiului – zona Unirii – 11 Iunie, un cartier istoric si ultracentral, recunoscut pentru farmecul arhitectural si accesibilitatea excelenta.

Este vorba despre o casa individuala cu arhitectura de epoca, amplasata pe un teren de 273 mp si avand in prezent o suprafata construita de 234 mp, desfasurata pe demisol si parter. Proprietatea include 5 camere si dependinte, iar structura existenta permite interventii moderne, fara a compromite caracterul original al cladirii.

Punctul central de atractie al ofertei il reprezinta proiectul de consolidare, recompartimentare si extindere, aflat in etapa avansata de autorizare. Acesta presupune transformarea cladirii intr-o constructie cu regim de inaltime S+P+1E, cu o suprafata desfasurata totala de 389 mp si 262 mp utili.

Noua configuratie imbina armonios functionalitatea contemporana cu stilul unei locuinte cu caracter:

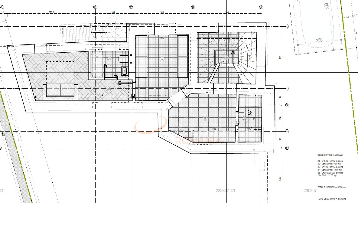
Demisolul va include un spatiu versatil (birou sau dormitor), doua camere tehnice, doua depozite si un grup sanitar.

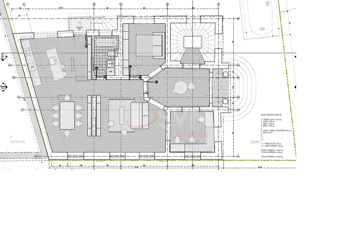
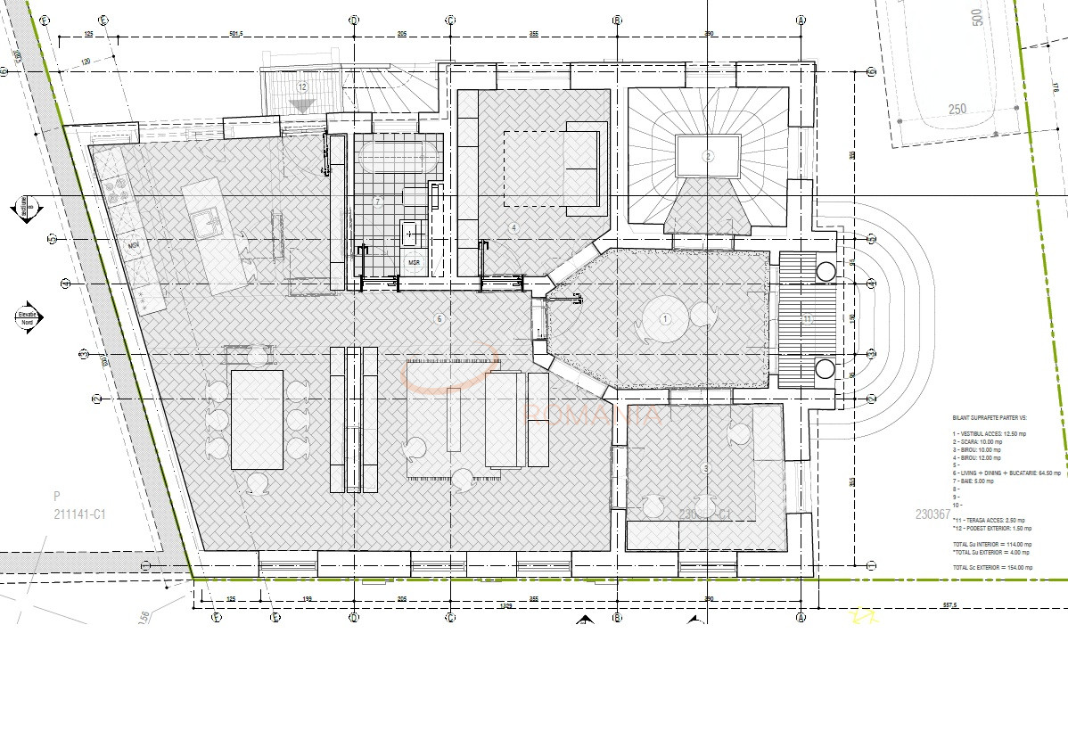
Parterul se va distinge printr-un vestibul elegant, doua camere, grup sanitar si o zona de zi ampla, de tip open space (living, dining si bucatarie) ce se intinde pe 65 mp si poate fi adaptata dupa preferintele noului proprietar.

Etajul va gazdui cinci camere, un dressing generos, doua bai si spatii de depozitare bine amplasate.

Curtea permite acces auto, iar garajul individual (13 mp) completeaza utilitatea locuintei. Proprietatea beneficiaza deja de toate utilitatile: electricitate, gaz, apa, canalizare, CATV.

Aceasta oferta se adreseaza atat clientilor in cautarea unei resedinte reprezentative intr-o zona istorica a orasului, cat si investitorilor care vizeaza o dezvoltare premium, cu valoare adaugata reala. Fie ca vorbim despre locuire, birou de reprezentare sau inchiriere de tip boutique, aceasta proprietate are toate premisele unei investitii inspirate pe termen lung.

? Pentru mai multe detalii sau pentru a programa o vizionare, va invitam sa ne contactati. Echipa SVN Residentialist este aici pentru a va oferi consultanta dedicata si profesionalism.

An constructie 1941

Suprafata construita 389 mp

Suprafata utila 262 mp

Regim Inaltime S + P + 1

Etaj S + P + 1

Nr. camere 7 camere

Nr. bai 4

Nr. balcoane 0 balcoane

Tip constructie Vila

Status constructie Finalizat

Amprenta la sol 100

Teren suprafata 273 mp

Deschidere stradala 19 m

Curte Individuala Da

Disponibila incepand cu 2025-08-25

Judet Bucuresti

Oras/ Sector Sector 3

Zona Unirii (s3)

Gps lat 44.424310

Gps lng 26.094086

Nr. terase 1

Acoperis mansardat

Apa

Gresie

Gaz

Faianta

Canalizare

Garaj

Calorifere

Parcare in curte

Spatiu de depozitare

Gradina

Beci

Valoare proprietate (€)

Perioada (ani)

Procent avans (63.750 €)


Suma creditata 361.250

Dobanda 4.9%

Rata lunara 8.932 lei

Broker Imobiliar

Oana Dumitrascu , Consultant imobiliar Vezi toate proprietatile

0317100200

Vila de epoca cu proiect de extindere I Zona Unirii

Pret vanzare
425.000 €

Telefon Consultant imobiliar
0317100200

Cod: REV2004758

Proprietati similare

Bucuresti, Unirii, Piata Unirii (s3)

Casa, 7 camere

260 mp S + P + 1 + M 1905

425.000 EUR

Detalii

Bucuresti, Unirii, Splaiul Unirii (s3)

Casa, 7 camere

360 mp P + 2 + M 2004

390.000 EUR

Detalii
Case 7 camere vandute in Unirii, Bucuresti Case 7 camere de vanzare in Unirii, Bucuresti

Afla primul de cele mai bune oferte
inainte sa ajunga pe piata

Aboneaza-te la newsletter

Aboneaza-te la notificari