Cotroceni 6 camere 160 mp D + P + 1 + M 452 mp

Va supunem atentiei o vila de exceptie, probabil una din cele mai frumoase vile aflate la inchiriere in acest moment, situata in Cotroceni pe o straduta linistita si plina de verdeata, departe de aglomeratia si zgomotul specific aglomeratiei urbane.
Vila a fost renovata complet in anul 2023, folosindu-se finisaje de cea mai buna calitate .
Curtea este frumos amenajata, o adevarata oaza de verdeata, care se armonizeaza perfect cu platanii seculari din zona.
Destinatia poate fi atat rezidentiala ( A fost locuita de ambasadorul Belgiei precum si de academicianul Constantin Mircioiu) dar si comerciala sau de birouri.


Pentru detalii suplimentare, va rugam contactati brokerul.

An constructie 1960

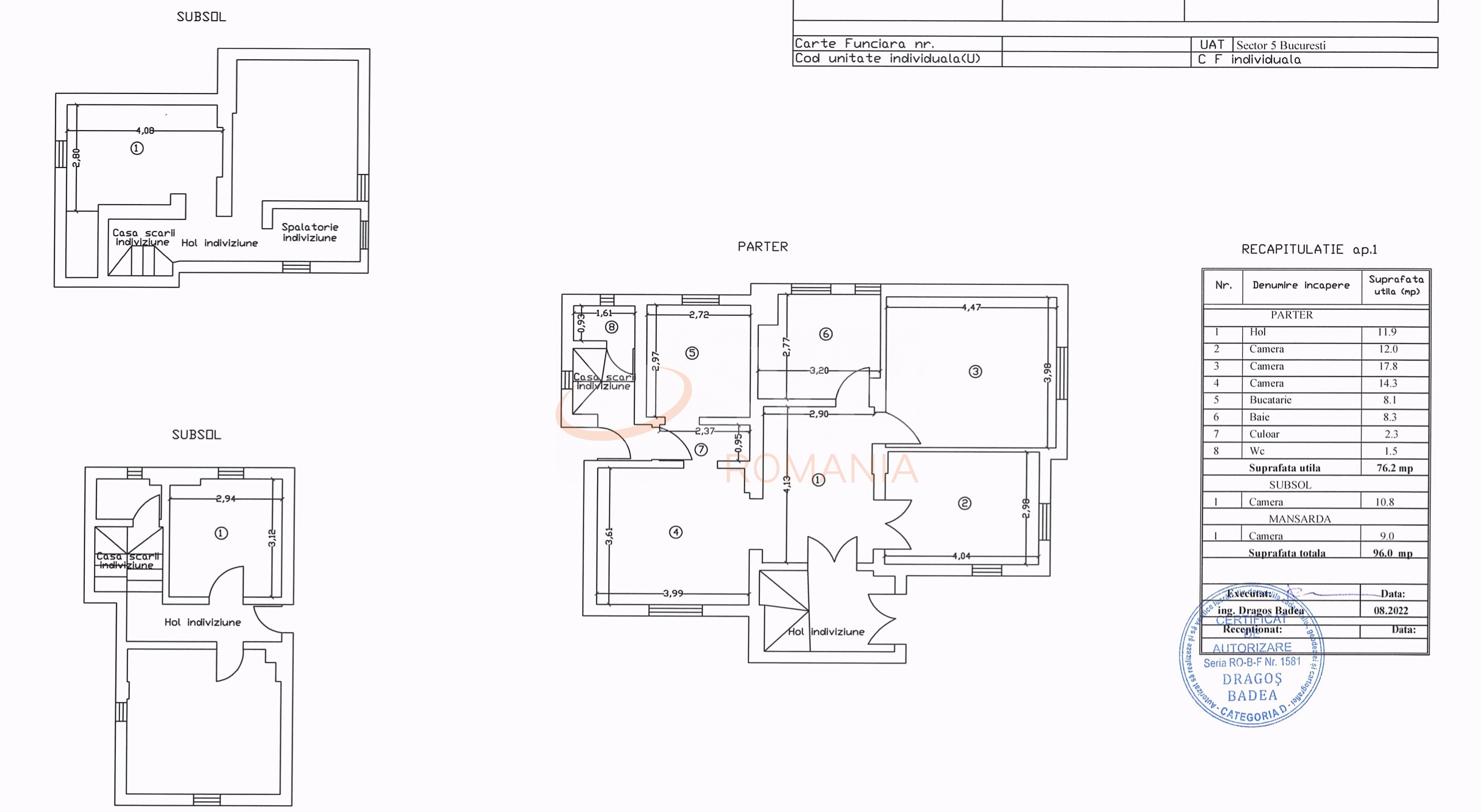
Suprafata construita 200 mp

Suprafata utila 160 mp

Regim Inaltime D + P + 1 + M

Etaj D + P + 1 + M

Nr. camere 6 camere

Nr. bai 2

Nr. balcoane 0 balcoane

Tip constructie Vila

Status constructie Finalizat

Amprenta la sol 80

Teren suprafata 452 mp

Deschidere stradala 32

Curte Individuala Da

Disponibila incepand cu 2023-09-11

Judet Bucuresti

Oras/ Sector Sector 5

Zona Cotroceni

Gps lat 44.432754

Gps lng 26.075849

Geamuri termopan

Parchet

Gresie

Faianta

Plansee beton

Parcare in curte

Consolidata

Aer conditionat

Detector de gaze

Curent electric

Gradina

Pod

Apa

Gaz

Canalizare

Vila Cotroceni

Proprietate inchiriata

Ai o proprietate similara? Vinde-o cu noi.
Vinde apartament

Cod: REV2001953

Proprietati similare

Bucuresti, Unirii, Piata Unirii (s3)

Casa, 6 camere

380 mp S + P + 2 + M 2024

6.000 EUR/luna

Detalii

Bucuresti, Colentina

Casa, 6 camere

500 mp P + 2 2018

6.500 EUR/luna

Detalii

Bucuresti, Pipera, Iancu Nicolae

Casa, 6 camere

330 mp P + 2 2025

6.000 EUR/luna

Detalii
Case 6 camere inchiriate in Cotroceni, Bucuresti Case 6 camere de inchiriere in Cotroceni, Bucuresti

Afla primul de cele mai bune oferte
inainte sa ajunga pe piata

Aboneaza-te la newsletter

Aboneaza-te la notificari