Calea Victoriei 132 mp 0 mp

SVN ROMANIA va propune o oportunitate unica de a inchiria un spatiu deosebit pentru restaurant, situat pe celebra Calea Victoriei, una dintre cele mai renumite artere din Bucuresti. Acest spatiu generos de 132 mp, completat de o terasa exterioara eleganta, ofera o atmosfera sofisticata si un vad pietonal intens, perfect pentru un restaurant de succes.
Caracteristici cheie:

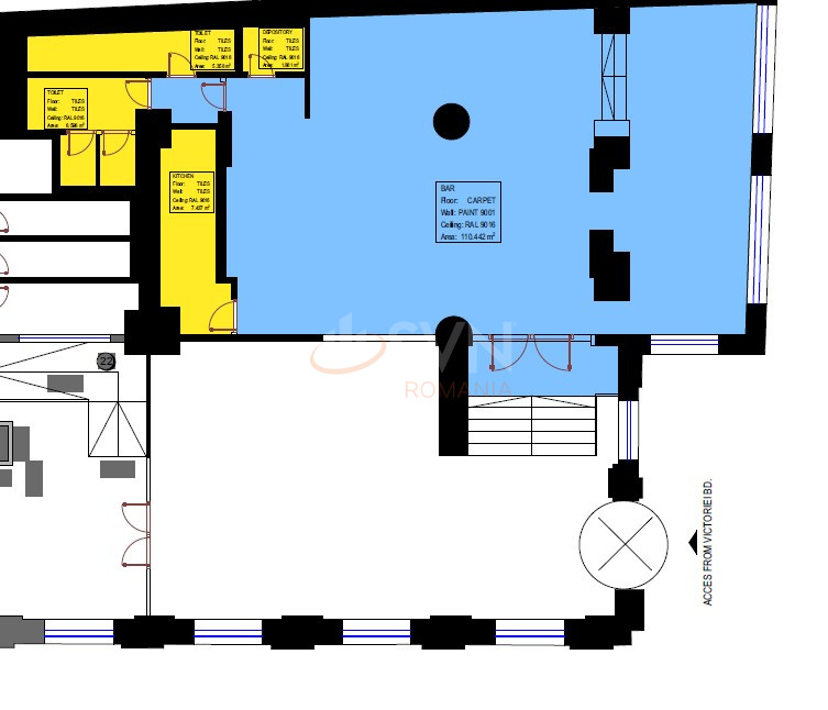
Suprafata utila: 132 mp,ideal impartita pentru a asigura o experienta confortabila clientilor, incluzand o zona de servire spatioasa si bucatarie echipata.
Terasa exterioara: Perfecta pentru a atrage clienti care doresc sa se bucure de mese in aer liber pe una dintre cele mai cautate strazi din oras.
Amplasare premium: Calea Victoriei, un punct de referinta atat pentru turisti, cat si pentru locuitorii orasului, cunoscuta pentru fluxul constant de pietoni si pentru proximitatea fata de institutii de cultura, hoteluri de lux si centre de afaceri.
Vizibilitate excelenta: Fatada larga, cu geamuri mari, ofera oportunitatea de a pune in valoare designul restaurantului si de a atrage privirile trecatorilor.
Acces facil: Spatiul este usor accesibil din toate zonele orasului, fiind situat aproape de statii de transport public si avand parcare disponibila in apropiere.

Alte detalii:

Stil arhitectural modern sau clasic, usor de personalizat in functie de conceptul restaurantului.
Utilitati complete: Toate utilitatile esentiale sunt disponibile, inclusiv alimentare cu apa si electricitate.
Zona in plina dezvoltare: Inconjurata de numeroase alte afaceri, magazine de lux, galerii de arta si birouri, locatia este perfecta pentru a atrage o clientela variata si sofisticata.

Acest spatiu reprezinta o alegere excelenta pentru un concept culinar de inalta calitate, fie ca este vorba despre un restaurant rafinat, un bistro modern sau o cafenea exclusivista.

Nu ratati aceasta oportunitate de a va stabili restaurantul in inima vibranta a Bucurestiului!

Pentru mai multe detalii si vizionari nu ezitati sa ne contactati.

Regim Inaltime P / P + 1

Etaj P

Nr. bai 2

Suprafata comerciala 132 mp

Suprafata depozit 0 mp

Disponibila incepand cu 2024-10-11

Judet Bucuresti

Oras/ Sector Sector 1

Zona Calea Victoriei

Gps lat 44.436089

Gps lng 26.097966

Nr. terase 1

Commercial space type Centru comercial

Internet Wireless

Supraveghere video

Baie privata

Curent electric

Geamuri termopan

Parchet

Gresie

Telefon

Faianta

WC serviciu

Mobilat

Aer conditionat

Bucatarie mobilata

SPATIU RESTAURANT l CALEA VICTORIEI l terasa la bulevard

Proprietate inchiriata

Ai o proprietate similara? Vinde-o cu noi.
Vinde apartament

Cod: REC3001164

Proprietati similare

Exclusiv Discount

Bucuresti, Sector 3, P-ta Unirii

Spatiu comercial 380 mp

P

6.000 EUR/luna

Detalii

Bucuresti, Sector 1, Universitate

Spatiu comercial 155 mp

P

7.000 EUR/luna

Detalii
Exclusiv Discount

Bucuresti, Parcul Carol

Spatiu comercial 320 mp

P

5.900 EUR/luna

Detalii

Bucuresti, Floreasca, Barbu Vacarescu

Spatiu comercial 400 mp

2

6.000 EUR/luna

Detalii

Bucuresti, Floreasca, Barbu Vacarescu

Spatiu comercial 160 mp

P

6.840 EUR/luna

Detalii

Bucuresti, Dristor

Spatiu comercial 245 mp

P

6.000 EUR/luna

Detalii

Bucuresti, Herastrau, Nordului

Spatiu comercial 350 mp

6

6.500 EUR/luna

Detalii

Bucuresti, Pipera

Spatiu comercial 236.5 mp

P

6.000 EUR/luna

Detalii
Spatii-comerciale inchiriate in Ultracentral, Bucuresti Spatii-comerciale de inchiriere in Ultracentral, Bucuresti

Afla primul de cele mai bune oferte
inainte sa ajunga pe piata

Aboneaza-te la newsletter

Aboneaza-te la notificari