Universitate 526 mp 0 mp

SVN Romania va propune spre inchiriere un spatiu de birouri in zona Universitate.

Statia de metrou Universitate se afla la doar 5 minute distanta pietonala.

Spatiul este situat la etajul 3/6, intr-o cladire de birouri construita in anul 2005 si dispune de o suprafata partiala totala de 526 mp.

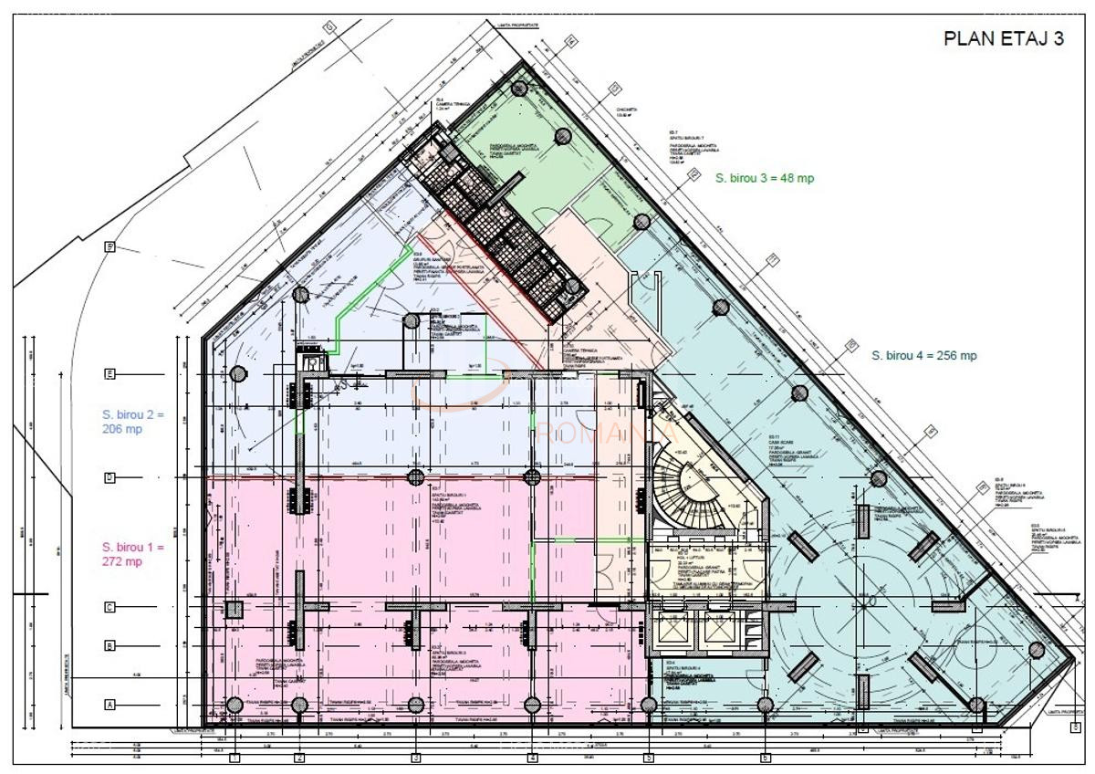
Acesta se poate inchiria integral, respectiv 526 mp sau se poate recompartimenta si inchiriat una din urmatoarele variante:
- birou 1 -> 272 mp
- birou 2 -> 206 mp
- birou 3 -> 48 mp (vezi schita)

Spatiul este amenajat si compartimentat, dispune de chicineta, 4 grupuri sanitare amenajate, climatizare zonala iar accesul in spatiu se face pe baza de cartela.

Utilitatile se refactureaza in regim pro-rata, iar electricitatea se calculeaza consum propriu + pro-rata din spatiile comune si echipamente.

Pretul spatiului este de 10.5 euro mp + TVA.

Taxa de administrare este de 4 euro mp + TVA.

Se pot inchiria separat locuri de parcare la pretul de 120 euro + TVA/luna/loc.

Se achita 2 luni de garantie + SC + TVA.

Cladirea dispune de lobby cu paza si 2 lift-uri.

Pentru mai multe informatii sau pentru programarea vizionarilor, contactul meu va sta la dispozitie!

***Vizionarea acestui imobil se face doar în baza semnarii unui acord de vizionare conform codului civil, art 2.096-2.102.

Regim Inaltime 3 / (-1) + S + P + 6

Etaj 3

Nr. bai 4

Suprafata comerciala 526 mp

Suprafata depozit 0 mp

Disponibila incepand cu 2026-03-11

Judet Bucuresti

Oras/ Sector Sector 1

Zona Universitate

Gps lat 44.440332

Gps lng 26.101912

Nr. terase 1

Commercial space type Cladire de birouri

Interfon

Lift

Supraveghere video

Detector de incendiu

Supraveghere 24/7

Baie privata

Geamuri termopan

Incalzire proprie

WC serviciu

Aer conditionat

Bucatarie mobilata

Apometre

Loc parcare subteran

Broker Imobiliar

Cristian Vasile , Consultant imobiliar Vezi toate proprietatile

0317100200

Spatiu de birouri - 526 MP I Posibilitate Recompartimentare I Universitate

Pret inchiriere
11 €/mp /luna

Telefon Consultant imobiliar
0317100200

Cod: REC3001619

Proprietati similare

Bucuresti, Sector 1, Universitate

Spatiu comercial 578 mp

1

11 EUR/luna

Detalii

Bucuresti, Sector 1, Universitate

Spatiu comercial 476 mp

4

11 EUR/luna

Detalii

Bucuresti, Sector 1, P-ta Universitatii

Spatiu comercial 102 mp

1

11 EUR/luna

Detalii

Bucuresti, Sector 1, P-ta Presei Libere

Spatiu comercial 1312 mp

P

11 EUR/luna

Detalii
Spatii-comerciale inchiriate in Sector 1, Bucuresti Spatii-comerciale de inchiriere in Sector 1, Bucuresti

Afla primul de cele mai bune oferte
inainte sa ajunga pe piata

Aboneaza-te la newsletter

Aboneaza-te la notificari